NUOVA BORSA MERCI
Scheda Opera
- Comune: Napoli
- Località: Zona Industriale
- Denominazione: NUOVA BORSA MERCI
- Indirizzo: Corso Meridionale, N. 58
- Data: 1964 - 1971
- Tipologia: Sedi del settore terziario
- Autori principali: Michele Capobianco, Massimo Pica Ciamarra, Riccardo Dalisi
Descrizione
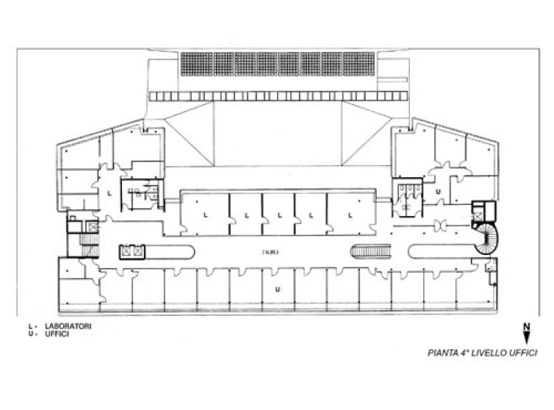
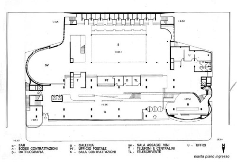
A seguito di un concorso nazionale, l'edificio - di chiara impronta lecorbusiana - è stato edificato alle spalle della stazione ferroviaria, laddove, secondo il proposito di Piccinato nel P.R.G. del 1939, sarebbe dovuto sorgere il nuovo centro direzionale. In sostanza esso oggi si trova poco distante dal costruito Centro Direzionale, ma forma comunque un'unità a sé stante e isolata. Per una sua corretta lettura è necessario osservarne l'interno o soffermarsi sulle sezioni. L'opera è costituita da due corpi distinti, uniti però dal blocco degli uffici e delle sale di contrattazione, nonché dai ballatoi longitudinali, serviti da una rampa di scale illuminata dall'alto da un lucernario. Lo stabile più interessante e più curato è quello esterno, prospiciente il corso Meridionale, i cui quattro piani con struttura in acciaio poggiano su una sorta di vassoio in cemento armato retto da pilotis. Il basamento descritto e la nascosta pensilina al piano attico provocano piacevoli giochi chiaroscurali. Il lato opposto è caratterizzato da una continuità in curtain wall. L'articolata complessità, pur unita alla semplicità volumetrica, ha consentito di giudicare l'opera «un intervento notevolmente avanzato sul piano operativo come su quello linguistico. La ragione sta appunto nell'autorità e nella fluidità degli spazi, nel modo in cui intessono una trama di letture multiple e complesse dell'edificio, premendo sull'involucro» (Pedio 1972).
Info
- Progetto: 1964 -
- Esecuzione: - 1971
- Committente: Camera di Commercio
- Proprietà: proprietà Ente pubblico territoriale
- Destinazione originaria: Borsa Merci
- Destinazione attuale: Borsa Merci e Uffici Camera di Commercio Napoli
Autori
| Nome | Cognome | Ruolo | Fase Progetto | Archivio Architetti | Url Profilo | Autore Principale |
|---|---|---|---|---|---|---|
| Conti | & Indiati | Progetto Impianti | Progetto | NO | ||
| Michele | Capobianco | Progetto architettonico | Progetto | SI | ||
| Riccardo | Dalisi | Progetto architettonico | Progetto | Visualizza Profilo | https://www.riccardodalisi.it/ | SI |
| Elio | Giangreco | Progetto strutturale | Progetto | NO | ||
| Giuseppe | Giordano | Progetto strutturale | Progetto | NO | ||
| Massimo | Pica Ciamarra | Progetto architettonico | Progetto | Visualizza Profilo | http://www.pcaint.com/en/massimo-pica-ciamarra/ | SI |
- Strutture: Cemento armato
- Materiale di facciata: calcestruzzo a faccia vista, curtain-wall
- Coperture: piana
- Serramenti: Metallici
- Stato Strutture: Buono
- Stato Materiale di facciata: Buono
- Stato Coperture: Buono
- Stato Serramenti: Buono
- Vincolo: Non Vincolata
- Provvedimenti di tutela: Nessuna opzione
- Data Provvedimento:
- Riferimento Normativo:
- Altri Provvedimenti:
- Foglio Catastale: -
- Particella: -
Note
Referenze fotografiche foto d'epoca) archivio Pica Ciamarra Associati
Bibliografia
| Autore | Anno | Titolo | Edizione | Luogo Edizione | Pagina | Specifica |
|---|---|---|---|---|---|---|
| Redazionale | 1965 | Illustrato il progetto della nuova Borsa Merci | «Il Mattino», 30 marzo | No | ||
| 1965 | Progetto di massima dell'edificio della Borsa Merci | Camera di Commercio Industria e Agricoltura di Napoli | Napoli | 3-64 | Si | |
| 1971 | La nuova Borsa Merci di Napoli | Camera di commercio, industria e agricoltura di Napoli (a cura di) | Napoli | 2-78 | Si | |
| Redazionale | 1971 | La Borsa Merci | «Il Mattino», 30 novembre | No | ||
| Redazionale | 1971 | La nuova Borsa Merci | «L’Unità», 1 dicembre | Si | ||
| Pedio Renato | 1972 | La nuova borsa merci di Napoli | «L’architettura. Cronache e storia» n. 196 | 636-647 | Si | |
| 1972 | Naples & its region, Mostra itinerante / Boston City Hall | Arte tipografica editrice | Napoli | nn | Si | |
| de Seta Cesare | 1981 | L'architettura del '900. Storia dell'arte in Italia | Utet | Torino | 206 | No |
| Videtta A. | 1986 | Merita due stelle la Borsa Merci di Capobianco | «Paese sera», 26 marzo | Si | ||
| Garofalo Francesca | 1988 | scheda 22, in Italia. Gli ultimi trent'anni, (a cura di) G. Muratore, A. Capuano, F. Garofalo, E. Pellegrini | Zanichelli | Bologna | 379 | No |
| Polano Sergio | 1991 | Guida all’architettura italiana del Novecento | Electa | Milano | 490-491 | Si |
| Polano Sergio, Mulazzani Marco | 1991 | Guida all'architettura italiana del Novecento | Electa | Milano | 490-491 | No |
| D'Auria Antonio | 1993 | Michele Capobianco | Electa Napoli | Napoli | 75-80 | Si |
| Cuomo Alberto | 1993 | Un intellettuale tra Posillipo e Stureplan, in Michele Capobianco, (a cura di) Antonio D'Auria | Electa | Napoli | 38 | No |
| Belfiore Pasquale, Gravagnuolo Benetto | 1993 | Napoli: Architettura e urbanistica del Novecento | Laterza ed. | Bari | 265 | No |
| De Fusco Renato | 1994 | Napoli nel Novecento | Electa Napoli | Napoli | 170 | No |
| Fusco Gaetano | 1994 | Nuova Borsa Merci, in Napoli. Architettura e urbanistica del Novecento, (a cura di) P. Belfiore, B. Gravagnuolo | Laterza | Roma-Bari | 265-266 | Si |
| Renato De Fusco | 1995 | La Campania: architettura e urbanistica del Novecento, in Ottocento e Novecento II parte | Electa Napoli | Napoli | 88-89 | No |
| Pugliese Carratelli Giovanni | 1996 | Storia e Civiltà della Campania - Il Novecento | Electa | Napoli | 89 | No |
| Castagnaro Alessandro | 1998 | Architettura del Novecento a Napoli. Il noto e l'inedito | Edizioni Scientifiche Italiane | Napoli | 216 | Si |
| Pazzaglini Marcello | 2002 | L'architettura italiana degli anni Sessanta | «ArQ», n. 18, giugno | 53-55 | No | |
| Visone Massimo | 2007 | La Borsa Merci, in Moderna e imperfetta. La ricostruzione a Napoli nelle fotografie dell’Archivio Parisio, a cura di M. Iuliano | Paparo | Napoli | 144-147 | Si |
| Gravagnuolo Benedetto | 2008 | Napoli dal Novecento al Futuro | Electa Napoli | Napoli | 112, 154 | No |
| De Fusco Renato | 2009 | Arti & Altro | Paparo ed. | Napoli | 280 | No |
| Ricci Giacomo | 2010 | Nuova Borsa Merci, in Napoli. Guida e dintorni. Itinerari di architettura moderna, (a cura di) S. Stenti, V. Cappiello | CLEAN Edizioni | Napoli | 76-77 | Si |
| De Fusco Renato | 2017 | Architettura a Napoli del XX secolo | CLEAN Edizioni | Napoli | 219-220 | Si |
| Lima Antonietta Iolanda | 2017 | Dai frammenti urbani ai sistemi ecologici. Architettura dei Pica Ciamarra Associati | Jaca Book | Milano | 155-160 | Si |
| de Seta Cesare | 2017 | La civiltà architettonica in Italia dal 1945 a oggi | Longanesi | Milano | 285 | No |
Allegati
Criteri
| 1. L’edificio o l’opera di architettura è citata in almeno tre studi storico-sistematici sull’architettura contemporanea di livello nazionale e/o internazionale. | |
| 2. L’edificio o l’opera di architettura è illustrata in almeno due riviste di architettura di livello nazionale e/o internazionale. | |
| 4. L’edificio o l’opera di architettura riveste un ruolo significativo nell’ambito dell’evoluzione del tipo edilizio di pertinenza, ne offre un’interpretazione progressiva o sperimenta innovazioni di carattere distributivo e funzionale. | |
| 5. L’edificio o l’opera di architettura introduce e sperimenta significative innovazioni nell’uso dei materiali o nell’applicazione delle tecnologie costruttive. | |
| 6. L’edificio o l’opera di architettura è stata progettata da una figura di rilievo nel panorama dell’architettura nazionale e/o internazionale. | |
| 7. L’edificio o l’opera di architettura si segnala per il particolare valore qualitativo all’interno del contesto urbano in cui è realizzata. |
Sitografia ed altri contenuti online
| Titolo | Url |
|---|---|
| Enciclopedia Treccani - Carlo Daneri | Visualizza |
Crediti Scheda
Enti di riferimento: DGAAPTitolare della ricerca: Università degli Studi della Campania Luigi Vanvitelli DIC-DEA
Responsabile scientifico: Pasquale Belfiore
Scheda redatta da
creata il 31/12/2017
ultima modifica il 29/01/2025
























