ASSOCIAZIONE DEGLI INDUSTRIALI DI PERUGIA
Scheda Opera
- Comune: Perugia
- Denominazione: ASSOCIAZIONE DEGLI INDUSTRIALI DI PERUGIA
- Indirizzo: Via Palermo, N. 80/A
- Data: 1979 - 1982
- Tipologia: Edifici per uffici
- Autori principali: Bruno Signorini
Descrizione
L’opera si colloca a sud del centro storico di Perugia, all’interno di un tessuto urbano molto denso, caratterizzato da edifici destinati ad attività terziarie e residenziali di notevoli dimensioni.
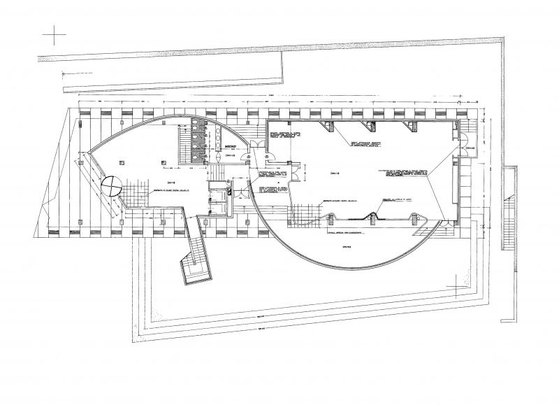
L’edificio è organizzato su cinque livelli fuori terra e uno seminterrato ed è costituito da un corpo longitudinale a pianta rettangolare, tagliato diagonalmente a un’estremità, sulla cui facciata principale si inserisce un volume curvilineo collocato al piano terra; all’interno, le forme curve accolgono il visitatore, guidandolo verso l’atrio e verso la sala conferenze. Il corpo scala è aggettante e ruotato rispetto al corpo di fabbrica principale. Il piano terra è sostenuto da pilastri e caratterizzato dalla presenza di grandi vetrate perimetrali, arretrate rispetto ad essi.
Il rivestimento dell’intero edificio è realizzato in travertino, fatta eccezione per la scala esterna in calcestruzzo armato. In copertura, lo smaltimento delle acque piovane è risolto mediante un canale lapideo che convoglia le acque in un unico pluviale cilindrico di grande diametro, realizzato in calcestruzzo armato, che costituisce un elemento simbolico per l’intera composizione. I livelli successivi al piano terra presentano aperture a nastro che corrono lungo la parete del prospetto principale e si ripetono uguali su ogni livello, sia da una parte che dall’altra del corpo scala, fatta eccezione per il primo.
L’intervento si caratterizza esternamente per l’essenzialità formale, pur presentando internamente un’elevata articolazione planimetrica che rimarca la qualità delle soluzioni progettuali adottate. Attualmente l’edificio è sede di iniziative pubbliche che lo vedono coinvolto in maniera attiva all’interno della vita culturale della città.
Info
- Progetto: 1979 - 1979
- Esecuzione: 1980 - 1982
- Committente: Immobiliare Assindustria spa
- Proprietà: Proprietà privata
- Destinazione originaria: Associazione degli industriali
- Destinazione attuale: Associazione degli Industriali
Autori
- Strutture: calcestruzzo armato
- Materiale di facciata: travertino; calcestruzzo armato
- Coperture: a falde inclinate
- Serramenti: metallici
- Stato Strutture: Ottimo
- Stato Materiale di facciata: Buono
- Stato Coperture: Buono
- Stato Serramenti: Buono
- Vincolo: Non Vincolata
- Provvedimenti di tutela: Nessuna opzione
- Data Provvedimento:
- Riferimento Normativo:
- Altri Provvedimenti:
- Foglio Catastale: 253
- Particella: 1432
Note
-
Bibliografia
| Autore | Anno | Titolo | Edizione | Luogo Edizione | Pagina | Specifica |
|---|---|---|---|---|---|---|
| Muratore Giorgio, Capuano Alessandra, Garofalo Francesco, Pellegrini Ettore | 1988 | Guida all'architettura moderna: Italia. Gli ultimi trent'anni | Zanichelli | Bologna | 309 | Si |
| Biscogli Luigi | 1991 | Bruno Signorini: scansioni tra futurismo e razionalismo | Architettura; cronache e storia n. 12 (434) | Venezia | 946-957 | No |
| Soletti Adriana, Belardi Paolo (a cura di) | 1996 | Architettura contemporanea in Umbria. Nuove Tendenze | Centro Stampa Università degli Studi di Perugia | Perugia | 75-78 | Si |
| Pisani Mario | 2004 | Signorini. Architetture | Librìa | Melfi (PZ) | 50-55 | Si |
| Barcaccia Stefano | 2014 | Temi di città. Perugia/Architetture 1950-2014 | Comune di Perugia | Perugia | 62-63 | Si |
Allegati
Criteri
| 1. L’edificio o l’opera di architettura è citata in almeno tre studi storico-sistematici sull’architettura contemporanea di livello nazionale e/o internazionale. | |
| 5. L’edificio o l’opera di architettura introduce e sperimenta significative innovazioni nell’uso dei materiali o nell’applicazione delle tecnologie costruttive. | |
| 6. L’edificio o l’opera di architettura è stata progettata da una figura di rilievo nel panorama dell’architettura nazionale e/o internazionale. |
Sitografia ed altri contenuti online
| Titolo | Url |
|---|---|
| Archilovers | Visualizza |
Crediti Scheda
Enti di riferimento: DGAAP - Segretariato Regionale per l'UmbriaTitolare della ricerca: Università degli Studi di Perugia - Dipartimento di Ingegneria Civile ed Ambientale
Responsabile scientifico: Paolo Belardi
Scheda redatta da
creata il 31/12/2018
ultima modifica il 29/01/2025
Revisori:
Battaglia Laura 2021





