CITTADELLA DELL'EDILIZIA
Scheda Opera
- Comune: Perugia
- Località: Prepo
- Denominazione: CITTADELLA DELL'EDILIZIA
- Indirizzo: Via Pietro Tuzi, N. 11
- Data: 2007 - 2013
- Tipologia: Edifici per la promozione culturale
- Autori principali: Studio HOFLAB, Studio HOFPRO
Descrizione
L'edificio, sede del Centro Edile per la Sicurezza e la Formazione e della Cassa Edile della Provincia di Perugia, è inserito in un contesto fortemente disomogeneo, caratterizzato dalla scala macroscopica degli insediamenti produttivi e commerciali e dalla scala microscopica delle residenze unifamiliari. Il progetto prevede la demolizione dell'edificio preesistente e la ricostruzione ex novo, fondata su parametri di massima efficienza energetica.
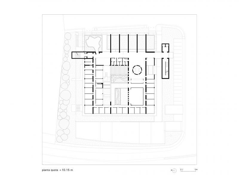
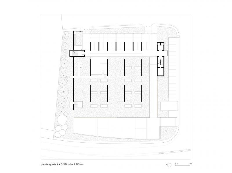
L’edificio si presenta come un volume compatto, sollevato dal terreno per mezzo di setti in calcestruzzo armato e organizzato su sei livelli, collegati tra loro da due nuclei di comunicazione verticali. Il livello interrato, accessibile mediante una rampa carrabile, è destinato a ospitare un parcheggio e locali tecnici, mentre il livello seminterrato ospita spazi per esercitazioni didattico-laboratoriali; il livello del terreno è costituito da un piano verde inclinato interamente aperto, fatta eccezione per i nuclei di comunicazione verticale in corrispondenza dei quali è collocato l’ingresso; al di sopra di esso, il primo livello sopraelevato ospita spazi per le attività formative, una sala convegni e una sala lettura; il secondo livello sopraelevato è destinato a spazi per uffici e sale riunioni, mentre l’ultimo livello, corrispondente alla copertura, ospita il parco tecnologico didattico, popolato da capanne archetipiche dipinte di colori vivaci, pedane lignee e una ricca varietà di specie vegetali. L’edificio presenta un sistema di corti interne che consentono l’ingresso di aria e luce e che, in relazione alla loro esposizione, forniscono un elevato comfort ambientale.
La struttura portante è realizzata in calcestruzzo armato, le tamponature sono costituite da pannelli sandwich montati a secco; il volume sopraelevato è avvolto da un involucro frangisole costituito da pannelli metallici microforati che, unitamente alle prestazioni bioclimatiche derivanti dai caratteri tipologici e alle dotazioni impiantistiche installate in copertura (sistemi solari termici e fotovoltaici), migliora il comportamento energetico dell'edificio.
L'edificio, per l’attenzione rivolta alla ricerca tipologica, alla qualità degli spazi e per l’utilizzo di tecnologie innovative, mitiga l’impatto dell’intervento edilizio sull’ambiente, realizzando un habitat naturale all’interno di un contesto fortemente artificiale.
Info
- Progetto: 2007 - 2009
- Esecuzione: 2010 - 2013
- Committente: Cassa edile della Provincia di Perugia, Centro edile per la Sicurezza e la Formazione
- Proprietà: Proprietà privata
- Destinazione originaria: Cittadella dell'edilizia
- Destinazione attuale: Cittadella dell'edilizia
Autori
- Strutture: calcestruzzo armato
- Materiale di facciata: alluminio
- Coperture: piane
- Serramenti: metallici
- Stato Strutture: Buono
- Stato Materiale di facciata: Ottimo
- Stato Coperture: Ottimo
- Stato Serramenti: Ottimo
- Vincolo: Non Vincolata
- Provvedimenti di tutela: Nessuna opzione
- Data Provvedimento:
- Riferimento Normativo:
- Altri Provvedimenti:
- Foglio Catastale: 267
- Particella: 18
| Codice ICCd | Ubicazione | Tipologia | Soggetto | Autore | Materia Tecnica | Stato di Conservazione | Restauri |
|---|---|---|---|---|---|---|---|
| Esterno | Interventi artistici sui cementi armati | Laterizi forati dipinti | Alessio Cinaglia | Discreto |
Note
-
Bibliografia
| Autore | Anno | Titolo | Edizione | Luogo Edizione | Pagina | Specifica |
|---|---|---|---|---|---|---|
| Marandola Marzia | 2013 | La cittadella dell'edilizia a Perugia | L'industria delle costruzioni n. 434 | Roma | 84-91 | Si |
| Marandola Marzia | 2013 | HOF/Cittadella dell'edilizia | Forma Edizioni | Poggibonsi (SI) | 1-63 | Si |
| Barcaccia Stefano | 2014 | Temi di città. Perugia/Architetture 1950-2014 | Comune di Perugia | Perugia | 82-83 | Si |
| Pisani Mario | 2015 | La Cittadella dell'Edilizia | L'Arca International 122 | Monaco (MC) | 68-75 | Si |
Allegati
Criteri
| 4. L’edificio o l’opera di architettura riveste un ruolo significativo nell’ambito dell’evoluzione del tipo edilizio di pertinenza, ne offre un’interpretazione progressiva o sperimenta innovazioni di carattere distributivo e funzionale. | |
| 5. L’edificio o l’opera di architettura introduce e sperimenta significative innovazioni nell’uso dei materiali o nell’applicazione delle tecnologie costruttive. |
Sitografia ed altri contenuti online
| Titolo | Url |
|---|---|
| HOFLAB Architetture | Visualizza |
Crediti Scheda
Enti di riferimento: DGAAP - Segretariato Regionale per l'UmbriaTitolare della ricerca: Università degli Studi di Perugia - Dipartimento di Ingegneria Civile ed Ambientale
Responsabile scientifico: Paolo Belardi
Scheda redatta da
creata il 31/12/2018
ultima modifica il 06/02/2025
Revisori:
Battaglia Laura 2021














