STABILIMENTO OLIVETTI, INFERMERIA - COMPRENSORIO DI SAN BERNARDO
Scheda Opera
- Comune: Ivrea
- Località: San Bernardo
- Denominazione: STABILIMENTO OLIVETTI, INFERMERIA - COMPRENSORIO DI SAN BERNARDO
- Indirizzo: Via Torino N. 603
- Data: 1956 - 1958
- Tipologia: Edifici per attività produttive
- Autori principali: Eduardo Vittoria
Descrizione
1. Opera originaria
«In posizione di poco discosta rispetto ai piani del 1952, ma con forme molto diverse, Eduardo Vittoria mette a disposizione dei fabbricati produttivi un piccolo edificio, da destinarsi ad infermeria e a sede dei servizi sociali di comprensorio.
La collocazione baricentrica ne consente la rapida fruizione, ed il vivo colore giallo una immediata individuazione da ogni punto dell’insediamento, così da connotare questa realizzazione come la più caratteristica delle opere di Vittoria a San Bernardo.
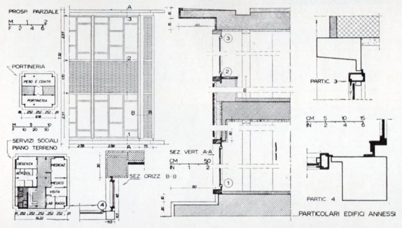
L’impostazione in pianta segue un quadrato regolare, con leggera rientranza sugli spigoli, dove un montante scatolare metallico viene portato in vista.
Gli ambienti si sviluppano su due piani per ospitare, al piano terra, il servizio di pronto soccorso e le salette di visita, mentre al piano superiore, servito da una scala interna con pregevole balaustra in ferro e legno, sono disposti i locali per i controlli audiometrici ed optometrici, ed i box di fisioterapia.
Le facciate, lievemente sollevate da terra per mezzo di uno zoccolino rivestito con tesserine di ceramica, sono suddivise in campiture quadrate e rettangolari dalla struttura metallica lasciata a vista, sul filo dei prospetti, e smaltata in tinta grigio scura.
Le campiture corrispondenti ai sottodavanzali e sugli spigoli, sono tamponate con mattonelle di clinker di un bel giallo vivo; le altre parti sono suddivise dal movimentato profilo dei serramenti in ferro-finestra, smaltati in grigio chiaro.
Le parti vetrate di tutto il piano terreno (attualmente anche quelle del piano superiore), sono smerigliate, per non consentire la visione diretta verso l’interno.
Per esigenze impiantistiche dovute alla necessità di condizionare i locali, i pannelli di clinker sono ora segnati da una minima grigliatura metallica, posta al centro di ogni campitura, ridotta alla dimensione di una mattonella.
Il leggero aggetto del solaio piano di copertura è segnato da un rivestimento in lamiera grecata di alluminio, che fascia lo spessore della soletta.
A lato dell’edificio dell’infermeria, ancora visibile nelle fotografie d’epoca, era sita la vasca d’acqua per la riserva antincendio, in posizione anch’essa differita rispetto a quanto previsto nel 1952; la vasca verrà coperta nei primi anni Sessanta, con l’ampliamento dell’edificio della mensa e del dopomensa». (Daniele Boltri, Giovanni Maggia, Enrico Papa, Pier Paride Vidari, Architetture olivettiane a Ivrea. I luoghi del lavoro e i servizi socio-assistenziali di fabbrica, Gangemi, Roma 1998, pp. 68-69)
«Piccolo edificio a due piani fuori terra dalla caratteristica forma cubica, sottolineata dalle profonde campiture di klinker smaltato giallo all’interno della maglia strutturale metallica colorata di blu. Come per gli altri edifici del complesso Olivetti a San Bernardo, il colore e i materiali utilizzati da Vittoria sono rivelatori di una ricerca originale e critica verso l’architettura funzionale che parte dalla standardizzazione degli elementi tecnologici e investe le qualità compositive e formali dell’edificio». (Patrizia Bonifazio, Enrico Giacopelli (a cura di), Il paesaggio futuro. Letture e norme per il patrimonio dell’architettura moderna di Ivrea, Allemandi, Torino 2007, p. 82)
2. Consistenza dell’opera al 2019 / Stato attuale
L’edificio, ristrutturato nel 2015/2016 e oggi adibito a uffici, si presenta complessivamente in ottimo stato di conservazione. Infissi e serramenti, pur a imitazione della ripartizione originaria, sono stati sostituiti in pvc con profili di maggiore dimensione e smaltati di blu anziché di grigio-verde chiaro come previsto da Eduardo Vittoria. I vetri, originariamente smerigliati, sono oggi lisci.
(Scheda a cura di Marco Ferrari con Tanja Marzi, DAD - Politecnico di Torino)
Info
- Progetto: 1956 - 1956
- Esecuzione: 1956 - 1958
- Tipologia Specifica: Infermeria
- Committente: Società Olivetti
- Proprietà: Proprietà privata
- Destinazione originaria: infermeria
- Destinazione attuale: uffici
Autori
| Nome | Cognome | Ruolo | Fase Progetto | Archivio Architetti | Url Profilo | Autore Principale |
|---|---|---|---|---|---|---|
| Aldo | Sepa | Direzione lavori | Esecuzione | NO | ||
| Eduardo | Vittoria | Progetto architettonico | Progetto | Visualizza Profilo | https://www.architettiroma.it/50_anni_professione/vittoria-eduardo/ | SI |
- Strutture: montanti scatolari metallici
- Materiale di facciata: mattonelle di clinker giallo vivo
- Coperture: solaio piano con aggetto rivestito da lamiera grecata in alluminio
- Serramenti: ferro-finestra smaltato in grigio-verde chiaro e vetro smerigliato
- Stato Strutture: Buono
- Stato Materiale di facciata: Buono
- Stato Coperture: Buono
- Vincolo: Non Vincolata
- Provvedimenti di tutela: Nessuna opzione
- Data Provvedimento:
- Riferimento Normativo:
- Altri Provvedimenti:
- Foglio Catastale: -
- Particella: -
Note
-
Bibliografia
| Autore | Anno | Titolo | Edizione | Luogo Edizione | Pagina | Specifica |
|---|---|---|---|---|---|---|
| Guiducci Roberto | 1957 | Officina meccanica a Ivrea. Una polemica sulla razionalità nell’architettura | Casabella continuità n. 214 | 44-53 | No | |
| Rossi Sara | 1959 | Industrie e abitazioni dell’architetto Eduardo Vittoria: officina meccanica a San Bernardo d’Ivrea | L’Architettura. Cronache e storia n. 39 | 606-610 | No | |
| Roberto Guiducci | 1962 | Presente e futuro dell’architettura industriale in Italia | Zodiac n. 9 | 127-146 | No | |
| Roggero Mario Federico | 1987 | Gli edifici per l’industria, in Pasquale Carbonara (a cura di), Architettura pratica, vol. IV | UTET | Torino | 465 | No |
| Boltri Daniele, Maggia Giovanni, Papa Enrico, Vidari Pier Paride | 1998 | Architetture olivettiane a Ivrea. I luoghi del lavoro e i servizi socio-assistenziali di fabbrica | Gangemi | Roma | 68-69 | No |
| Bonifazio Patrizia, Giacopelli Enrico (a cura di) | 2007 | Il paesaggio futuro. Letture e norme per il patrimonio dell’architettura moderna di Ivrea | Allemandi | Torino | 82-85 | No |
| Giusti Maria Adriana, Tamborrino Rosa | 2008 | Guida all’architettura del Novecento in Piemonte (1902-2006) | Allemandi | Torino | 177 | No |
Allegati
Criteri
| 1. L’edificio o l’opera di architettura è citata in almeno tre studi storico-sistematici sull’architettura contemporanea di livello nazionale e/o internazionale. | |
| 2. L’edificio o l’opera di architettura è illustrata in almeno due riviste di architettura di livello nazionale e/o internazionale. | |
| 6. L’edificio o l’opera di architettura è stata progettata da una figura di rilievo nel panorama dell’architettura nazionale e/o internazionale. |
Crediti Scheda
Enti di riferimento: Direzione Regionale PiemonteTitolare della ricerca: Politecnico Torino Dipartimento Architettura & Design
Responsabile scientifico: Prof.ssa Maria Adriana Giusti, Prof.ssa Gentucca Canella (DAD)
Scheda redatta da Marco Ferrari con Tanja Marzi
creata il 31/12/2004
ultima modifica il 28/01/2025
Revisori:
Mezzino Davide 2021











