INTENSIVO IN VIALE LIBIA
Scheda Opera
- Comune: Roma
- Località: Trieste
- Denominazione: INTENSIVO IN VIALE LIBIA
- Indirizzo: Viale Libia N. 6-14
- Data: 1953 - 1954
- Tipologia: Abitazioni plurifamiliari
- Autori principali: Ugo Luccichenti
Descrizione
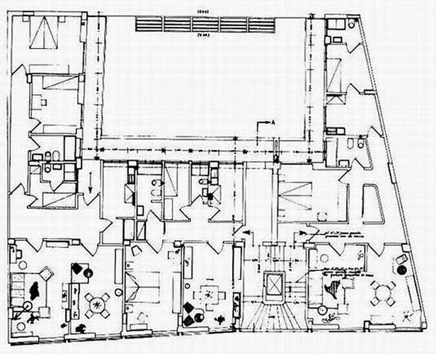
L’edificio intensivo per abitazioni e negozi progettato da Ugo Luccichenti si innalza sul fronte compatto di viale Libia rompendo la staticità dei palazzi del quartiere Africano. In un lotto non particolarmente felice, Luccichenti riesce a sistemare una pianta a corte con tre alloggi per piano, ripetuta per otto livelli e quattro negozi al piano terra. L’idea principale è lo sfalsamento di mezzo piano delle due parti di cui è composto l’edificio, reso visibile in facciata attraverso la leggera estroflessione del paramento murario della parte più alta e attraverso il posizionamento del corpo scala interamente vetrato su questo stesso fronte. Particolare attenzione è stata destinata alla scelta dei materiali e dei dettagli costruttivi: gli infissi sono caratterizzati da persiane scorrevoli color rosso acceso.
Info
- Progetto: 1953 -
- Esecuzione: 1953 - 1954
- Proprietà: Proprietà privata
Autori
| Nome | Cognome | Ruolo | Fase Progetto | Archivio Architetti | Url Profilo | Autore Principale |
|---|---|---|---|---|---|---|
| Ugo | Luccichenti | Progetto architettonico | Progetto | Visualizza Profilo | https://siusa.archivi.beniculturali.it/cgi-bin/siusa/pagina.pl?TipoPag=prodpersona&Chiave=31680 | SI |
- Strutture: cemento armato
- Materiale di facciata: intonaco
- Coperture: piana
- Stato Strutture: Buono
- Stato Materiale di facciata: Mediocre
- Vincolo: Non Vincolata
- Provvedimenti di tutela: Nessuna opzione
- Data Provvedimento:
- Riferimento Normativo:
- Altri Provvedimenti:
- Foglio Catastale: -
- Particella: -
Note
In origine gli accessi all’edificio erano due: il principale lungo viale Libia e un altro dalla corte interna, che consentiva l’accesso ad un parcheggio di pertinenza. Con la vendita del parcheggio l’unico accesso è rimasto quello sul fronte stradale.
Bibliografia
| Autore | Anno | Titolo | Edizione | Luogo Edizione | Pagina | Specifica |
|---|---|---|---|---|---|---|
| Luccichenti Ugo | 1954 | Nuove architetture a Roma | Edilizia moderna n. 52 | 67-78 | Si | |
| Di Gaddo Beata | 1957 | Opere di Ugo Luccichenti, professionista romano | L'Architettura. Cronache e Storia n. 15 | 638-643 | No | |
| De Guttry Irene | 1978 | Guida di Roma moderna dal 1870 ad oggi | De Luca | Roma | 93 | No |
| Pierdomenico Filomena, Piersensini Mario (a cura di) | 1980 | Ugo Luccichenti architetto | Officina | Roma | No | |
| Rossi Piero Ostilio | 1984 | Roma. Guida all'architettura moderna 1909-1984 (I ed.) | Laterza | Roma-Bari | Scheda n. 102 | Si |
| Manieri Elia Mario | 1990 | Il contributo di Ugo Luccichenti | Metamorfosi n.15 | 33-38 | No | |
| Rossi Piero Ostilio | 1991 | Roma. Guida all'architettura moderna 1909-1991 (II ed.) | Laterza | Roma-Bari | Scheda n. 99 | Si |
| Sgarbi Vittorio | 1991 | Dizionario dei monumenti italiani e dei loro autori. Roma. Dal Rinascimento ai giorni nostri | Bompiani | Milano | 149 | No |
| Muratore Giorgio | 1996 | Un maestro romano: Ugo Luccichenti | Rassegna critica di architettura n. 89-90 | 110-115 | No | |
| Remiddi Gaia, Greco Antonella, Bonavita Antonella, Ferri Paola | 2000 | Il moderno attraverso Roma. 200 architetture scelte | Palombi | Roma | Scheda n. P147 | Si |
| Rossi Piero Ostilio | 2000 | Roma. Guida all'architettura moderna 1909-2000 (III ed.) | Laterza | Roma-Bari | Scheda n. 99 | Si |
| De Guttry Irene | 2001 | Guida di Roma moderna dal 1870 ad oggi | De Luca | Roma | 93 | No |
| Olmo Carlo | 2001 | Dizionario dell'architettura del XX secolo, vol. 4 | Allemandi | Torino-London | 134 | No |
| Muratore Giorgio | 2007 | Roma. Guida all'architettura | L'Erma di Bretschneider | Roma | 42 | No |
| Rossi Piero Ostilio | 2012 | Roma. Guida all'architettura moderna 1909-2011 (IV ed.) | Laterza | Roma-Bari | Scheda n. 99 | Si |
Fonti Archivistiche
| Titolo | Autore | Ente | Descrizione | Conservazione |
|---|---|---|---|---|
| Fondo Ugo Luccichenti | Ugo Luccichenti | Accademia Nazionale di San Luca, Roma | Edificio intensivo a Roma, viale Libia |
Criteri
| 1. L’edificio o l’opera di architettura è citata in almeno tre studi storico-sistematici sull’architettura contemporanea di livello nazionale e/o internazionale. | |
| 3. L’edificio o l’opera di architettura ha una riconosciuta importanza nel panorama dell’architettura nazionale, degli anni nei quali è stata costruita, anche in relazione ai contemporanei sviluppi sia del dibattito, sia della ricerca architettonica nazionale e internazionale, | |
| 6. L’edificio o l’opera di architettura è stata progettata da una figura di rilievo nel panorama dell’architettura nazionale e/o internazionale. |
Crediti Scheda
Enti di riferimento: PaBAAC - Direzione Regionale per il LazioTitolare della ricerca: Università degli studi di Roma "Sapienza"
Responsabile scientifico: Piero Ostilio Rossi
Scheda redatta da
creata il 31/12/2012
ultima modifica il 26/02/2025
Revisori:
Alberto Coppo 2021



