STABILIMENTO GIARDINO NICE
Scheda Opera
- Comune: Oderzo
- Denominazione: STABILIMENTO GIARDINO NICE
- Indirizzo: Via Callalta, N. 1
- Data: 2018 -
- Tipologia: Edifici per attività produttive
- Autori principali: Carlo Dal Bò, Anna Costa
Descrizione
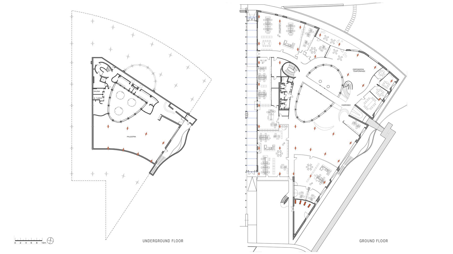
Il primo intervento realizzato tra il 2007 e il 2009 per la NICE s.p.a. dallo studio Dal Bo ha riguardato l'edificio destinato all'headquarter degli uffici e all'auditorium. L'architettura si stende in un lotto a forma triangolare e consta di un corpo di fabbrica che alterna due fronti rettilinei a una facciata con andamento curvilineo. L'edificio immerso nella campagna opitergina è connotato da un andamento crescente che si genera dal vertice del triangolo del lotto e trova il suo fulcro attorno al vuoto della corte centrale di forma ovoidale, chiamato “uovo”, vero e proprio giardino che dà luce e respiro all'intera struttura.
I materiali proposti in facciata e per la copertura sono lamine di zinco-titanio, mentre la fascia sotto la linea di gronda è in pannelli lignei di okumè, tangente le vetrate del piano attico.
Ciascuna delle aree operative della struttura è distinta da diverse colorazioni delle pareti interne e dei pavimenti. L'illuminazione degli ambienti privilegia la luce naturale che permea grazie agli open-space e alle partizioni in cristallo, mentre la luce artificiale è indirizzata per enfatizzare gli effetti il gioco dei volumi, delle linee e delle superfici.
Particolare cura è stata riservata al comfort dei dipendenti, per i quali è stata ricavata una zona bar e una zona fitness, così come una sala comune con servizio cucina. All'interno del complesso è inserito un auditorium con una «sezione a conchiglia», il cui spazio è interamente rivestito in legno: una superficie continua dal soffitto, alla parete di fondo, al pavimento giunge a svolgersi sino a divenire un unicum con il tavolo dei relatori.
Nel biennio 2018 e il 2019 un progetto di ampliamento ha interessato quattro nuovi settori del complesso prevedendo l'espansione dell'area produttiva, una nuova area reception, una mensa dedicata al personale dell'area produttiva e un settore di raccordo, che si unisce al magazzino esistente.
L'impianto insiste intorno a un grande giardino interno che diviene fulcro compositivo della nuovo ampliamento, che si duplica in scala minore all'interno dell'area produttiva. La suggestione del progetto vuole portare la natura dentro la fabbrica.
La sezione produttiva si articola su due livelli con uno sviluppo complessivo circa 12.000 mq, al piano ipogeo è previsto un ampio parcheggio. La struttura dunque è stata ideata come un grande giardino pensile a disposizione dei dipendenti come spazio di relax e di svago.
Info
- Progetto: 2018 - 2019
- Esecuzione: -
- Committente: NICE spa.
Autori
| Nome | Cognome | Ruolo | Fase Progetto | Archivio Architetti | Url Profilo | Autore Principale |
|---|---|---|---|---|---|---|
| Anna | Costa | Progetto architettonico | Progetto | Visualizza Profilo | http://annacosta.it/studio.html | SI |
| Carlo | Dal Bò | Progetto architettonico | Progetto | Visualizza Profilo | http://www.architettocarlodalbo.it/profile.html | SI |
- Strutture: acciaio
- Materiale di facciata: vetro; pannelli zinco-titanio; legno okumé
- Coperture: giardino pensile
- Serramenti: metallici
- Stato Strutture: Ottimo
- Stato Materiale di facciata: Ottimo
- Stato Coperture: Ottimo
- Stato Serramenti: Ottimo
- Vincolo: Non Vincolata
- Provvedimenti di tutela:
- Data Provvedimento:
- Riferimento Normativo:
- Altri Provvedimenti:
- Foglio Catastale: -
- Particella: -
Note
-
Allegati
Criteri
| 5. L’edificio o l’opera di architettura introduce e sperimenta significative innovazioni nell’uso dei materiali o nell’applicazione delle tecnologie costruttive. | |
| 6. L’edificio o l’opera di architettura è stata progettata da una figura di rilievo nel panorama dell’architettura nazionale e/o internazionale. | |
| 7. L’edificio o l’opera di architettura si segnala per il particolare valore qualitativo all’interno del contesto urbano in cui è realizzata. |
Sitografia ed altri contenuti online
| Titolo | Url |
|---|---|
| Studio Carlo Dal Bo | Visualizza |
Crediti Scheda
Enti di riferimento: DGCC - Segretariato Regionale per il VenetoTitolare della ricerca: Università di Padova - Dipartimento Beni Culturali
Responsabile scientifico: Elena Svalduz, Stefano Zaggia
Scheda redatta da Martina Massaro
creata il 16/01/2022
ultima modifica il 26/03/2024







































