LABORATORIO ARTE CONTEMPORANEA VILLA CALDOGNO
Scheda Opera
- Comune: Caldogno
- Denominazione: LABORATORIO ARTE CONTEMPORANEA VILLA CALDOGNO
- Indirizzo: Via Giacomo Zanella, N. 3
- Data: 2006 - 2009
- Tipologia: Musei e Aree archeologiche
- Autori principali: Enrico Novello, Elisa Marchiori, Sergio Novello
Descrizione
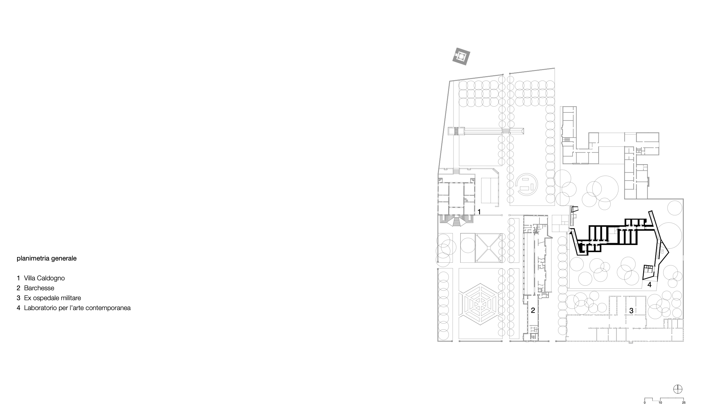
Nel 1943 il complesso palladiano della villa voluta da Losco e Angelo Caldogno alla metà del Cinquecento fu requisito dall’esercito tedesco per insediarvi il comando della “Militar Sanitat”. A est del giardino antistante la villa, sul retro del corpo delle barchesse, la Todt (organizzazione legata al comando centrale per la realizzazione delle opere militari sui territori occupati) realizza un bunker in cemento armato, alla profondità di 6 metri, con locali attrezzati per ospitare malati e feriti, nonché sale operatorie da utilizzare in caso di bombardamenti ed evacuazione del vicino ospedale.
L’esterno si presenta come una collina artificiale ricoperta da vegetazione per mascherare la struttura che il progetto del 2006 dello studio Novello restaura ed amplia con l'obiettivo di collocarvi un centro di arte contemporanea. Quattordici stanze con volte a botte si aprono lungo un corridoio che collega il bunker al corpo centrale della villa e delle barchesse. La nuova destinazione d'uso la volge, non tanto a spazio espositivo per l'arte contemporanea, ma a laboratorio e si avvale del portato drammatico del luogo nel tentativo di mantenere la memoria attraverso le tracce del passato (come le porte in ferro arrugginito, gli aloni di umidità sull'intonaco dei muri, le vecchie tubature in disuso). Per le stesse ragioni gli impianti non sono stati realizzati a incasso nelle pareti, bensì sfruttando alloggiamenti entro totem in acciaio progettati ad hoc, che incorporano sia l'impianto illuminotecnico sia di riscaldamento, risultando utili anche per la segnaletica dei percorsi. Volutamente sono poche le fonti di luce, ricavate attraverso tagli sottili nelle coperture in cemento, che con discrezione vanno ad accompagnare il visitatore nella lettura del luogo senza alterarne la natura. Le uniche trasformazioni hanno riguardato due stanze centrali, che sono state unificate in modo da avere una pausa nella successione forzata di ambienti (in enfilade, tutti uguali e con lunghi corridoi di raccordo ) e poter essere un punto di snodo per i nuovi accessi introdotti dall'intervento. Gli ingressi est e ovest sono stati infatti ampliati con strutture realizzate fuori terra in calcestruzzo armato rivestito in acciaio Cor-Ten, che segnano con severità gli accessi e si accordano alla preesistenza anche grazie alla natura delle superfici ossidate (riducendo al minimo l'impatto della nuova costruzione). I volumi esterni non corrispondono agli interni, ma preparano il percorso di accesso attraverso rampe inclinate che progressivamente conducono al corpo sotterraneo del bunker.
Info
- Progetto: 2006 - 2007
- Esecuzione: 2007 - 2009
- Committente: Amministrazione Comunale di Caldogno
- Proprietà: Proprietà pubblica
- Destinazione originaria: Struttura sanitario bellica
- Destinazione attuale: Laboratorio Arte Contemporanea
Autori
- Strutture: calcestruzzo armato
- Materiale di facciata: acciaio cor-ten; cemento; cristallo
- Coperture: piane
- Serramenti: metallici
- Stato Strutture: Ottimo
- Stato Materiale di facciata: Ottimo
- Stato Coperture: Ottimo
- Stato Serramenti: Ottimo
- Vincolo: Non Vincolata
- Provvedimenti di tutela:
- Data Provvedimento:
- Riferimento Normativo:
- Altri Provvedimenti:
- Foglio Catastale: -
- Particella: -
Note
-
Bibliografia
| Autore | Anno | Titolo | Edizione | Luogo Edizione | Pagina | Specifica |
|---|---|---|---|---|---|---|
| Barbero Luca Massimo | 2006 | Il bunker di C4: la luce della memoria, in Barbero Luca Massimo, Ciresola Elena (a cura di), C4 Index / Il Bunker, un nuovo spazio per la formazione con l'arte | Marsilio; C4 Centro Cultura Contemporaneo Caldogno | Venezia | 130-151 | No |
| Albanese Flavio | 2009 | Laboratorio per l'arte contemporanea, Villa Caldogno, Vicenza | «Domus», n. 929 | 37-41 | Si | |
| Urenti Marzia | 2010 | Spazio Segreto | «AAA», n. 44 | 106-117 | Si | |
| Mulazzani Marco | 2011 | Da un bunker nel giardino di una villa palladiana | «Casabella», n. 799 | 49-55 | Si |
Allegati
Criteri
| 2. L’edificio o l’opera di architettura è illustrata in almeno due riviste di architettura di livello nazionale e/o internazionale. | |
| 4. L’edificio o l’opera di architettura riveste un ruolo significativo nell’ambito dell’evoluzione del tipo edilizio di pertinenza, ne offre un’interpretazione progressiva o sperimenta innovazioni di carattere distributivo e funzionale. | |
| 7. L’edificio o l’opera di architettura si segnala per il particolare valore qualitativo all’interno del contesto urbano in cui è realizzata. |
Crediti Scheda
Enti di riferimento: DGCC - Segretariato Regionale per il VenetoTitolare della ricerca: Università di Padova - Dipartimento Beni Culturali
Responsabile scientifico: Elena Svalduz, Stefano Zaggia
Scheda redatta da Martina Massaro
creata il 21/02/2022
ultima modifica il 29/08/2022














