PALAZZINA IN VIA FLAMINIA
Scheda Opera
- Comune: Roma
- Località: Parioli
- Denominazione: PALAZZINA IN VIA FLAMINIA
- Indirizzo: Via Flaminia N. 310-316
- Data: 1952 - 1955
- Tipologia: Abitazioni plurifamiliari
- Autori principali: Angelo Di Castro, Mario Fiorentino
Descrizione
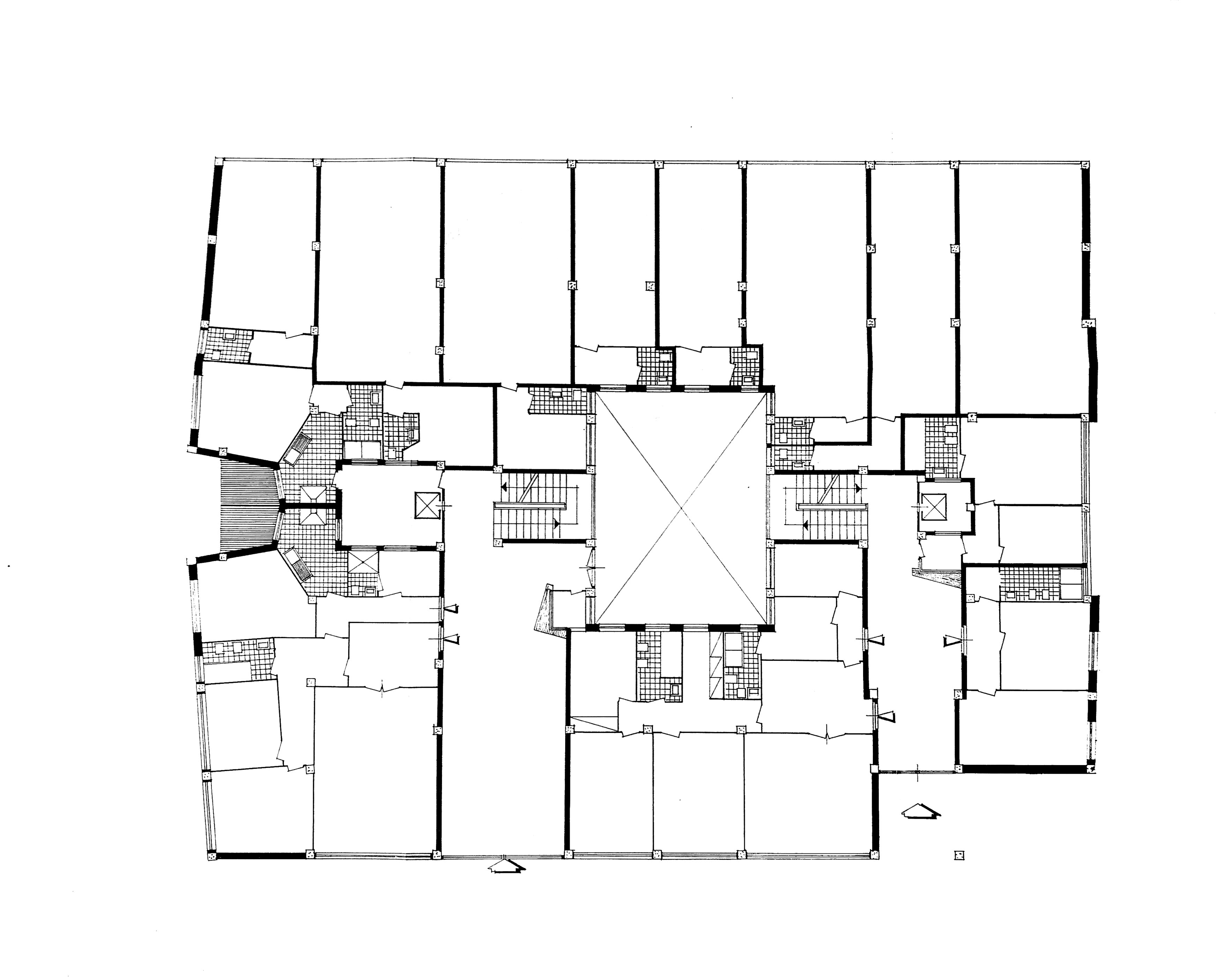
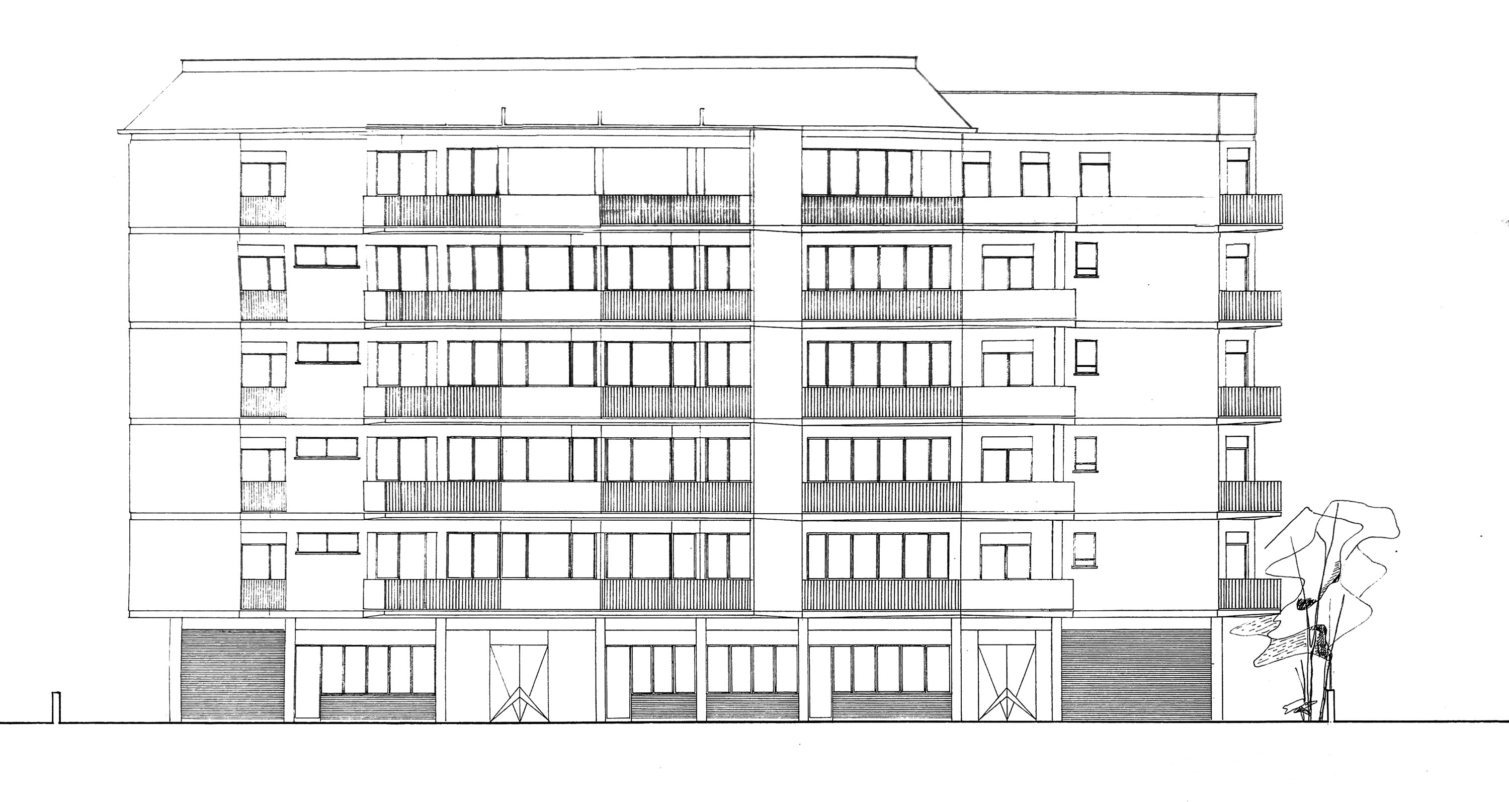
Angelo di Castro e Mario Fiorentino disegnano per una committenza altoborghese un fabbricato di cinque piani, più piano attico. Ad essi si aggiunge un piano dedicato ai locali tecnici contenuto all'interno di un tetto a padiglione mansardato. Ciascun piano è servito da due corpi scala contrapposti che affacciano su un'ampia chiostrina interna: questi distribuiscono rispettivamente due (il corpo scala che guarda a nord) e quattro appartamenti (quello affacciato a sud) per piano. Ogni unità, progettata secondo standard di alta qualità, garantisce un doppio accesso indipendente agli spazi per la servitù e agli appartamenti della proprietà. Dal punto di vista compositivo il volume si conforma attraverso superfici che, come nella Casa del Girasole di Moretti, si flettono alla luce del sole e determinano una dinamica sequenza di piani nello spazio. Dal punto di vista materico la struttura in calcestruzzo emerge dall'involucro distinguendosi dalle tamponature intonacate, che ospitano ampie aperture vetrate con serramenti in legno.
Info
- Progetto: 1952 -
- Esecuzione: 1954 - 1955
- Committente: Soc. An. immobiliare Flaminia Tiziano
- Destinazione originaria: abitazione plurifamiliare
- Destinazione attuale: abitazione plurifamiliare
Autori
| Nome | Cognome | Ruolo | Fase Progetto | Archivio Architetti | Url Profilo | Autore Principale |
|---|---|---|---|---|---|---|
| Angelo | Di Castro | Progetto architettonico | Progetto | Visualizza Profilo | https://siusa.archivi.beniculturali.it/cgi-bin/siusa/pagina.pl?TipoPag=prodpersona&Chiave=28899&RicProgetto=architetti | SI |
| Mario | Fiorentino | Progetto architettonico | Progetto | Visualizza Profilo | https://www.treccani.it/enciclopedia/mario-fiorentino_(Dizionario-Biografico)/ | SI |
- Strutture: Calcestruzzo armato
- Materiale di facciata: Intonaco
- Coperture: tetto a padiglione mansardato
- Serramenti: legno
- Stato Strutture: Ottimo
- Stato Materiale di facciata: Ottimo
- Stato Coperture: Buono
- Stato Serramenti: Buono
- Vincolo: Non Vincolata
- Provvedimenti di tutela:
- Data Provvedimento:
- Riferimento Normativo:
- Altri Provvedimenti:
- Foglio Catastale: -
- Particella: -
Note
-
Bibliografia
| Autore | Anno | Titolo | Edizione | Luogo Edizione | Pagina | Specifica |
|---|---|---|---|---|---|---|
| Di Carlo A. | 1956 | Palazzine in Via Flaminia | L’ Architettura. Cronache e storia, n°5 | Roma | 46-48 | Si |
| Mariano Fabio (a cura di | 1983 | Angelo di Castro disegni pitture e architetture (catalogo mostra) | Kappa | Roma | 68 | Si |
| Finelli Luciana, di Carstro Fiorella Foa (a cura di) | 2000 | Angelo di Castro, architetto romano | Kappa | Roma | 60 | Si |
| Balducci Fabio | 2022 | Angelo Di Castro. Tra le pieghe del moderno | Quodlibet | Roma | 108-115 | Si |
Allegati
Criteri
| 4. L’edificio o l’opera di architettura riveste un ruolo significativo nell’ambito dell’evoluzione del tipo edilizio di pertinenza, ne offre un’interpretazione progressiva o sperimenta innovazioni di carattere distributivo e funzionale. | |
| 6. L’edificio o l’opera di architettura è stata progettata da una figura di rilievo nel panorama dell’architettura nazionale e/o internazionale. |
Sitografia ed altri contenuti online
| Titolo | Url |
|---|---|
| Enciclopedia Treccani - Mario Fiorentino | Visualizza |
| MAXXI Patrimonio - Mario Fiorentino | Visualizza |
| Enciclopedia Treccani - Angelo Di Castro | Visualizza |
| MAXXI Patrimonio - Angelo Di Castro | Visualizza |
Crediti Scheda
Enti di riferimento: DGCC - Segretariato Regionale per il LazioTitolare della ricerca: Sapienza Università di Roma - Dipartimento di Architettura e Progetto
Responsabile scientifico: Orazio Carpenzano
Scheda redatta da Qart - Laboratorio per lo Studio di Roma Contemporanea
creata il 09/06/2022
ultima modifica il 27/02/2025
Revisori:
Fabio Balducci








