VILLINO IN VIA EVANGELISTI
Scheda Opera
- Comune: Roma
- Località: Trionfale
- Denominazione: VILLINO IN VIA EVANGELISTI
- Indirizzo: Via Carlo Evangelisti N 1-3 - Via Trionfale N.181
- Data: -
- Tipologia: Abitazioni plurifamiliari
- Autori principali: Ugo Luccichenti
Descrizione
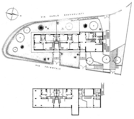
L'opera si trova ai bordi del costruito residenziale sul fianco sud-est della collina di Monte Mario. Le forme dell'isolato e l'andamento discendente del terreno determinano l'orientamento dell'edificio che si sviluppa longitudinalmente in direzione nord-sud, assecondando le curve di livello. Costruita per una committenza alto-borghese (la proprietà apparteneva a famiglie di magistrati), la palazzina è stata sin da principio concepita come un'architettura ben riconoscibile nel contesto urbano, caratterizzata da elementi fortemente connotativi e dall'impiego di materiali e finiture di lusso. L'opera, infatti, denominata "la nave" si distingue per il grande balcone aggettante impostato su travi inginocchiate che volge verso sud, con una vista panoramica su tutta la città. L'edificio si compone di sei livelli di cui uno completamente interrato adibito a cantine, servizi e autorimesse. Tutti gli altri piani ospitano cinque appartamenti duplex e tre simplex, dotati di doppi e tripli servizi e ampi ambienti di rappresentanza. Nella scelta dei materiali impiegati all’interno delle unità abitative prevale l’utilizzo di marmi e legni pregiati. Gli appartamenti al piano terra godono di giardini e parcheggi privati. La graduale parcellizzazione degli ampi appartamenti, avvenuta nel tempo a causa di successive suddivisioni di proprietà, ha comportato forti alterazioni tra cui la realizzazione di superfetazioni e la chiusura delle terrazze a verande, nonché la parziale occupazione del piano intermedio, un tempo destinato a terrazzo comune. Queste modificazioni hanno compromesso l’immagine dell’edificio e nascosto le eleganti ed armoniose linee del progetto originario.
Info
- Progetto: -
- Esecuzione: 1960 -
- Proprietà: Proprietà privata
- Destinazione originaria: abitazione plurifamiliare
- Destinazione attuale: abitazione plurifamiliare
Autori
| Nome | Cognome | Ruolo | Fase Progetto | Archivio Architetti | Url Profilo | Autore Principale |
|---|---|---|---|---|---|---|
| Ugo | Luccichenti | Progetto | Visualizza Profilo | https://siusa.archivi.beniculturali.it/cgi-bin/siusa/pagina.pl?TipoPag=prodpersona&Chiave=31680 | SI |
- Strutture: cemento armato
- Materiale di facciata: intonaco, cortina di mattoni
- Coperture: piana
- Serramenti: lignei e metallici
- Stato Strutture: Mediocre
- Stato Materiale di facciata: Mediocre
- Stato Coperture: Discreto
- Stato Serramenti: Mediocre
- Vincolo: Non Vincolata
- Provvedimenti di tutela: Nessuna opzione
- Data Provvedimento:
- Riferimento Normativo:
- Altri Provvedimenti: PRG Carta per la Qualità - cod. 9808
- Foglio Catastale: -
- Particella: -
Note
E' in corso un intervento di manutenzione.
Bibliografia
| Autore | Anno | Titolo | Edizione | Luogo Edizione | Pagina | Specifica |
|---|---|---|---|---|---|---|
| Duranti Giovanni, Todaro Benedetto ( a cura di) | Scuola Romana di Architettura. Tracce 1919-1980 | Kappa | Roma | scheda n. 259 | Si | |
| S.G.I. | 1958 | realizzazioni | 49 | Si | ||
| Ippolito Achille Maria, Pagnotta Mauro | 1982 | Roma costruita. Le vicende, le problematiche e le realizzazioni dell'architettura a Roma dal 1946 al 1981 | Fratelli Palombi | Roma | 43 | Si |
| Sgarbi Vittorio | 1991 | Dizionario dei monumenti italiani e dei loro autori. Roma. Dal Rinascimento ai giorni nostri | Bompiani | Milano | 149 | No |
| De Guttry Irene | 2001 | Guida di Roma moderna dal 1870 ad oggi | De Luca | Roma | No | |
| Guccione Margherita, Pesce Daniela, Reale Elisabetta | 2002 | Guida agli archivi privati di architettura a Roma e nel Lazio. Da Roma Capitale al secondo dopoguerra | Gangemi | Roma | 80 | No |
| De Rose Rosa | 2004 | L'opera di Ugo Luccichenti. Architettura e professionismo colto a Roma tra la seconda guerra e le Olimpiadi del 1960to di Ricerca in Ingegneria Edile | Tesi di Dottorato, XV ciclo | 169 | Si | |
| Briganti Anna Paola, Mazza Alessandro (a cura di) | 2013 | Roma Architetture Biografe 1870 – 1970 | Prospettive edizioni | Roma | 311-315 | No |
| Passeri Alfredo | 2013 | Palazzine romane. Valutazioni economiche e fattibilità del progetto di conservazione | Aracne | Roma | 967- 975 | Si |
| Palmieri Valerio | 2018 | Ugo Luccichenti. Villino trionfale a Roma. 1953-1959 | Ilios | Bari | Si |
Allegati
Criteri
| 4. L’edificio o l’opera di architettura riveste un ruolo significativo nell’ambito dell’evoluzione del tipo edilizio di pertinenza, ne offre un’interpretazione progressiva o sperimenta innovazioni di carattere distributivo e funzionale. | |
| 5. L’edificio o l’opera di architettura introduce e sperimenta significative innovazioni nell’uso dei materiali o nell’applicazione delle tecnologie costruttive. | |
| 6. L’edificio o l’opera di architettura è stata progettata da una figura di rilievo nel panorama dell’architettura nazionale e/o internazionale. |
Crediti Scheda
Enti di riferimento: DGCC - Segretariato Regionale per il LazioTitolare della ricerca: Sapienza Università di Roma - Dipartimento di Architettura e Progetto
Responsabile scientifico: Piero Ostilio Rossi
Scheda redatta da Qart - Laboratorio per lo Studio di Roma Contemporanea
creata il 31/12/2012
ultima modifica il 27/02/2025
Revisori:
Angela Fiorelli 2022












