STUDIO DELL' ARCHITETTO
Scheda Opera
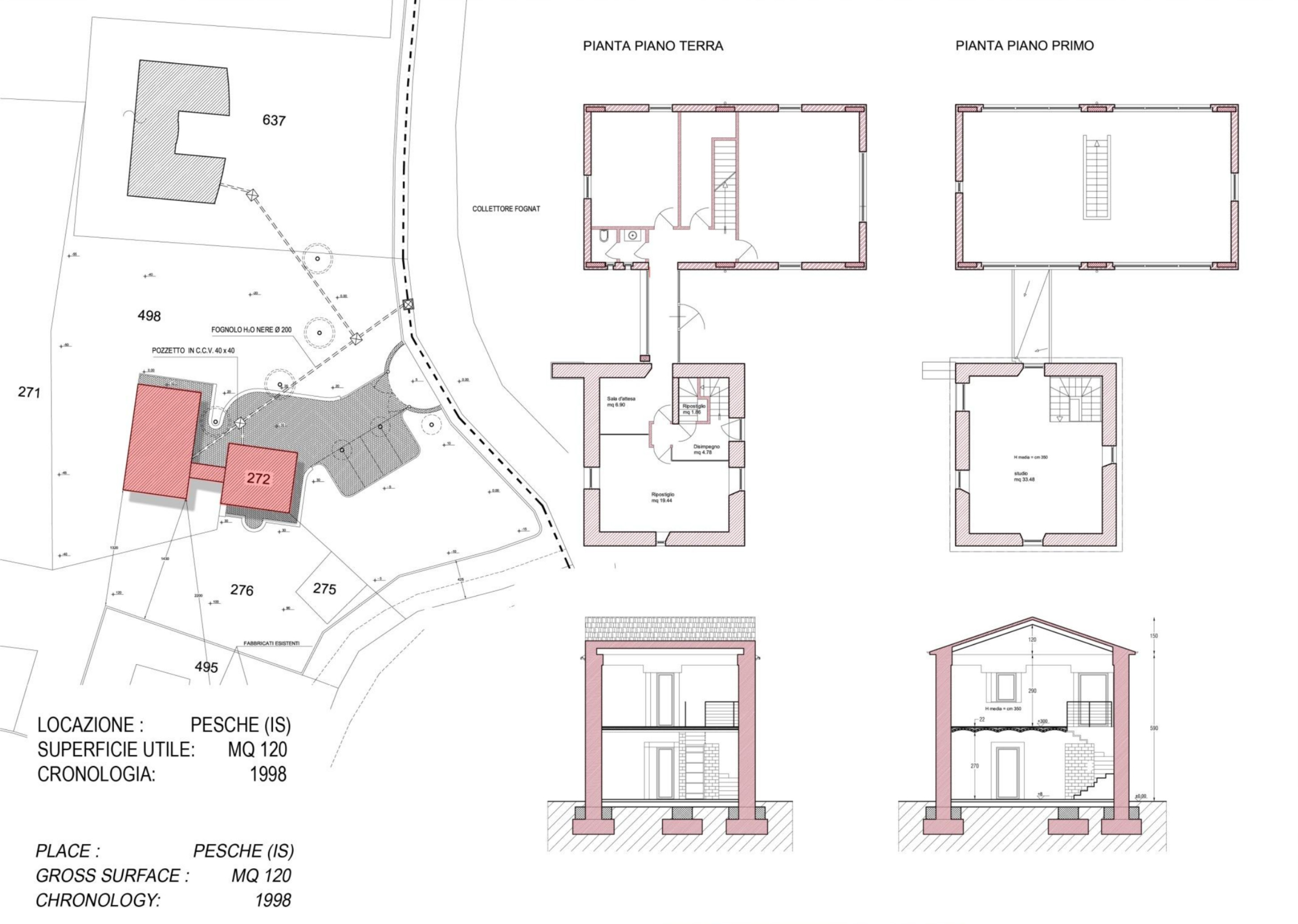
- Comune: Pesche
- Denominazione: STUDIO DELL' ARCHITETTO
- Indirizzo: Viale Ippocrate
- Data: 1998 -
- Tipologia: Abitazioni unifamiliari
- Autori principali: Pietro Angelo Travaglini
Descrizione
L'area su cui è posto il fabbricato è localizzata nella parte bassa del territorio comunale di Pesche (IS) nella zona a valle del centro abitato, dove nell’ultimo trentennio si è maggiormente sviluppata un'edificazione intensiva. L’edificio è ubicato ai margini di un insediamento produttivo di medie dimensioni ed a ridosso di un bosco di querce secolari, di particolare pregio. L’edificio, destinato a studio di progettazione, dista circa 20 m dall’abitazione dell’architetto, ed a pochi metri da un casolare in pietra, tipico delle case rurali degli anni ’40, completamente ristrutturato. La ristrutturazione del fabbricato esistente ha comportato alcune variazioni nella disposizione delle tramezzature, che hanno consentito un miglior inserimento delle funzioni previste. In tale contesto la scelta linguistica adottata, è volutamente di contrasto con l’architettura presente, con la finalità di creare due unità distinte nel pieno rispetto della tradizione, ma con uno sguardo rivolto verso un’architettura che raccoglie le istanze del nuovo millennio. Per cui è stato ipotizzato di realizzare un volume distaccato di ml. 4,00, che tenesse distinto il fabbricato esistente, il tutto unito da un percorso interamente vetrato. La scelta di distanziare i due corpi di fabbrica e di realizzare il collegamento vetrato è stata adottata anche per minimizzare l’impatto volumetrico complessivo, oltre che per generare di fatto uno cono visivo sul terreno retrostante ricco di vegetazione di particolare pregio. L’edificio di nuova realizzazione si presenta come un volume puro a pianta rettangolare di dimensioni in pianta pari a mt 7,00 x 12,00 e un’altezza di mt 5,36. Le due quinte murarie poste sui lati minori di testata di altezza poco superiore al colmo di copertura con tipologia a capanna, vanno a scandire il volume sui due prospetti minori, oltre a mascherare le pendenze del tetto. Il particolare taglio della vetrata va ad incorniciare la visione sul centro storico di Pesche (IS), all’interno una traccia di colore rosso segna la parte vetrata, così da sottolineare l’asse di simmetria e la verticalità della bucatura piramidale. La struttura in c.a. ha solai in acciaio e lamiera grecata a vista per il piano 1°, mentre il tetto a capanna è composto da travi in legno e pianali in legno, con tiranti in acciaio a vista, il tutto di colore bianco. Le pareti esterne in tavolato in c.c.v. 50x12x20, di colore giallo ocra, è scandito con ritmi variabili, da ricorsi in mattoni di laterizio pieno. Sotto l’aspetto distributivo, al piano terra troviamo un disimpegno che apre su un vano adibito a servizi igienici ed antibagno, e uno studio con sala riunioni, mentre al piano primo troviamo un unico vano che rappresenta la parte operativa. D’interesse è la configurazione della scala bicolore in marmi di carrara e serizzo, ricavata tra due quinte murarie e di ridotta larghezza, che nel percorrerla genera all’arrivo al P1° una sensazione di sorpresa, dato il contrasto con l’ampiezza e la luminosità della sala di lavoro.
Info
- Progetto: 1998 -
- Esecuzione: -
- Tipologia Specifica: Casa Studio
- Committente: architetto Pietro Angelo Travaglini
- Proprietà: Proprietà privata
- Destinazione attuale: studio professionale
Autori
- Strutture: Cemento Armato
- Materiale di facciata: blocchetti faccia vista in c.c.v.; mattoni di laterizio pieno
- Coperture: a falde in laterizio
- Serramenti: infissi in metallo
- Stato Strutture: Ottimo
- Stato Materiale di facciata: Ottimo
- Stato Coperture: Ottimo
- Stato Serramenti: Ottimo
- Vincolo: Non Vincolata
- Provvedimenti di tutela:
- Data Provvedimento:
- Riferimento Normativo:
- Altri Provvedimenti:
- Foglio Catastale: 20
- Particella: 904
Note
-
Allegati
Criteri
| 5. L’edificio o l’opera di architettura introduce e sperimenta significative innovazioni nell’uso dei materiali o nell’applicazione delle tecnologie costruttive. | |
| 7. L’edificio o l’opera di architettura si segnala per il particolare valore qualitativo all’interno del contesto urbano in cui è realizzata. |
Crediti Scheda
Enti di riferimento: DGCC - Segretariato Regionale per il MoliseTitolare della ricerca: Fondazione Architetti, Paesaggisti, Pianificatori e Conservatori della provincia di Campobasso
Responsabile scientifico: Mario Morrica
Scheda redatta da
creata il 22/08/2022
ultima modifica il 30/05/2023















