OPIFICIO DEL GIUDICE
Scheda Opera
- Comune: Termoli
- Località: Nucleo Industriale COSIB
- Denominazione: OPIFICIO DEL GIUDICE
- Indirizzo: Via Giulio Pastore N.20, 22
- Data: 2010 -
- Tipologia: Edifici per attività produttive
- Autori principali: Gabriele Traini
Descrizione
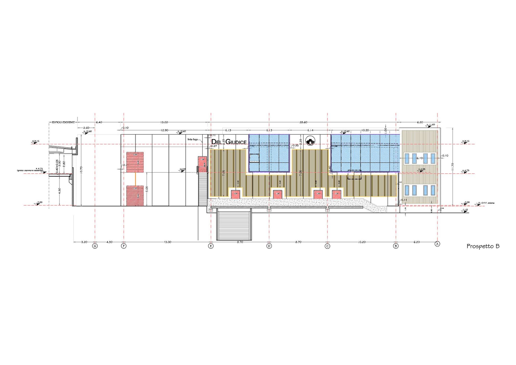
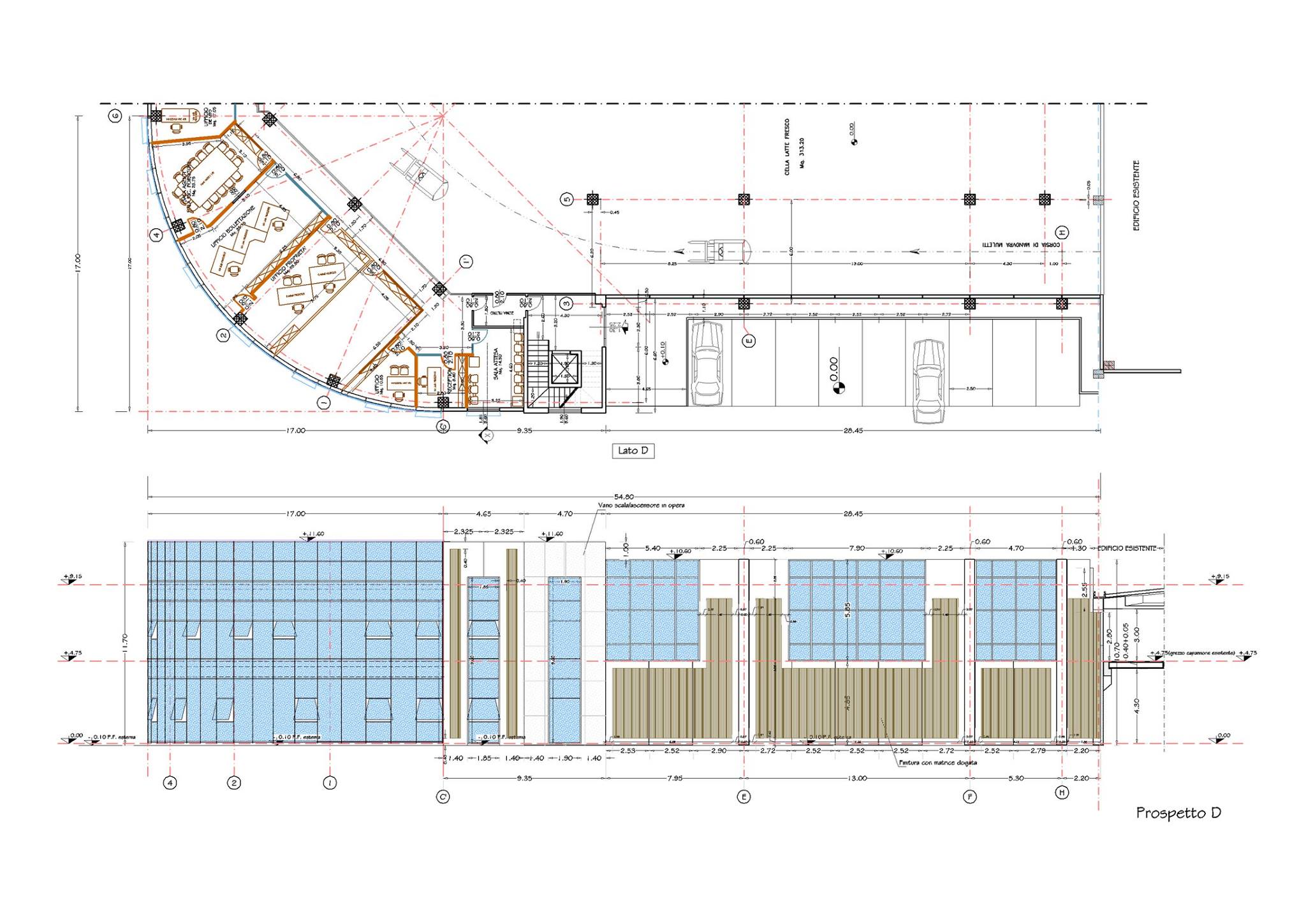
L’opificio industriale si inserisce all’interno di un contesto già ampiamente edificato, nel nucleo industriale del Comune di Termoli. L’area era stata nel passato già oggetto di edificazione infatti il preesistente edificio fu sede dapprima del pastificio Fusco e in seguito sede di Baiardo. Il sito si presenta dal punto di vista altimetrico del tutto pianeggiante, confinante sui lati lunghi con l’area sede dell’azienda Del Giudice e sul lato opposto con un’area a parcheggio, mentre sui lati corti risulta delimitata dalla strada consortile e dalla SS 87. La riflessione iniziale del progettista ha consentito di analizzare due possibili ipotesi d’intervento: la prima soluzione prevedeva un collegamento tra la nuova struttura all’esistente; mentre la seconda soluzione prevedeva una struttura “satellite” ossia organismo separato, ma venne subito scartata in quanto non pienamente rispondente alle necessità del ciclo produttivo, per cui la scelta fu sulla soluzione che connetteva fisicamente il nuovo intervento con all’azienda esistente. La soluzione progettuale prevede un collegamento ad “elle” all’altezza del lato anteriore dove si trovava un locale magazzino, poi demolito per far posto alla prima parte della nuova struttura attraverso una galleria di collegamento per il transito i mezzi di trasposto. Nel raccordo tra questa primo spazio e l’edificio che corre parallelo alla vecchia costruzione vi è posto una cerniera semicircolare su due livelli, all’interno della quale vi si sono inseriti gli spazi rappresentanza, sala attesa, ufficio spedizioni, sala riunione. Uno spazio filtro corre lungo tutto il perimetro dei locali indicati ad evitare in tal modo interferenze tra fasi di lavorazione e personale amministrativo.
Disposto a novanta gradi rispetto al primo spazio vi è il corpo di fabbrica con dimensioni maggiori di forma rettangolare, all’interno del quale troviamo sempre una galleria di servizio, a ridosso della quale su di un lato sono poste le bocche di carico e dall’altro vi è collocato un ampio spazio magazzino, con gli accessi per lo scarico disposti sia all’interno della galleria che nella corte esterna. I locali magazzino alla quota 0.00 presentano un’interruzione per consentire il transito tra le due strutture dei mezzi addetti al carico, ciò determina la formazione di due macro corpi di dimensioni diverse.
La necessità di avere per le zone interne di carico una buona illuminazione naturale, tale da ridurre al minimo l’utilizzo di un sistema di illuminazione artificiale, che avrebbe potuto creare problemi di riscaldamento della galleria, essendo questa a temperatura controllata, ha spinto ad adottare soluzioni architettoniche quali pannelli prefabbricati in cls per la parte inferiore, mentre l’estremità superiore è chiusa con una cosiddetta parete continua, costituita da montanti e traversi in metallo e vetri atermici a bassa conducibilità. L’idea di “scatola trasparente” del progettista è stato poi estesa nel corpo semicircolare del complesso edilizio, questa però è interamente avvolta da ampie lastre di cristallo delimitate sempre da strutture di metallo.
Info
- Progetto: 2010 -
- Esecuzione: -
- Committente: famiglia Del Giudice
- Proprietà: Proprietà privata
- Destinazione originaria: opificio industriale
- Destinazione attuale: opificio industriale
Autori
- Strutture: Cemento Armato e Acciaio
- Materiale di facciata: metallo e vetro; pannelli prefabbricati in cls
- Coperture: piana
- Serramenti: infissi in metallo
- Stato Strutture: Ottimo
- Stato Materiale di facciata: Ottimo
- Stato Coperture: Ottimo
- Stato Serramenti: Ottimo
- Vincolo: Non Vincolata
- Provvedimenti di tutela:
- Data Provvedimento:
- Riferimento Normativo:
- Altri Provvedimenti:
- Foglio Catastale: 49
- Particella: 21
Note
-
Allegati
Criteri
| 5. L’edificio o l’opera di architettura introduce e sperimenta significative innovazioni nell’uso dei materiali o nell’applicazione delle tecnologie costruttive. | |
| 7. L’edificio o l’opera di architettura si segnala per il particolare valore qualitativo all’interno del contesto urbano in cui è realizzata. |
Crediti Scheda
Enti di riferimento: DGCC - Segretariato Regionale per il MoliseTitolare della ricerca: Fondazione Architetti, Paesaggisti, Pianificatori e Conservatori della provincia di Campobasso
Responsabile scientifico: Mario Morrica
Scheda redatta da
creata il 24/08/2022
ultima modifica il 31/01/2023









