EDIFICIO RESIDENZIALE E COMMERCIALE
Scheda Opera
- Comune: Termoli
- Denominazione: EDIFICIO RESIDENZIALE E COMMERCIALE
- Indirizzo: Via Cavalieri di Vittorio Veneto
- Data: 2003 - 2009
- Tipologia: Edifici polifunzionali
- Autori principali: Giuseppe Mario Spina
Descrizione
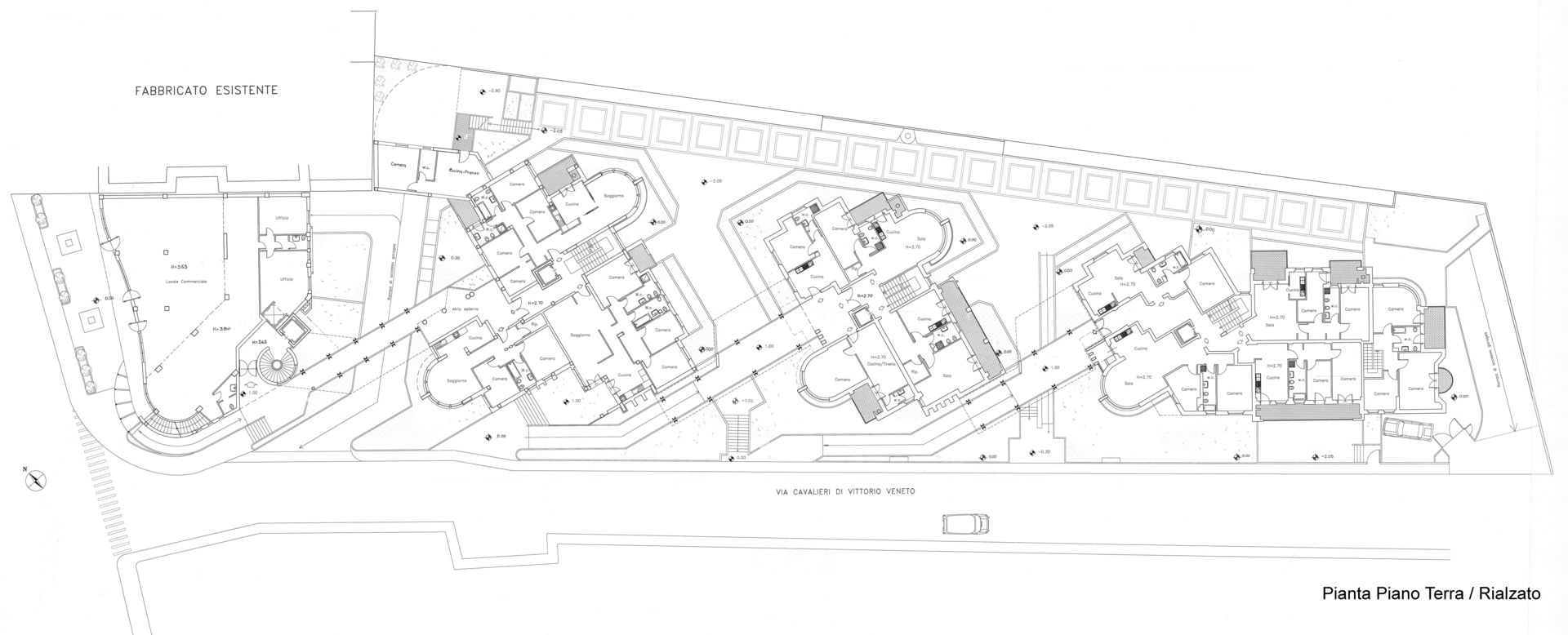
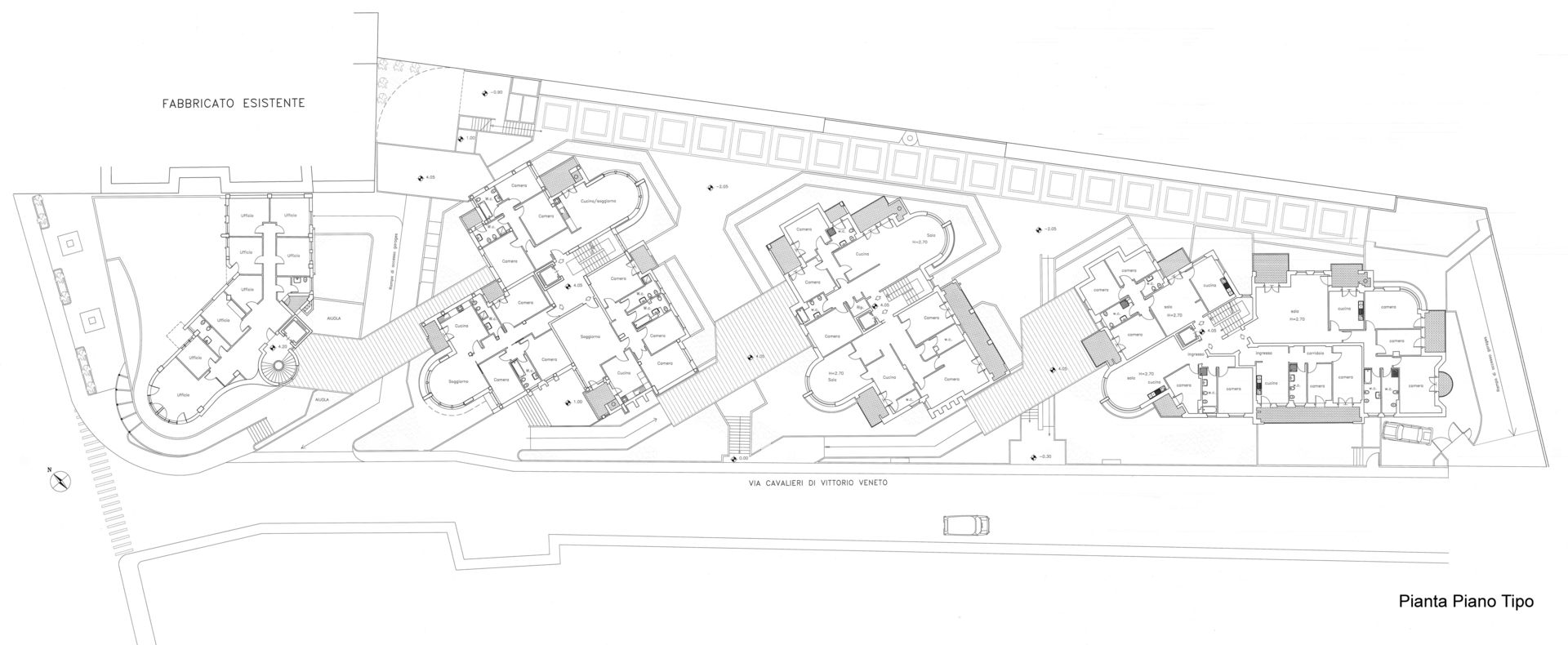
Il lotto di intervento, pur essendo in area “centrale” con grande valore aggiunto dovuto alla sua collocazione urbana, non si integra di fatto in modo adeguato al tessuto costruito esistente perché non realizza con esso alcuna continuità strutturale e formale e resta diviso dalla barriera della ferrovia. E’ compreso nella zona di completamento intensivo di recente edificazione, definito dall’arteria di grosso traffico interregionale S.S. Europa 2 e dalla ferroviaria adriatica. Nella concezione del planovolumerico ha assunto molta importanza la forma del lotto ed i relativi vincoli normativi dettati dal P.R.G. La Committenza ha inteso concentrare una quota di superficie destinata ad attività non residenziale in un unico volume, che ha influenzato ulteriormente la definizione del programma edilizio. Questo, infatti, si è concretizzato nella realizzazione di quattro corpi di fabbica di cui tre destinati ad attività residenziale ed uno, quello prospiciente via Abruzzi, a terziario. La geometria posta alla base dell’assetto planovolumetrico generale degli edifici è stata concepita in modo da esaltare la percezione sequenziale degli eventi costruttivi previsti che altrimenti, a causa delle caratteristiche del lotto di forma lunga e stretta, avrebbe privilegiato solo i corpi di testata. Si è scelto quindi di piegare l’asse di formazione di 30°, rispetto alla strada di accesso di via Cav. di Vittorio Veneto, per raggiungere l’obiettivo di offrire visuali più libere anche alle testate dei corpi intermedi, che altrimenti non avrebbero fruito di tale possibilità. Nella composizione dei volumi realizzati sono ricorrenti alcune soluzioni architettoniche, come l’utilizzo di corpi di testata e di snodo di forma circolare, chiusi o sfinestrati, e l’organizzazione di partiture di facciata e setti con modesti aggetti sporgenti che hanno segnato e differenziato i diversi corpi di fabbrica. La texture di facciata degli edifici è stata caratterizzata uleriormente con l’uso di rivestimenti in gres ceramico colorato ad ordito orizzontale che si intervallano a pareti intoncate ed in c.a. a vista. Tali partiture sono state organizzate, per i fabbricati residenziali, con definizione segnica razionale, mentre il fabbricato di testa è stato modellato con un gioco di curve che forma la strategia compositiva del volume d’angolo, dettato dall’esigenza di penetrare lo spazio ed il lotto stesso secondo le direttrici visuali privilegiate, senza esserne respinti. I blocchi residenziali hanno l’elemento ordine nei volumi circolari delle scale che rappresentano un riferimento aggregativo forte anche se collocati alternativamente su direzioni opposte. In definitiva l’intervento edilizio di progetto si pone nell’ottica di un vero e proprio recupero urbano di un’area dismessa, dove erano presenti gli edifici commerciali e di deposito dell’ex CAI, e finalizzato a migliorare la qualità e la continuità di questa parte di città senza imporsi con una connotazione segnica esaltata e fuori scala.
Info
- Progetto: 2003 -
- Esecuzione: 2003 - 2009
- Committente: Zeta Costruzioni S.r.l.
- Proprietà: Proprietà privata
- Destinazione originaria: Edifici residenziali e Uffici
- Destinazione attuale: Edifici residenziali e Uffici
Autori
- Strutture: Cemento Armato
- Materiale di facciata: calcestruzzo; gres ceramizzato; intonaco
- Coperture: piana; a falde
- Serramenti: infissi in alluminio
- Stato Strutture: Buono
- Stato Materiale di facciata: Buono
- Stato Coperture: Buono
- Stato Serramenti: Buono
- Vincolo: Non Vincolata
- Provvedimenti di tutela:
- Data Provvedimento:
- Riferimento Normativo:
- Altri Provvedimenti:
- Foglio Catastale: 14
- Particella: 71
Note
-
Allegati
Criteri
| 5. L’edificio o l’opera di architettura introduce e sperimenta significative innovazioni nell’uso dei materiali o nell’applicazione delle tecnologie costruttive. | |
| 7. L’edificio o l’opera di architettura si segnala per il particolare valore qualitativo all’interno del contesto urbano in cui è realizzata. |
Crediti Scheda
Enti di riferimento: DGCC - Segretariato Regionale per il MoliseTitolare della ricerca: Fondazione Architetti, Paesaggisti, Pianificatori e Conservatori della provincia di Campobasso
Responsabile scientifico: Mario Morrica
Scheda redatta da
creata il 31/08/2022
ultima modifica il 31/01/2023















