EDIFICIO RESIDENZIALE E COMMERCIALE
Scheda Opera
- Comune: Larino
- Località: Contrada Monte Arcano
- Denominazione: EDIFICIO RESIDENZIALE E COMMERCIALE
- Indirizzo: Strada Provinciale 80
- Data: 2009 -
- Tipologia: Edifici polifunzionali
- Autori principali: Leonardo Bellotti, Alfonso Scardera
Descrizione
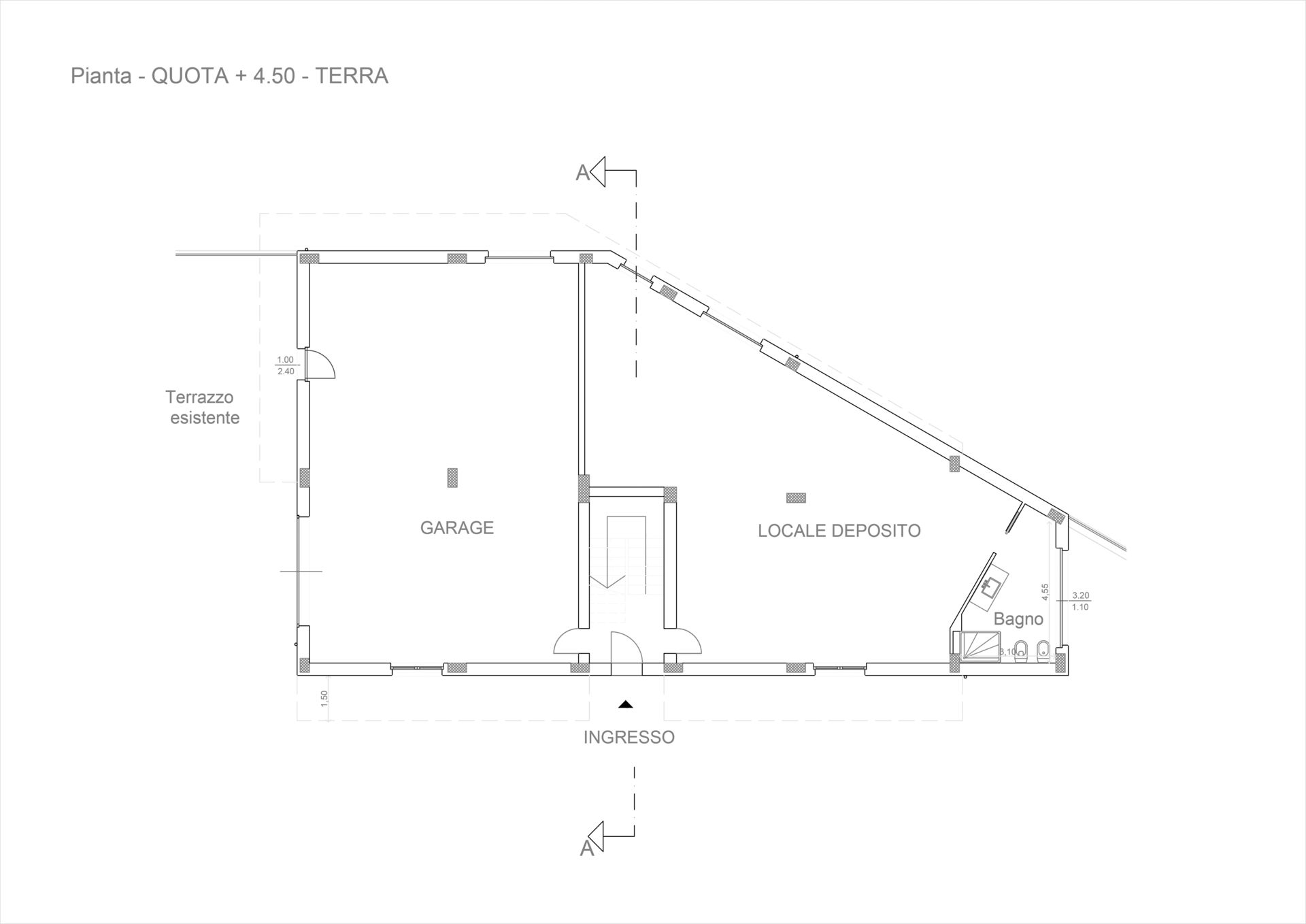
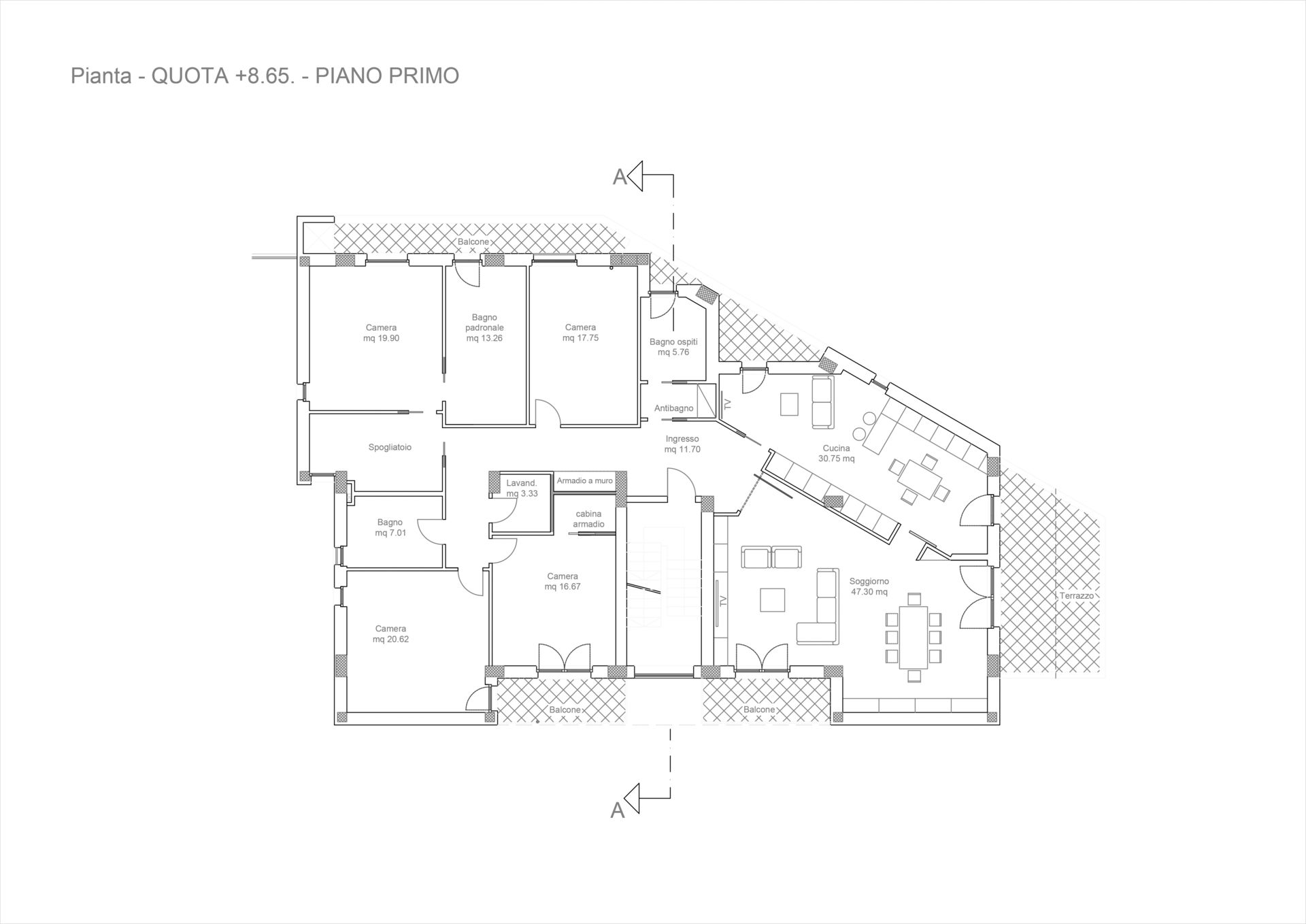
L’edificio in questione è stato realizzato su progetto dell’Arch. Leonardo Bellotti e dell’Ing. Alfonso Scardera intorno al 2009, ponendosi come terminale di un complesso edilizio realizzato dal committente in più fasi e collocato nella parte residuale di un lotto di forma approssimativamente trapezoidale. La configurazione del lotto ha di fatto fortemente influenzato la forma dell’edificio che ad esso si è sostanzialmente adeguato. Tale edificio oltre a soddisfare le esigenze funzionali del committente, giustifica la sua presenza quale testata architettonica, si spera qualificante, dell’intero complesso precedentemente realizzato. L’area è posta ai margini della zona artigianale della città, priva di un organico disegno urbano. La sua connotazione volumetrica si articola secondo una composizione che tende a distinguere il piano residenziale da quelli inferiori, che accolgono altre funzioni. Inizialmente il piano terra doveva svolgere attività commerciali ed il piano primo essere suddiviso in due appartamenti; sopraggiunte nuove esigenze hanno determinato la scelta di adibire il piano terra a locali di servizio (garage e deposito) dell’unico appartamento, mentre il piano seminterrato è utilizzato come rimessa mezzi dell’attività commerciale che si svolge nei locali limitrofi. Il piano coperture è a tipologia piana, accessibile direttamente attraverso il vano scala. Il linguaggio architettonico si rifà ad alcune ricerche contemporanee, volte ad una rivisitazione del razionalismo ma con maggiore sensibilità nei confronti del contesto locale. Una particolare attenzione viene posta nell’ articolazione plastica dei volumi e del rapporto tra pieni e vuoti, in cui le zone d’ombra partecipano alla composizione delle superfici. Questi vuoti, mai fini a se stessi, sono funzionali alla realizzazione di spazi aperti che creano visuali privilegiate verso l’ambiente circostante che ad est spaziano fino al mare.
Info
- Progetto: 2009 -
- Esecuzione: -
- Committente: Nicola Fiscarelli
- Proprietà: Proprietà privata
- Destinazione originaria: residenziale e commerciale
- Destinazione attuale: residenziale e commerciale
Autori
- Strutture: Cemento Armato
- Materiale di facciata: intonaco
- Coperture: piana
- Serramenti: infissi in alluminio
- Stato Strutture: Buono
- Stato Materiale di facciata: Buono
- Stato Coperture: Buono
- Stato Serramenti: Buono
- Vincolo: Non Vincolata
- Provvedimenti di tutela:
- Data Provvedimento:
- Riferimento Normativo:
- Altri Provvedimenti:
- Foglio Catastale: 27
- Particella: 196
Note
-
Allegati
Criteri
| 5. L’edificio o l’opera di architettura introduce e sperimenta significative innovazioni nell’uso dei materiali o nell’applicazione delle tecnologie costruttive. | |
| 7. L’edificio o l’opera di architettura si segnala per il particolare valore qualitativo all’interno del contesto urbano in cui è realizzata. |
Crediti Scheda
Enti di riferimento: DGCC - Segretariato Regionale per il MoliseTitolare della ricerca: Fondazione Architetti, Paesaggisti, Pianificatori e Conservatori della provincia di Campobasso
Responsabile scientifico: Mario Morrica
Scheda redatta da
creata il 01/09/2022
ultima modifica il 31/01/2023
















