EDIFICO RESIDENZIALE
Scheda Opera
- Comune: Santa Croce di Magliano
- Denominazione: EDIFICO RESIDENZIALE
- Indirizzo: Via Germania
- Data: 2009 -
- Tipologia: Abitazioni plurifamiliari
- Autori principali: Filomena De Maioribus, Roberta Di Benigno
Descrizione
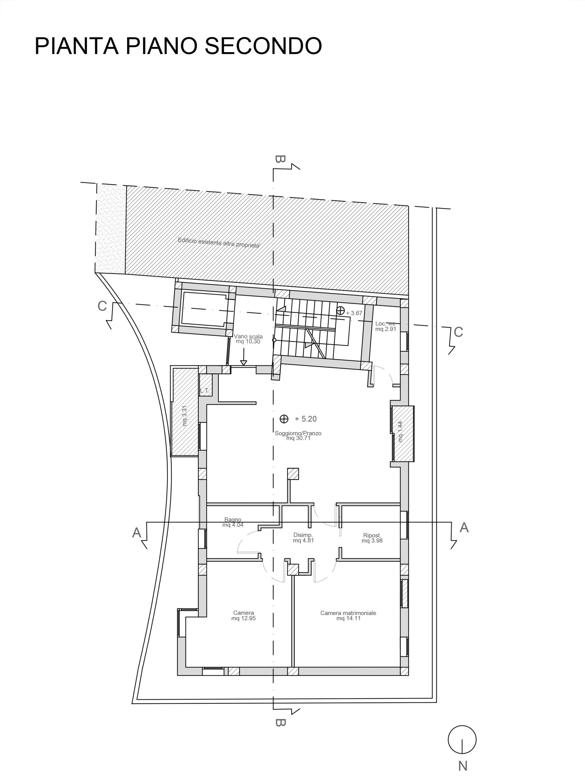
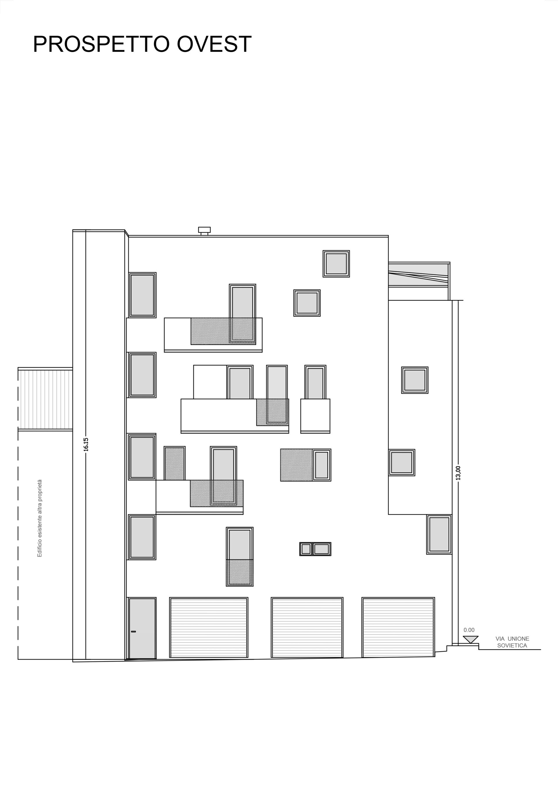
L’edificio in questione è collocato nel comune di Santa Croce Di Magliano (CB) precisamente in Via Germania, è stato realizzato intorno al 2011 su un progetto del 2009 degli architetti Filomena De Maioribus e Roberta Di Benigno, ponendosi in netto contrasto con gli schemi architettonici locali consolidati, rompendo quella staticità e regolarità delle facciate dei fabbricati adiacenti caratterizzati da un cornicione aggettante. Dal punto di vista architettonico è un piccolo edificio residenziale a basso costo realizzato in un piccolo lotto di forma molto strana, con distacchi dai fabbricati di soli 10 mt così come previsto nello strumento urbanistico vigente. Il fabbricato, per sfruttare la volumetria prescritta, insegue il perimetro del lotto, disegnando a tratti un rettangolo non perfetto presenta una struttura regolare in cemento armato travi e pilastri, i solai sono in laterocemento, il tetto è ad una falda e le tamponature sono in laterizio rivestite da un cappotto isolante rifinito ad intonaco colorato con gli infissi in pvc rinforzato da un’anima di fibra di vetro. Dal punto di vista stilistico I blocchi che costituiscono il fabbricato identificano il corpo ascensore tutto colorato di verde con gli alloggi residenziali ed un terzo blocco che sembra voler avvolgere il fabbricato, colorati invece a contrasto con un colore neutro; la stessa scansione dei volumi è caratterizzata dalla compattezza delle pareti rivestite da intonaco. L’edificio si compone di un piano terra adibito a garage e quattro piani adibiti a residenza, di cui il piano terzo e quarto collegati internamente.
Info
- Progetto: 2009 -
- Esecuzione: 2011 -
- Committente: D.M.R s.r.l
- Proprietà: Proprietà privata
- Destinazione originaria: residenziale
- Destinazione attuale: residenziale
Autori
- Strutture: Cemento Armato
- Materiale di facciata: intonaco
- Coperture: a falda
- Serramenti: infissi in pvc
- Stato Strutture: Ottimo
- Stato Materiale di facciata: Ottimo
- Stato Coperture: Ottimo
- Stato Serramenti: Ottimo
- Vincolo: Non Vincolata
- Provvedimenti di tutela:
- Data Provvedimento:
- Riferimento Normativo:
- Altri Provvedimenti:
- Foglio Catastale: 20
- Particella: 1728
Note
-
Criteri
| 5. L’edificio o l’opera di architettura introduce e sperimenta significative innovazioni nell’uso dei materiali o nell’applicazione delle tecnologie costruttive. | |
| 7. L’edificio o l’opera di architettura si segnala per il particolare valore qualitativo all’interno del contesto urbano in cui è realizzata. |
Crediti Scheda
Enti di riferimento: DGCC - Segretariato Regionale per il MoliseTitolare della ricerca: Fondazione Architetti, Paesaggisti, Pianificatori e Conservatori della provincia di Campobasso
Responsabile scientifico: Mario Morrica
Scheda redatta da
creata il 02/09/2022
ultima modifica il 31/01/2023












