STABILIMENTO EX ITTIERRE
Scheda Opera
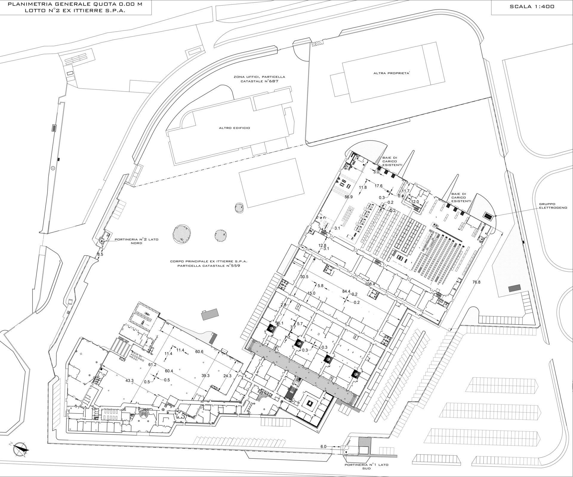
- Comune: Pettoranello del Molise
- Località: zona industriale Pantaniello
- Denominazione: STABILIMENTO EX ITTIERRE
- Indirizzo: Strada Statale N. 17
- Data: 1986 - 1997
- Tipologia: Edifici per attività produttive
- Autori principali: Paolo Guerra, Marco Marano
Descrizione
L’edificio ex Ittierre è situato nella zona industriale di Pettoranello del Molise (IS) ed è composto da circa 23.500 mq coperti, senza tener conto degli altri edifici industriali limitrofi facenti parte del complesso industriale (complessivamente circa 48.000 mq coperti). Nel 1986 la “Manifatture Ittierre” rilevò un piccolo corpo di fabbrica, su cui fece progettare il primo di una serie di ampliamenti (1986/'89/'90) con progetti a firma dell’ing. Paolo Guerra, con l’estensione del fronte prospettico che arrivava poco oltre l’ingresso principale, con struttura per uffici a doppio livello e due magazzini con affaccio sul piazzale retrostante. Nel giugno 1996 si ebbe l’ultimo ampliamento in linea temporale, curato dall’ing. Marco Marano che portò alla configurazione attuale, articolato in tre lotti funzionali: con il primo stralcio si realizzò l’ultimo blocco del fronte principale, leggermente ruotato per riportare l’allineamento ortogonale per lo sviluppo dei successivi stralci. Per esigenze illuminitecniche venne realizzata al centro delle nuove aree ufficio una piramide in vetro a copertura di una chiostrina quadrata; per la struttura, a due livelli, si adottò una soluzione in acciaio e pannelli prefabbricati in c.a. con getti di completamento. Il secondo stralcio (1997 - venne realizzato in 4 mesi da maggio a settembre- ancora con struttura in acciaio. Con il terzo stralcio (poi variante generale) si realizzarono il magazzino delle materie prime, e contemporaneamente si realizzò la galleria vetrata, per permettere un passaggio più confortevole fra le due aree uffici. Esigenze di flessibilità nell’uso degli spazi hanno indotto a realizzare in tutto il secondo stralcio (uffici stile, modelli, laboratori) pavimenti sopraelevati, controsoffitti e pareti mobili divisorie che hanno subito, nel corso degli anni, numerosissimi spostamenti per riadattare gli spazi alle necessità mutevoli dell’azienda.
Info
- Progetto: 1986 -
- Esecuzione: - 1997
- Committente: Manifatture Ittierre - Holding Tonino Perna
- Proprietà: Proprietà privata
- Destinazione originaria: azienda tessile
Autori
- Strutture: cemento armato e acciaio
- Materiale di facciata: acciaio; vetro
- Coperture: piana
- Serramenti: infissi in alluminio
- Stato Strutture: Ottimo
- Stato Materiale di facciata: Ottimo
- Stato Coperture: Ottimo
- Stato Serramenti: Ottimo
- Vincolo: Non Vincolata
- Provvedimenti di tutela:
- Data Provvedimento:
- Riferimento Normativo:
- Altri Provvedimenti:
- Foglio Catastale: 4
- Particella: 559
Note
-
Allegati
Criteri
| 5. L’edificio o l’opera di architettura introduce e sperimenta significative innovazioni nell’uso dei materiali o nell’applicazione delle tecnologie costruttive. | |
| 7. L’edificio o l’opera di architettura si segnala per il particolare valore qualitativo all’interno del contesto urbano in cui è realizzata. |
Crediti Scheda
Enti di riferimento: DGCC - Segretariato Regionale per il MoliseTitolare della ricerca: Fondazione Architetti, Paesaggisti, Pianificatori e Conservatori della provincia di Campobasso
Responsabile scientifico: Mario Morrica
Scheda redatta da
creata il 22/09/2022
ultima modifica il 31/01/2023



















