edificio per abitazioni
Scheda Opera
- Comune: Milano
- Denominazione: edificio per abitazioni
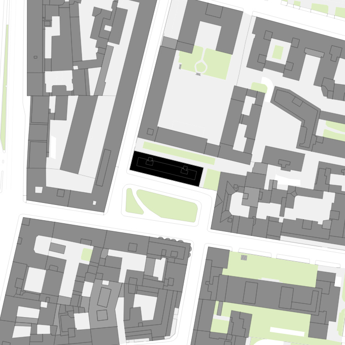
- Indirizzo: piazza Mirabello N.1
- Data: 1964 - 1968
- Tipologia: Abitazioni plurifamiliari
- Autori principali: Jan Andrea Battistoni
Descrizione
Tra il 1964 e il 1968 l'architetto Jan Andea Battistoni progetta e costruisce un edificio per abitazioni su incarico del Consiglio degli Orfanotrofi e del Pio Albergo Trivulzio di Milano: l'esito, per la razionalità della composizione e la qualità costruttiva, può essere considerato tra più significativi esempi di architettura residenziale milanese degli anni Sessanta del Novecento.
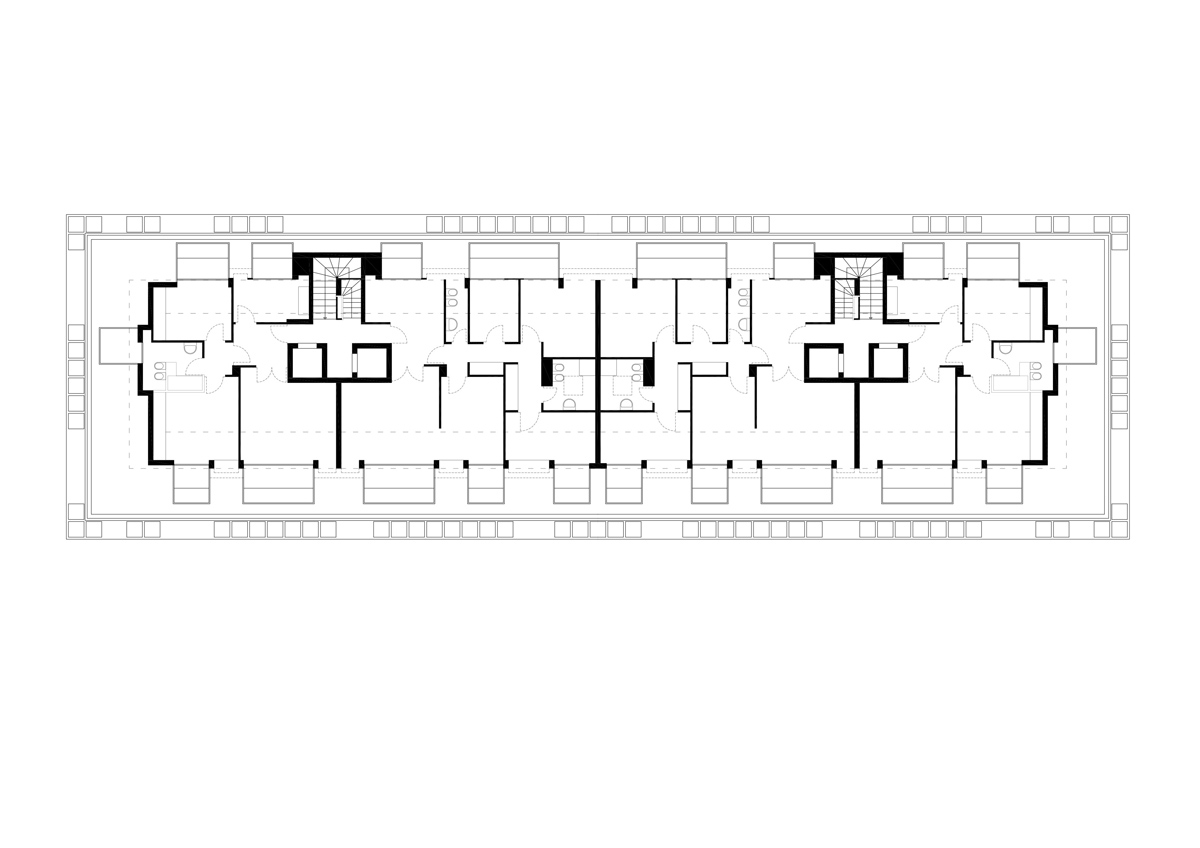
L'edificio – un corpo in linea con autorimessa interrata, seminterrato, basamento, tre piani tipo più attico e mansarda – occupa l'intero lato nord della piazza rettangolare sulla quale si attesta. Dal punto di vista formale, la composizione è caratterizzata da una sequenza di robusti cornicioni sporgenti che percorrono l'architettura in tutto il suo perimetro e ne scandiscono verticalmente la successione dei piani. Le superfici di tamponamento, ai piani tipo, alternano pannelli prefabbricati in graniglia color grigio antracite a serramenti, singoli o in sequenza, alti l'intero interpiano e dotati di pregevoli scuri in legno. Nella fitta giustapposizione delle aperture, evidente in diversi tratti del prospetto principale su piazza Mirabello, si può leggere il tentativo di conciliare le proporzioni alte e strette della finestra alla milanese con il tema dell'apertura a nastro di matrice razionalista. Il basamento, più compatto, è rivestito, analogamente ai cornicioni, in lastre di trachite vetusta ed è scandito da sequenze di portefinestre dotate di sistemi di oscuramento ad avvolgibile. Il piano seminterrato, dal passo di aperture più irregolare, è uniformato dalla griglia di profilati in ferro che percorre l'intero fabbricato in corrispondenza dell'attacco a terra e si interrompe soltanto per lasciare il passo al portone d'ingresso in ferro e vetro, impreziosito da tre fasce ortogonali di strombature laterali. Il quarto piano, arretrato, è circondato da un ampio terrazzo perimetrale, sormontato dall'elegante soluzione della gronda sporgente sospesa, alleggerita da sequenze di aperture quadrate che consentono il passaggio della luce naturale e suggestivi scorci sul cielo. L'ultimo livello è mansardato ed ospita appartamenti di più ridotte dimensioni; al piano interrato è ricavata l'autorimessa pertinenziale, con rampa d'accesso sulla retrostante via San Fermo.
L'articolazione distributiva interna è impostata su due moduli identici, affiancati specularmente: ciascuno di essi è dotato di vano scala a doppia rampa con coppia di ascensori, tramite i quali si accede agli appartamenti, quattro per piano ad eccezione dell'attico che ne ospita due. Gli alloggi ai piani tipo, dotati di duplice ingresso indipendente padronale e di servizio, si affacciano con le zone giorno e le camere padronali – ad eccezione di una delle due camere da letto – verso sud, il fronte meglio esposto all'irraggiamento solare e rivolto sulla piazza. Gli ambienti di servizio sono esposti a nord e comprendono un modulo tecnico esterno composto dalla loggia, schermata da frangisole, attraverso la quale si accede al vano lavanderia, un bowindow con piccole aperture quadrate.
La compattezza dell'involucro edilizio, derivata dalla razionalità modulare dell'impianto distributivo, l'elegante composizione dei fronti, dove spicca la ricercatezza dei materiali e l'attento studio dei dettagli costruttivi, e, in ultima analisi, la chiarezza dell'inserimento urbano conferiscono all'edificio di piazza Mirabello una posizione di rilievo tra gli esempi milanesi di moderno condominio signorile.
Info
- Progetto: 1964 - 1968
- Esecuzione: 1964 - 1968
- Tipologia Specifica: architettura per la residenza, il terziario e i servizi (OGTD edificio per abitazioni)
- Committente: Consiglio degli Orfanotrofi e del Pio Albergo Trivulzio di Milano
- Proprietà: Proprietà Ente pubblico non territoriale
- Destinazione originaria: abitazione
- Destinazione attuale: abitazione / ufficio
Autori
- Strutture: travi e pilastri in cemento armato
- Materiale di facciata: pannelli di rivestimento in lastre di trachite vetusta, cornicioni e basamento; pannelli di graniglia color grigio antracite, tamponamenti ai piani tipo
- Coperture: mista a falde con mansarda e piana, lastre in fibrocemento color naturale; gronda con cornicione e sporti orizzontali forati rivestiti in lamiera di rame
- Serramenti: in legno douglas naturale per le finestre, in legno pitch pine naturale per gli scuri, entrambi verniciati al flatting; avvolgibili (basamento), scuri (piani superiori)
- Stato Strutture: Buono
- Stato Materiale di facciata: Discreto
- Stato Coperture: Buono
- Stato Serramenti: Discreto
- Vincolo: Non Vincolata
- Provvedimenti di tutela:
- Data Provvedimento:
- Riferimento Normativo:
- Altri Provvedimenti:
- Foglio Catastale: -
- Particella: -
Note
Jan Andrea Battistoni nasce ad Oslo il 4 Settembre del 1926 da madre norvegese e padre italiano. La famiglia possedeva uno stabilimento di elettrochimica e di raffinazione dello zucchero. Cresce a Milano e si laurea in Architettura a Firenze con una tesi progettuale su uno zuccherificio. Dopo la laurea, apre uno studio di architettura prima in via Turati, poi in via Moscova. Oltre alla collaborazione con il Consiglio degli Orfanotrofi e del Pio Albergo Trivulzio, con la realizzazione dell'edificio per abitazioni in piazza Mirabello 1, tra i suoi lavori si segnalano la ristrutturazione del complesso delle Stelline in corso Magenta (1971-1973), la costruzione di una palazzina per l'Istituto Mario Negri e il progetto museografico di una sezione del Museo del Duomo di Monza. Muore a Milano il 3 marzo del 1983.
Bibliografia
| Autore | Anno | Titolo | Edizione | Luogo Edizione | Pagina | Specifica |
|---|---|---|---|---|---|---|
| Boriani M., Morandi C., Rossari A. | 1986 | Milano contemporanea, itinerari di architettura e urbanistica | Designers Riuniti Editori | Milano | 137 | Si |
| Pierini O. S., Isastia A. | 2017 | Case Milanesi 1923-73 | Hoepli | Milano | pp. 428-431 | Si |
| Pierini O.S. | 2017 | Abitare, Tre case milanesi | n. 563, aprile | Milano | pp.129-133 | Si |
Allegati
Criteri
| 4. L’edificio o l’opera di architettura riveste un ruolo significativo nell’ambito dell’evoluzione del tipo edilizio di pertinenza, ne offre un’interpretazione progressiva o sperimenta innovazioni di carattere distributivo e funzionale. | |
| 5. L’edificio o l’opera di architettura introduce e sperimenta significative innovazioni nell’uso dei materiali o nell’applicazione delle tecnologie costruttive. | |
| 7. L’edificio o l’opera di architettura si segnala per il particolare valore qualitativo all’interno del contesto urbano in cui è realizzata. |
Crediti Scheda
Enti di riferimento: Ministero della CulturaTitolare della ricerca:
Responsabile scientifico: Costa, Andrea
Scheda redatta da Sartori, Alessandro e Pierini, Simona Orsina
creata il 13/01/2023
ultima modifica il 24/01/2025















