CASA NELLA CAMPAGNA IBLEA
Scheda Opera
- Comune: Noto
- Località: Contrada Serravetrano
- Denominazione: CASA NELLA CAMPAGNA IBLEA
- Indirizzo: Contrada Serravetrano, snc
- Data: 2006 - 2012
- Tipologia: Abitazioni unifamiliari
- Autori principali: Bruno Salvatore Messina, Francesco Infantino
Descrizione
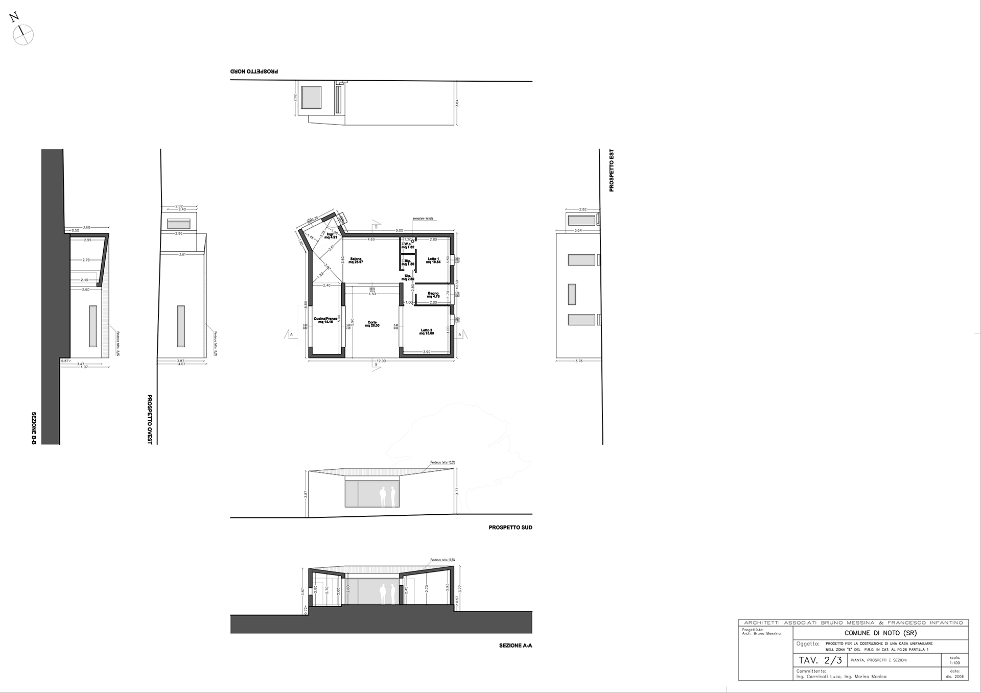
La casa si trova nel Val di Noto, nella campagna di Palazzolo Acreide. In questo territorio coesistono, in una dimensione temporale dilatata, insediamenti rupestri arcaici, città di fondazione greca, città ricostruite dopo il terremoto del 1693, insediamenti rurali ancora in attività. La presenza dell’Etna sullo sfondo costituisce un elemento di riconoscibilità che conferisce un carattere preciso allo skyline del sito, pur nel variare delle condizioni climatiche e di visibilità nel corso delle stagioni. L'area su cui insiste la costruzione, la cui recinzione è costituita esclusivamente dai muri a secco esistenti, pur se restaurati ed integrati, presenta due elementi di interesse storico-antropologico e paesaggistico: un leccio centenario – l’unico albero presente nel lotto – e un’antica aia per la battitura del grano. Queste due presenze hanno costituito un riferimento nelle soluzioni progettuali, determinando la scelta insediativa e la posizione della costruzione.
La casa è posta sulla parte più elevata di un lotto acclive (che conserva tuttora carattere e destinazione agraria) ed è fondata direttamente su un banco di roccia. L’edificio si organizza attorno ad una corte aperta, palesando un chiaro riferimento ad una consolidata tipologia distributiva e formale della tradizione architettonica rurale dell’altopiano ibleo. Il volume stereometrico ad una elevazione, interamente realizzato in pietra calcarea locale, rimanda all'immagine di un monolito bianco nel paesaggio rurale. La casa è posizionata fuori dalla fascia di rispetto del corso d’acqua indicata dalla carta dei vincoli ed in prossimità dell’albero e dell’aia, di cui è prevista la manutenzione ed il restauro.
I tre lati costruiti del perimetro rettangolare dell’edificio attorno alla corte definiscono funzionalmente la zona giorno, la zona pranzo (con angolo cottura) e la zona notte. L'ingresso alla casa è costituito da un piccolo corpo ruotato, quasi avulso dalla composizione nitida dell’edificio, che guarda a nord in direzione dell'Etna. La corte interna si apre verso sud-ovest, inquadrando la vista della valle del Tellaro.
Percorrendo l’interno della casa si vede come le aperture descrivano sequenze e traguardi visivi che accolgono o delimitano la vista del paesaggio, definendo la graduale transizione dallo spazio interno alla natura circostante.
Il paramento lapideo è realizzato in calcare bianco. La copertura è definita da un tetto a una falda, inclinata verso la corte. I pavimenti della corte sono realizzati in pietra bianca di Modica mentre i pavimenti interni sono in pietra lavica. Gli infissi sono realizzati in legno okumè.
Info
- Progetto: 2006 - 2006
- Esecuzione: 2009 - 2012
- Committente: Luca Carminati, Monica Marino
- Proprietà: Proprietà privata
- Destinazione originaria: Abitazione
- Destinazione attuale: Abitazione
Autori
- Strutture: Cemento armato
- Materiale di facciata: Pietra calcarea
- Coperture: Copertura a falde inclinate
- Serramenti: Serramenti in legno
- Stato Strutture: Ottimo
- Stato Materiale di facciata: Ottimo
- Stato Coperture: Ottimo
- Stato Serramenti: Ottimo
- Vincolo: Non Vincolata
- Provvedimenti di tutela: Nessuna opzione
- Data Provvedimento:
- Riferimento Normativo:
- Altri Provvedimenti:
- Foglio Catastale: 26
- Particella: 252
Note
-
Bibliografia
| Autore | Anno | Titolo | Edizione | Luogo Edizione | Pagina | Specifica |
|---|---|---|---|---|---|---|
| Lopes Riccardo | 2008 | Casa nella campagna iblea | in Lopes Riccardo, Bruno Messina_Percorsi d'architettura, Librìa | Melfi | 72-75 | Si |
| Messina Bruno | 2014 | Casa nella campagna iblea, Noto (SR) | in Basili Giulio, Carotti Lisa, De Felice Chiara, Zocco Salvatore (a cura di), Identità dell'architettura italiana 12° convegno, Edizioni Diabasis | Parma | 89-99 | Si |
| Messina Bruno | 2020 | Casa CM | in Foti Fabrizio, Pellegrino Luigi, Abitare il contado. La casa nella costruzione del paesaggio ibleo, LetteraVentidue | Siracusa | 100-115 | Si |
| Cacciatore Francesco | 2023 | Casa nella campagna iblea | in Cacciatore Francesco (a cura di), Gli Iblei nella casa. Sei case di Messina e Infantino in Sicilia, LetteraVentidue | Siracusa | 77-96 | Si |
Fonti Archivistiche
| Titolo | Autore | Ente | Descrizione | Conservazione |
|---|---|---|---|---|
| Casa nella campagna iblea | Bruno Messina, Francesco Infantino | Archivio studio professionale Messina Infantino Architetti Associati | Elaborati grafici |
Allegati
Criteri
| 1. L’edificio o l’opera di architettura è citata in almeno tre studi storico-sistematici sull’architettura contemporanea di livello nazionale e/o internazionale. | |
| 4. L’edificio o l’opera di architettura riveste un ruolo significativo nell’ambito dell’evoluzione del tipo edilizio di pertinenza, ne offre un’interpretazione progressiva o sperimenta innovazioni di carattere distributivo e funzionale. | |
| 7. L’edificio o l’opera di architettura si segnala per il particolare valore qualitativo all’interno del contesto urbano in cui è realizzata. |
Sitografia ed altri contenuti online
| Titolo | Url |
|---|---|
| Messina Infantino Architetti associati | Visualizza |
| Divisare | Visualizza |
Crediti Scheda
Enti di riferimento: Direzione generale creatività contemporaneaTitolare della ricerca: Università degli studi di Catania
Responsabile scientifico: Paola Barbera
Scheda redatta da Edoardo Dotto (Università degli studi di Catania)
creata il 05/02/2024
ultima modifica il 22/01/2025









