LABORATORIO DI CITTÀ NELSON MANDELA
Scheda Opera
- Comune: Misterbianco
- Località: Zona Toscano
- Denominazione: LABORATORIO DI CITTÀ NELSON MANDELA
- Indirizzo: Via Giuseppe Barone
- Data: 2003 - 2011
- Tipologia: Edifici polifunzionali
- Autori principali: Architetti Associati Mimesi62
Descrizione
Esito di un concorso internazionale di progettazione bandito dal Comune di Misterbianco nel 2003, di cui lo studio Mimesi62 è risultato vincitore, il Laboratorio di città è una struttura polifunzionale con una precisa vocazione urbana. La sua realizzazione, infatti, si inserisce nel programma di interesse comunitario URBAN II - Misterbianco Le città possibili, con l’obiettivo di creare uno spazio di relazione sociale e di promozione culturale a servizio della comunità. Situato in un’area urbana contrassegnata da un insediamento diradato, a cerniera fra il nucleo storico consolidato e la periferia di più recente formazione, il complesso polifunzionale nasce dalla intenzione di operare una duplice riconnessione del tessuto urbano e di quello sociale. La richiesta dell’amministrazione era di un “segno urbano riconoscibile” per una cittadinanza ormai “disabituata a riconoscersi in edifici dotati di rappresentatività”, per riaffermare il senso di appartenenza e radicamento nel territorio e promuovere relazioni e collegamenti fra cittadini (originari e di nuovo insediamento) e parti della città, anche superando il vincolo delle prossimità spaziali.
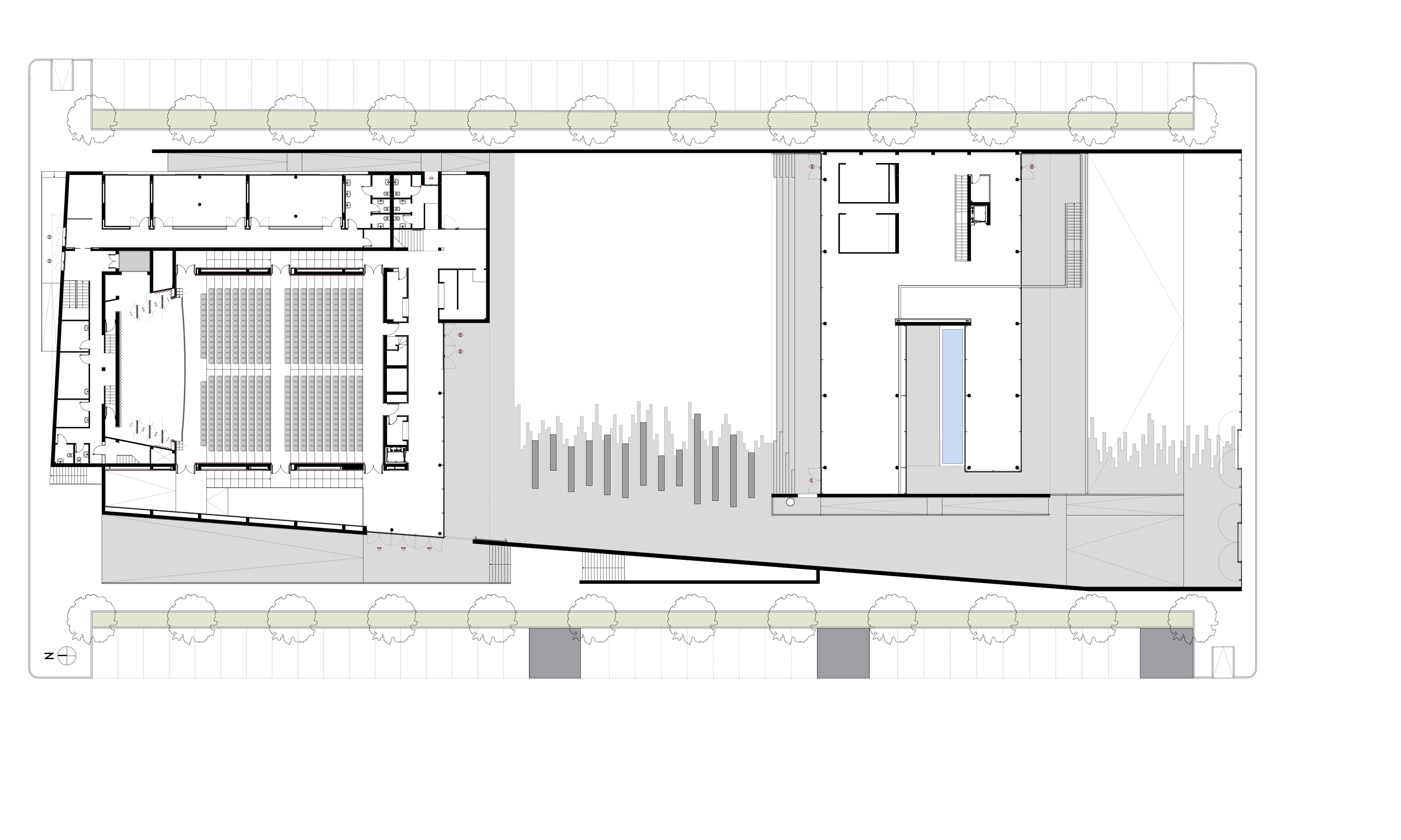
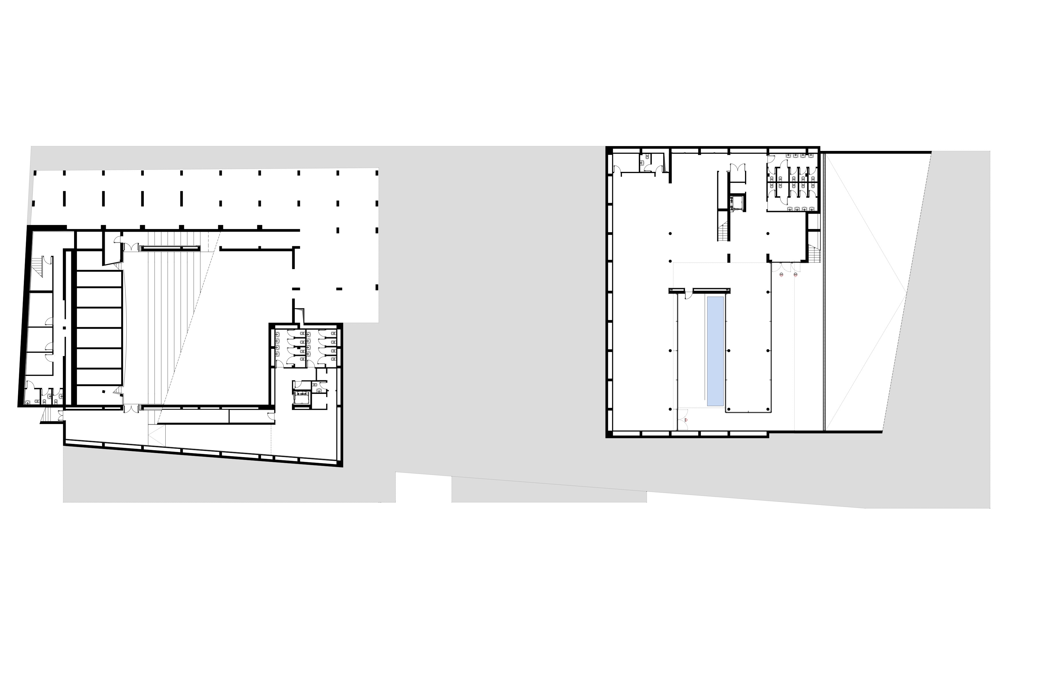
Il progetto realizzato risponde a tali istanze a partire dalla definizione di un preciso principio fondativo, materializzato dalla definizione di un recinto che delimita gli spazi, rilega i diversi blocchi funzionali e suggerisce, nel ripiegarsi o nell’accostarsi ai due volumi emergenti principali, l’invito a introdursi all’interno della struttura. Il complesso si compone di due edifici affacciati su una piazza interna centrale, posta al di sopra del basamento che connette insieme i volumi edificati e gli spazi aperti. Un blocco ospita l’auditorium Nelson Mandela e spazi di laboratori a esso correlati, mentre il secondo blocco della Galleria riunisce la mediateca, la sala internet e la galleria d’arte. Caratterizzati da una geometria di piani e volumi essenziali, i due edifici contrapposti sono definiti come da un’unica lastra sagomata che forma la copertura, si ripiega sui fianchi laterali e si prolunga in profondi aggetti, atti a schermare le ampie vetrate che si aprono sulla piazza e, con le loro trasparenze, intessono relazioni visive fra le due parti del complesso. Il gioco di luci e ombre viene ulteriormente animato dal traforo di brise-soleil in alluminio che mitigano gli effetti della radiazione solare e rispondono all’esigenza di razionalizzazione e contenimento energetico, ricercata nella realizzazione anche attraverso le scelte impiantistiche e l’adozione di tecnologie innovative. La pavimentazione della piazza, in cemento bianco graffiato, si interrompe sulle lastre scure di pietra lavica che, animandosi anche verticalmente, sembrano evocare una colata che si sia improvvisamente cristallizzata sul margine dell’invaso.
Info
- Progetto: 2003 - 2004
- Esecuzione: 2006 - 2011
- Tipologia Specifica: Auditorium, mediateca e sale studio
- Committente: Comune di Misterbianco
- Proprietà: proprietà Ente pubblico territoriale
- Destinazione originaria: Centro polifunzionale
- Destinazione attuale: Centro polifunzionale
Autori
- Strutture: calcestruzzo di cemento armato; pilastri a vista della Galleria in acciaio; capriate di copertura dell'Auditorio in acciaio
- Materiale di facciata: intonaco; lastre isolanti STO per le parti con struttura in acciaio
- Coperture: lastre metalliche in alluminio RIVERCLACK, con pannelli fotovoltaici
- Serramenti: alluminio
- Stato Strutture: Buono
- Stato Materiale di facciata: Buono
- Stato Coperture: Buono
- Stato Serramenti: Buono
- Vincolo: Non Vincolata
- Provvedimenti di tutela: Nessuna opzione
- Data Provvedimento:
- Riferimento Normativo:
- Altri Provvedimenti:
- Foglio Catastale: 10
- Particella: 1193
Note
L'incarico è l'esito di un concorso internazionale di progettazione bandito dal Comune di Misterbianco nel 2003
Bibliografia
| Autore | Anno | Titolo | Edizione | Luogo Edizione | Pagina | Specifica |
|---|---|---|---|---|---|---|
| Di Nardo Paolo | 2016 | Linee composte. Un disegno di luci ed ombre | in "And", n. 29 | 46-49 | Si |
Fonti Archivistiche
| Titolo | Autore | Ente | Descrizione | Conservazione |
|---|---|---|---|---|
| Realizzazione di un centro polivalente denominato “Laboratorio di città”, Misterbianco | Giuseppe Giusto, Antonella Maggini, Domenico Pagnano | Archivio studio professionale Mimesi62 Architetti Associati | Elaborati grafici e fotografie |
Allegati
Criteri
| 4. L’edificio o l’opera di architettura riveste un ruolo significativo nell’ambito dell’evoluzione del tipo edilizio di pertinenza, ne offre un’interpretazione progressiva o sperimenta innovazioni di carattere distributivo e funzionale. | |
| 7. L’edificio o l’opera di architettura si segnala per il particolare valore qualitativo all’interno del contesto urbano in cui è realizzata. |
Sitografia ed altri contenuti online
| Titolo | Url |
|---|---|
| Mimesi62 | Visualizza |
| Archilovers | Visualizza |
| Adculture | Visualizza |
| Archello | Visualizza |
Crediti Scheda
Enti di riferimento: Direzione generale creatività contemporaneaTitolare della ricerca: Università degli studi di Catania
Responsabile scientifico: Paola Barbera
Scheda redatta da Maria Rosaria Vitale (Università degli studi di Catania)
creata il 14/02/2024
ultima modifica il 22/01/2025







