CASA BRIGUGLIO
Scheda Opera
- Comune: Nizza di Sicilia
- Denominazione: CASA BRIGUGLIO
- Indirizzo: Via Guglielmo Pepe N. 23
- Data: 2012 - 2014
- Tipologia: Abitazioni unifamiliari
- Autori principali: Architetti Associati Moduloquattro , Fabrizio Ciappina, Giuseppe Fugazzotto, Gaetano Scarcella
Descrizione
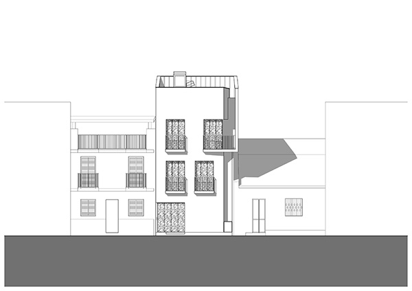
L’edificio sorge a Nizza di Sicilia un piccolo centro della riviera ionica messinese ed è ubicato pressappoco al centro di uno stretto vicolo (largo poco più di m 2,50) trasversale rispetto al litorale, dal quale dista circa 50 metri, con orientamento a levante. L’edificio si inserisce in un comparto occupato precedentemente da case per pescatori di modesta dimensione, oggi trasformate in abitazioni, in gran parte unifamiliari, che vanno da una a tre elevazioni.
Le richieste della committenza, una giovane famiglia composta da quattro persone, comprendevano la realizzazione di un alloggio unifamiliare, da utilizzare come residenza estiva, e il miglioramento degli standard abitativi, dei requisiti di sicurezza e delle prestazioni energetiche, offerti dall’edificio preesistente - una costruzione a due piani realizzata nei primi anni del ‘900 - nonché il suo possibile ampliamento, con l’obiettivo finale di ricavare dieci posti letto. Per ottemperare a queste richieste il gruppo di progettisti si è avvalso del cosiddetto “Piano Casa” che, a fronte della demolizione dell’edificio esistente, consentiva la sua ricostruzione con un incremento della volumetria pari al 25%. Trattandosi di un fabbricato realizzato all’interno di un lotto intercluso, delimitato per tre lati da altri fabbricati, l’aumento di cubatura consentito, circa 80 mc, non poteva che configurarsi in altezza, condizionando così lo sviluppo verticale della casa che ha finito per raggiungere gli 11,50 metri dalla quota stradale, escluso il torrino scala e il locale sottotetto, che si innalza di altri 2 metri dal livello del terrazzo di copertura.
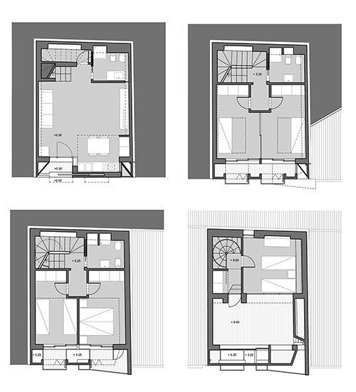
L’ingresso all’abitazione, sollevato di 30 cm dall’esterno, avviene tramite una piccola loggia, che funge da elemento di mediazione tra la strada e l’interno. Il piano terra presenta un unico ambiente di circa 30 mq, destinato al pranzo e al soggiorno in cui, lungo la parete confinante con l’esterno, è stata ricavata una piccola zona cottura, mentre, sul lato opposto è presente un bagno e la scala in cemento armato, rivestita in pietra di Modica che si sviluppa per i due livelli successivi. Al primo piano la scala sbarca direttamente sul disimpegno da cui si accede a una grande camera da letto di circa 22,00 mq e a un secondo bagno posto in corrispondenza di quello sottostante.
Al secondo piano il disimpegno consente l’accesso ad altre due camere e a un terzo bagno. In questo caso l’altezza libera tra pavimento e solaio non è costante: la parte all’interno delle camere che va dalla parete esterna fino alla profondità di 2,70 m presenta un’altezza libera di 2,95 m mentre la restante parte, che corrisponde alla zona armadi, al disimpegno e al bagno, ha un’altezza di 2,45 m. La differenza nella quota d’imposta dei due solai ha consentito di ricavare nel sottotetto un piccolo vano pluriuso riuscendo a contenere al massimo l’altezza complessiva del manufatto al colmo.
Una scala a chiocciola, posta in continuità con quella sottostante in c.a., realizzata in lamiera di acciaio pressopiegata e successivamente resinata, conduce al vano che disimpegna un piccolo ambiente di 10,50 mq posto nel sottotetto. Il disimpegno presenta in copertura una bucatura rettangolare in cui è alloggiato il volume parallelepipedo in vetro estruso verso l’esterno che assolve alla funzione di camino di ventilazione che consente, contestualmente, l’accesso al terrazzo di copertura posto circa 50 cm più in alto del piano di sbarco della scala.
Info
- Progetto: 2012 - 2012
- Esecuzione: 2013 - 2014
- Committente: Famiglia Briguglio
- Proprietà: Proprietà privata
- Destinazione originaria: Residenziale
- Destinazione attuale: Residenziale
Autori
- Strutture: calcestruzzo armato; mattoni forati
- Materiale di facciata: tamponamento monostrato con finitura in intonaco bianco
- Coperture: copertura a falda in pannelli di coibentato grecato di colore bianco
- Serramenti: serramenti esterni in alluminio a taglio termico con doppio vetrocamera; parapetti in ferro
- Stato Strutture: Ottimo
- Stato Materiale di facciata: Ottimo
- Stato Coperture: Ottimo
- Stato Serramenti: Ottimo
- Vincolo: Non Vincolata
- Provvedimenti di tutela: Nessuna opzione
- Data Provvedimento:
- Riferimento Normativo:
- Altri Provvedimenti:
- Foglio Catastale: 8
- Particella: 529
Note
-
Allegati
Criteri
| 5. L’edificio o l’opera di architettura introduce e sperimenta significative innovazioni nell’uso dei materiali o nell’applicazione delle tecnologie costruttive. | |
| 7. L’edificio o l’opera di architettura si segnala per il particolare valore qualitativo all’interno del contesto urbano in cui è realizzata. |
Sitografia ed altri contenuti online
| Titolo | Url |
|---|---|
| Archilovers | Visualizza |
| MODULOQUATTRO ARCHITETTI ASSOCIATI | Visualizza |
Crediti Scheda
Enti di riferimento: Direzione generale creatività contemporaneaTitolare della ricerca: Università degli studi di Catania
Responsabile scientifico: Paola Barbera
Scheda redatta da Adriana Arena (Università degli studi di Messina)
creata il 20/02/2024
ultima modifica il 05/02/2025






