EDIFICIO INDUSTRIALE PER IMBOTTIGLIAMENTO
Scheda Opera
- Comune: Trapani
- Località: Fontanasalsa
- Denominazione: EDIFICIO INDUSTRIALE PER IMBOTTIGLIAMENTO
- Indirizzo: Via Cusenza n. 78
- Data: 2000 - 2005
- Tipologia: Edifici per attività produttive
- Autori principali: Rosario Cusenza, Maria Salvo
Descrizione
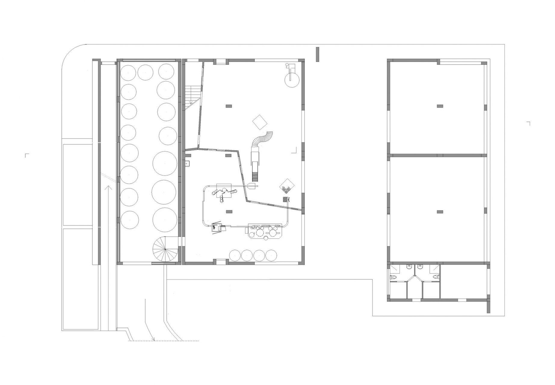
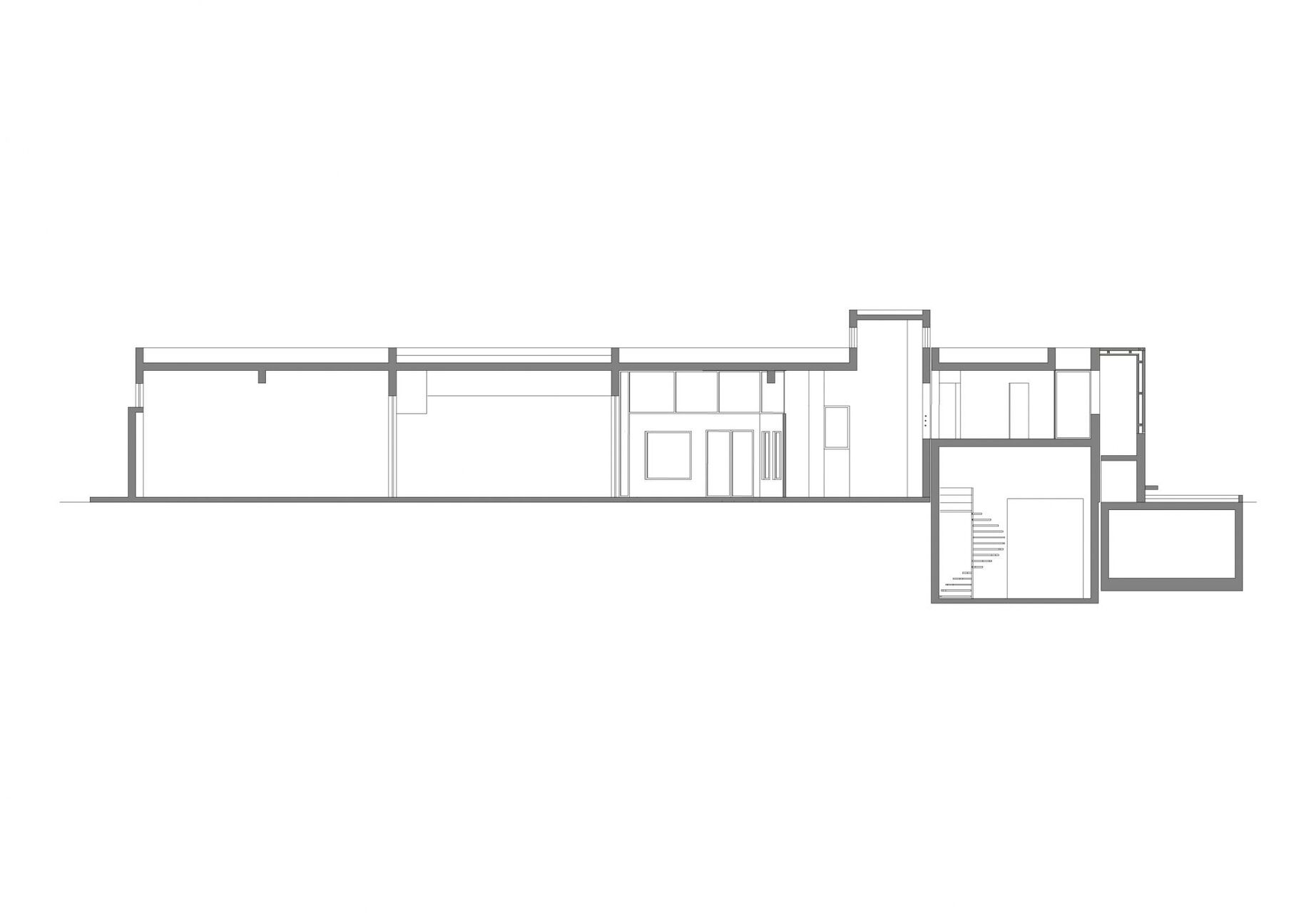
L’edificio è ubicato nel territorio agreste a meridione di Trapani, in prossimità della frazione di Fontanasalsa, oggi facente parte del comune di Misiliscemi. Questa architettura nasce dall’esigenza dell’azienda committente di ospitare i moderni macchinari per l’imbottigliamento e l’etichettatura dell’olio d’oliva prodotto nei propri poderi circostanti. Quasi prospiciente un baglio agricolo del quale rappresenta l’ideale continuazione, lo stabilimento si compone di due corpi di fabbrica distinti e separati da uno spazio trasversale parzialmente coperto ma figurativamente uniti da due architravi che coprono i due accessi veicolari contrapposti. I volumi, semplici e misurati, sono disegnati dai progettisti con sintetica eleganza e si elevano su un impianto planimetrico impostato su una griglia di 5,00 x 5,50 m. L’edificio è composto da due elevazioni fuori terra con alcuni vani interrati e seminterrati, quest'ultimi accolgono i silos. Nel corpo maggiore, al piano superiore, accessibile a mezzo di una rampa schermata e coperta da un sistema di brise-soleil in legno di abete, vengono ospitati gli uffici e i laboratori di analisi. Gli esterni, rivestiti in intonaco tradizionale “Li Vigni” di colore bianco, sono caratterizzati da rientranze, aggetti, pensiline, setti e nicchie che definiscono la stereometria della composizione volumetrica e che determinano il disegno delle ombre nei prospetti. Le lunghe pensiline accentuano il carattere orizzontale dell'edificio che ricorda, nel linguaggio ma anche nei grafici progettuali, alcuni edifici realizzati dai maestri portoghesi dell'architettura contemporanea.
Info
- Progetto: 2000 - 2001
- Esecuzione: 2002 - 2005
- Committente: Azienda Agricola Fontanasalsa, Maria Caterina Burgarella
- Proprietà: Proprietà privata
Autori
| Nome | Cognome | Ruolo | Fase Progetto | Archivio Architetti | Url Profilo | Autore Principale |
|---|---|---|---|---|---|---|
| Rosario | Cusenza | Progetto architettonico | Progetto | Visualizza Profilo | https://www.cusenzasalvostudio.it/it/rosario-cusenza-maria-salvo/ | SI |
| Rosario | Cusenza | Direzione lavori | Esecuzione | Visualizza Profilo | https://www.cusenzasalvostudio.it/it/rosario-cusenza-maria-salvo/ | NO |
| Maria | Salvo | Progetto architettonico | Progetto | Visualizza Profilo | https://www.cusenzasalvostudio.it/it/rosario-cusenza-maria-salvo/ | SI |
- Strutture: Calcestruzzo di cemento armato
- Materiale di facciata: Intonaco
- Coperture: Copertura piana
- Serramenti: Infissi in alluminio preverniciato a taglio termico
- Stato Strutture: Ottimo
- Stato Materiale di facciata: Buono
- Stato Coperture: Ottimo
- Stato Serramenti: Buono
- Vincolo: Non Vincolata
- Provvedimenti di tutela: Nessuna opzione
- Data Provvedimento:
- Riferimento Normativo:
- Altri Provvedimenti:
- Foglio Catastale: 31
- Particella: 88
Note
L'edificio ricade nel recente Comune di Misiliscemi non inserito nel data-base. Il foglio e la particella catastale fanno riferimento ad esso.
Bibliografia
| Autore | Anno | Titolo | Edizione | Luogo Edizione | Pagina | Specifica |
|---|---|---|---|---|---|---|
| Oddo Maurizio | 2006 | Edificio industriale a Fontanasalsa di Cusenza Salvo | in "d'Architettura", n. 31 | Milano | 64-69 | Si |
| Oddo Maurizio | 2007 | Architettura contemporanea in Sicilia | Corrao Editore | Trapani | 592 | No |
| Oddo Maurizio | 2008 | Studio Cusenza+Salvo. Opere e progetti | Skira | Milano | 72-81 | No |
| Zevi Luca (a cura di) | 2012 | Le quattro stagioni. Architetture del Made in Italy da Adriano Olivetti alla Green Economy | Electa | Milano | 170 | No |
Fonti Archivistiche
| Titolo | Autore | Ente | Descrizione | Conservazione |
|---|---|---|---|---|
| Edificio industriale per imbottigliamento | Rosario Cusenza, Maria Salvo | Archivio studio professionale Cusenza + Salvo | Elaborati grafici |
Allegati
Criteri
| 1. L’edificio o l’opera di architettura è citata in almeno tre studi storico-sistematici sull’architettura contemporanea di livello nazionale e/o internazionale. | |
| 4. L’edificio o l’opera di architettura riveste un ruolo significativo nell’ambito dell’evoluzione del tipo edilizio di pertinenza, ne offre un’interpretazione progressiva o sperimenta innovazioni di carattere distributivo e funzionale. | |
| 7. L’edificio o l’opera di architettura si segnala per il particolare valore qualitativo all’interno del contesto urbano in cui è realizzata. |
Sitografia ed altri contenuti online
| Titolo | Url |
|---|---|
| Cusenza + Salvo | Visualizza |
Crediti Scheda
Enti di riferimento: Direzione generale creatività contemporaneaTitolare della ricerca: Università degli studi di Catania
Responsabile scientifico: Paola Barbera
Scheda redatta da Francesco Maggio (Università degli studi di Palermo)
creata il 22/02/2024
ultima modifica il 05/02/2025











