LE QUATTRO PIAZZETTE. ARREDO URBANO DEL CORSO VI APRILE
Scheda Opera
- Comune: Alcamo
- Denominazione: LE QUATTRO PIAZZETTE. ARREDO URBANO DEL CORSO VI APRILE
- Indirizzo: Corso VI Aprile
- Data: 1997 - 1999
- Tipologia: Spazi pubblici
- Autori principali: Anna Maria Fundarò
Descrizione
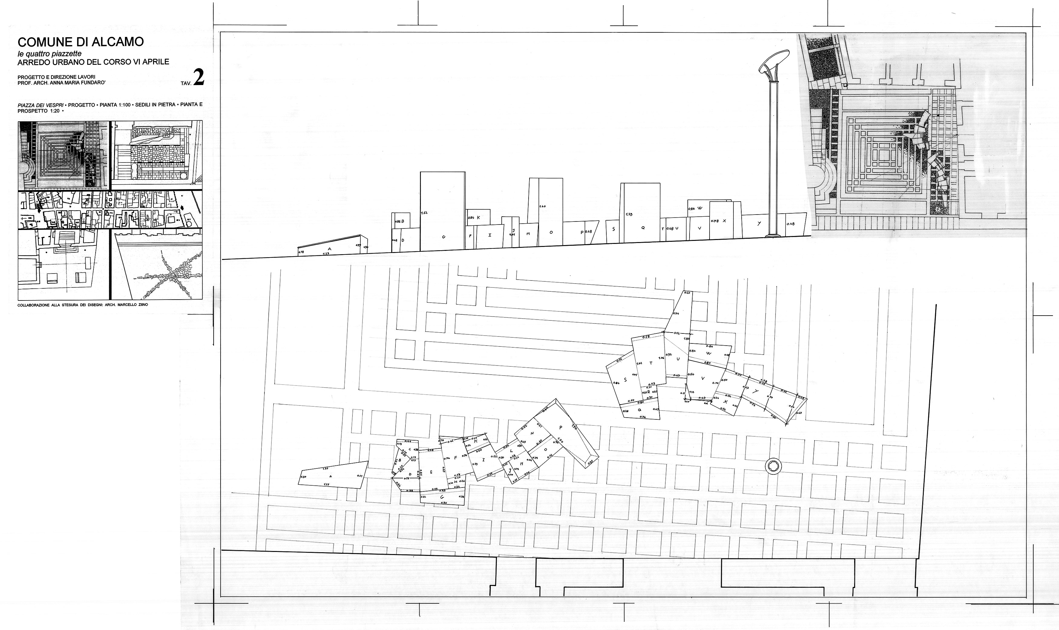
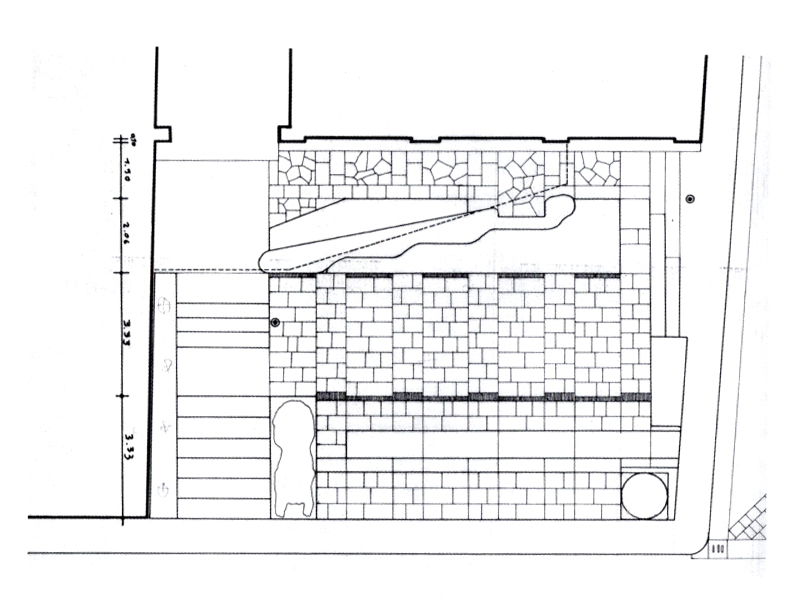
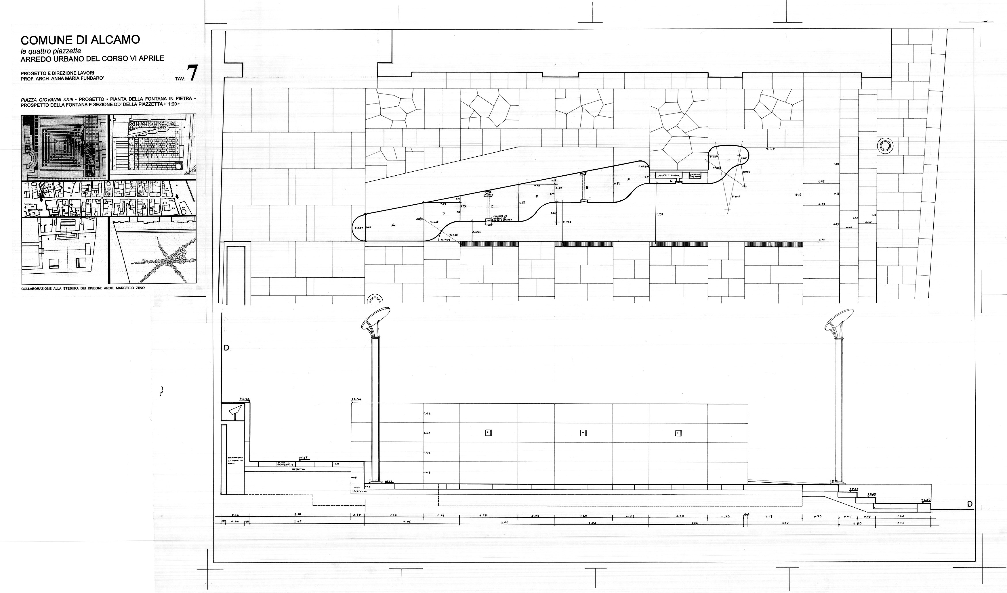
Anna Maria Fundarò, docente di Disegno Industriale presso la Facoltà di Architettura di Palermo, nonché allieva di Gino Levi-Montalcini e Vittorio Gregotti, all’inizio del 1997 è incaricata dal Comune di Alcamo, sua città natale, di progettare il recupero di alcuni spazi nel centro storico della cittadina. L’intervento prevedeva inizialmente la riconfigurazione di quattro piazze (poi divenute tre) ubicate lungo Corso VI Aprile. Procedendo da ovest verso est, il primo e più esteso ambito di progetto è quello di Piazza IV Novembre, uno slargo su cui si affaccia la chiesa madre di Alcamo, dedicata a Santa Maria Assunta. La particolare forma pseudo-trapezoidale dello spazio induce la progettista a trattare in modi diversi la pavimentazione. Nell’area antistante la chiesa viene creato un grande sagrato in lastre di marmo irregolari, sul quale, usando a contrasto una pietra di colore rosso , viene realizzata una grande stella irregolare, il cui centro è dato dall’intersezione dell'asse della chiesa con quello longitudinale della piazza; il settore rimanente della pavimentazione, più a est, è realizzato con lastre di forma regolare, intervallata con listature scure perpendicolari all’asse suddetto, materializzato attraverso l'utilizzo della medesima pietra rossa usata per la stella. Sul margine verso la strada sono posizionate delle sedute in marmo levigato a pianta trapezoidale che incorporano colonne su cui sono installati i corpi illuminanti. Nella parte più orientale dello spazio urbano è posto un grande totem sdoppiato, realizzato in rame e issato su un piccolo basamento lapideo. Il secondo ambito di progetto, in sostanziale continuità con Piazza IV Novembre, interessa Largo del Tonale (adesso Largo Francesco Ricceri), in cui le vecchie e degradate edicole commerciali sono state rimosse e sostituite da una nuova teca espositiva in acciaio e vetro (oggi dismessa) posta sul lato di via Fazio ed eretta su un podio lapideo. Una parte corposa dell’intervento riguarda il vuoto urbano di Piazza Giovanni XXIII (altrimenti denominata Piazza Poste) posto a tre isolati di distanza, sul medesimo lato. La progettista, nel riconfigurare l’accesso all’edificio postale, ha creato una terrazza sopraelevata, separata dalla strada attraverso una seduta longitudinale in marmo; a marcare gli estremi di quest’ultima sono due basamenti che reggono altrettante sculture, una delle quali materializza idealmente lo spigolo di un edificio storico preesistente. Una cordonata sul lato est e una rampa a sud, entrambe dirette verso l’accesso all’ufficio postale completano e definisco lo spazio. La rampa è separata da una parete con andamento ondulato in funzione di fontana, completata da una vasca posta al livello del piano di calpestio. Infine, l’unica parte non attuata del progetto riguarda lo slargo più a est, ovvero Piazzetta Vespri, dove erano previste la realizzazione di una rampa d’accesso alla chiesa di San Francesco e la posa in opera di particolari sedute in blocchi lapidei. La documentazione custodita presso l’archivio privato di Anna Maria Fundarò testimonia l’impegno della progettista anche nella direzione dei lavori, oggetto di una perizia di variante e suppletiva nel corso del 1998, poco tempo dopo l’inizio del cantiere. Tutte le opere sono state terminate e collaudate nel 1999.
Info
- Progetto: 1997 - 1997
- Esecuzione: 1998 - 1999
- Tipologia Specifica: Riconfigurazione spaziale e installazione di arredo urbano
- Committente: Comune di Alcamo
- Proprietà: Proprietà pubblica
- Destinazione originaria: piazze e spazi pubblici
- Destinazione attuale: piazze e spazi pubblici
Autori
- Materiale di facciata: Marmo
- Stato Materiale di facciata: Buono
- Vincolo: Non Vincolata
- Provvedimenti di tutela:
- Data Provvedimento:
- Riferimento Normativo:
- Altri Provvedimenti:
- Foglio Catastale: 127
- Particella: -
Note
-
Bibliografia
| Autore | Anno | Titolo | Edizione | Luogo Edizione | Pagina | Specifica |
|---|---|---|---|---|---|---|
| Fundarò Anna Maria | 2000 | Le quattro piazzette. Arredo urbano del Corso VI Aprile ad Alcamo | Edizioni Guida | Palermo | Si | |
| Oddo Maurizio | 2007 | Architettura contemporanea in Sicilia | Corrao | Trapani | 415 | No |
Fonti Archivistiche
| Titolo | Autore | Ente | Descrizione | Conservazione |
|---|---|---|---|---|
| Le quattro piazzette. Arredo urbano del Corso VI Aprile ad Alcamo (Segnatura AMF 9.1 Architettura d'interni 60) | Anna Maria Fundarò | Archivio Anna Maria Fundarò | 36 disegni |
Allegati
Criteri
| 6. L’edificio o l’opera di architettura è stata progettata da una figura di rilievo nel panorama dell’architettura nazionale e/o internazionale. | |
| 7. L’edificio o l’opera di architettura si segnala per il particolare valore qualitativo all’interno del contesto urbano in cui è realizzata. |
Sitografia ed altri contenuti online
| Titolo | Url |
|---|---|
| archiviodamiani.it | Visualizza |
Crediti Scheda
Enti di riferimento: Direzione generale creatività contemporaneaTitolare della ricerca: Università degli studi di Catania
Responsabile scientifico: Paola Barbera
Scheda redatta da Salvatore Damiano (Università degli studi di Catania)
creata il 18/04/2024
ultima modifica il 27/01/2025























