VILLA GAUDIO
Scheda Opera
- Comune: Faedis
- Denominazione: VILLA GAUDIO
- Indirizzo: Via Tarcento N. 24
- Data: 1964 - 1966
- Tipologia: Abitazioni unifamiliari
- Autori principali: Carlo Mangani
Descrizione
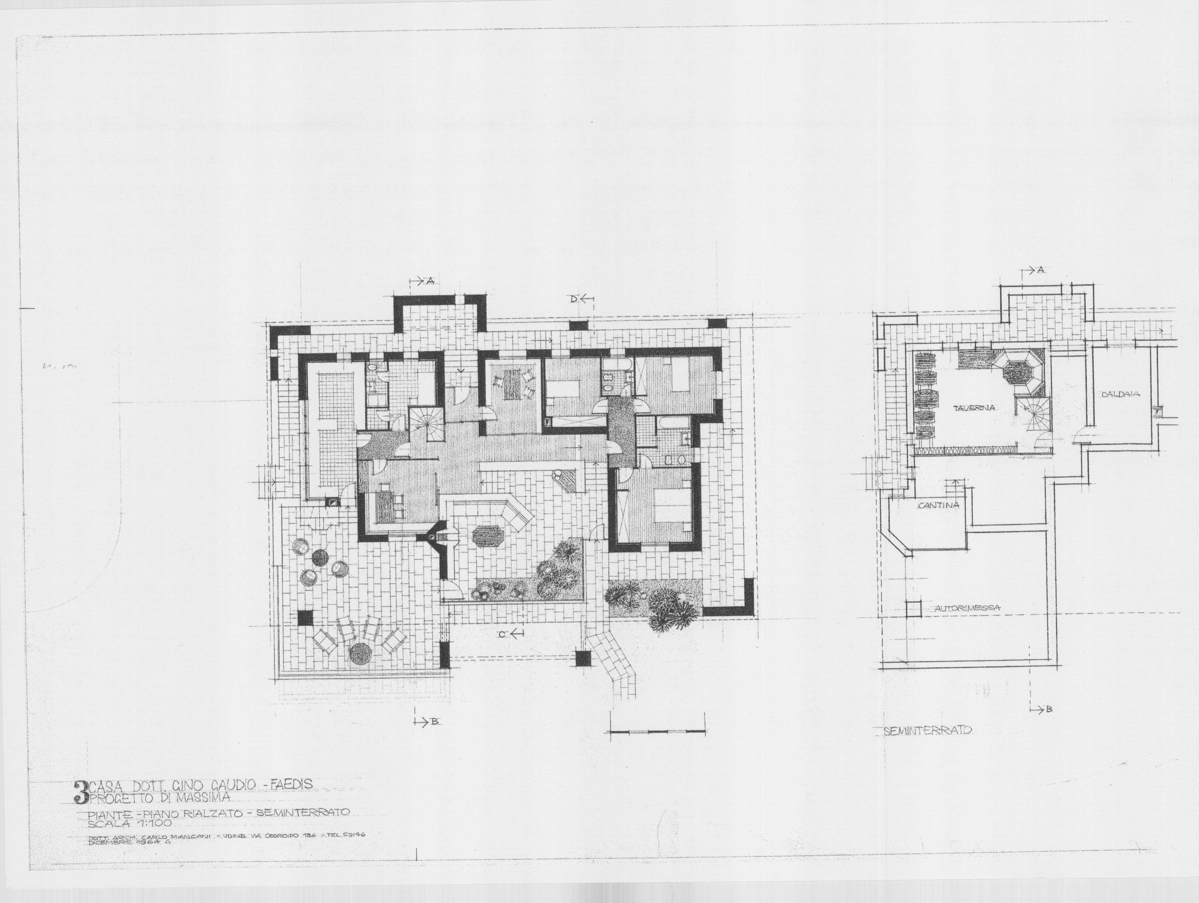
In questa villa, Mangani utilizza per la prima volta il muro cementizio in sasso in un edificio di considerevoli dimensioni. Le larghe superfici scabre in ciottoli legati nel cemento suggeriscono un confronto diretto con l’edilizia storica del paese. La villa si sviluppa prevalentemente su un piano, articolato dal dislivello del soggiorno. Dal piazzale di accesso il fianco dell’edificio si presenta a due piani, con le autorimesse sistemate nel basamento. Un percorso parzialmente in trincea raggiunge, piegando intorno alla casa, l’entrata ricavata sul retro, alla quota più alta, a ridosso del pendio a nord. Varcato l’ingresso, lo spazio principale della casa si coglie in un solo colpo d’occhio. Il ripiano su cui affacciano lo studio e la zona pranzo distribuisce lateralmente da una parte la cucina con i locali di servizio e la taverna, dall’altra la zona notte, più alta di due gradini. Frontalmente, lo stesso ripiano guarda, con un affaccio interno, sull’ambiente del soggiorno, quattro gradini più in basso. Il senso di apertura dello spazio, per chi proviene dallo stretto percorso di “avvicinamento” alla casa, impressiona anche perché lo sguardo può proseguire oltre la grande vetrata sul fondo, in direzione del vasto panorama. L’effetto spaziale dato dalla successione dei diversi piani che dalla zona dell’ingresso scendono al soggiorno e alla terrazza esterna è rafforzato dall’andamento del controsoffitto inclinato, agganciato alle travi in calcestruzzo armato dal caratteristico profilo spezzato. Vista dagli ambienti sottostanti, la copertura a falde produce l’effetto di un grande riparo, simile a una tenda. I percorsi sul perimetro della costruzione, coperti dalla sporgenza del tetto, danno forma a quegli spazi di filtro tra l’abitazione e l’esterno che trovano il loro culmine nella terrazza soprastante al volume dell’autorimessa. Questa terrazza, diretto prolungamento del soggiorno, è collegata anche alla cucina e si sviluppa ben oltre la proiezione della linea di gronda. I muri portanti in sasso proseguono anche all’interno dell’abitazione, accostandosi al legno dei pannelli divisori, degli arredi fissi e dei controsoffitti, in una composizione che pone l’accento sulle qualità visive e sul carattere dei materiali, impiegati senza alcun rivestimento.
Info
- Progetto: 1964 -
- Esecuzione: - 1966
- Committente: Gaudio
- Proprietà: Proprietà privata
- Destinazione originaria: Residenziale
- Destinazione attuale: Residenziale
Autori
| Nome | Cognome | Ruolo | Fase Progetto | Archivio Architetti | Url Profilo | Autore Principale |
|---|---|---|---|---|---|---|
| Carlo | Mangani | Progetto architettonico | Progetto | Visualizza Profilo | https://siusa-archivi.cultura.gov.it/cgi-bin/siusa/pagina.pl?TipoPag=prodpersona&Chiave=52839 | SI |
- Strutture: Cemento armato
- Materiale di facciata: Cemento e sasso a vista
- Coperture: Tegole
- Serramenti: Legno
- Stato Strutture: Ottimo
- Stato Materiale di facciata: Ottimo
- Stato Coperture: Ottimo
- Stato Serramenti: Discreto
- Vincolo: Non Vincolata
- Provvedimenti di tutela:
- Data Provvedimento:
- Riferimento Normativo:
- Altri Provvedimenti:
- Foglio Catastale: -
- Particella: -
Note
-
Bibliografia
| Autore | Anno | Titolo | Edizione | Luogo Edizione | Pagina | Specifica |
|---|---|---|---|---|---|---|
| Marco Pozzetto | 1996 | Guida all’architettura del Novecento di Udine e provincia | Electa | Milano | 90 | No |
| Massimo Bortolotti, Marco Stefani | 2015 | Modernità nella tradizione. La villa Gaudio a Faedis di Carlo Mangani | Vistacasa | 68-73 | Si |
Fonti Archivistiche
| Titolo | Autore | Ente | Descrizione | Conservazione |
|---|---|---|---|---|
| Archivio Carlo Mangani | Carlo Mangani | Studio Mangani, Udine |
Allegati
Criteri
| 4. L’edificio o l’opera di architettura riveste un ruolo significativo nell’ambito dell’evoluzione del tipo edilizio di pertinenza, ne offre un’interpretazione progressiva o sperimenta innovazioni di carattere distributivo e funzionale. | |
| 5. L’edificio o l’opera di architettura introduce e sperimenta significative innovazioni nell’uso dei materiali o nell’applicazione delle tecnologie costruttive. | |
| 7. L’edificio o l’opera di architettura si segnala per il particolare valore qualitativo all’interno del contesto urbano in cui è realizzata. |
Sitografia ed altri contenuti online
| Titolo | Url |
|---|---|
| Profilo Carlo Mangani - SIUSA | Visualizza |
Crediti Scheda
Enti di riferimento: Direzione generale Creatività ContemporaneaTitolare della ricerca: Dipartimento di Studi Umanistici e del Patrimonio Culturale. Università degli Studi di Udine
Responsabile scientifico: Orietta Lanzarini, Vittorio Foramitti, Matteo Iannello
Scheda redatta da Marco Stefani
creata il 22/04/2024
ultima modifica il 22/01/2025










