STUDIO CELIBERTI
Scheda Opera
- Comune: Udine
- Denominazione: STUDIO CELIBERTI
- Indirizzo: Via Fabio di Maniago N. 15/3
- Data: 2001 - 2002
- Tipologia: Edifici polifunzionali
- Autori principali: Carlo Mangani
Descrizione
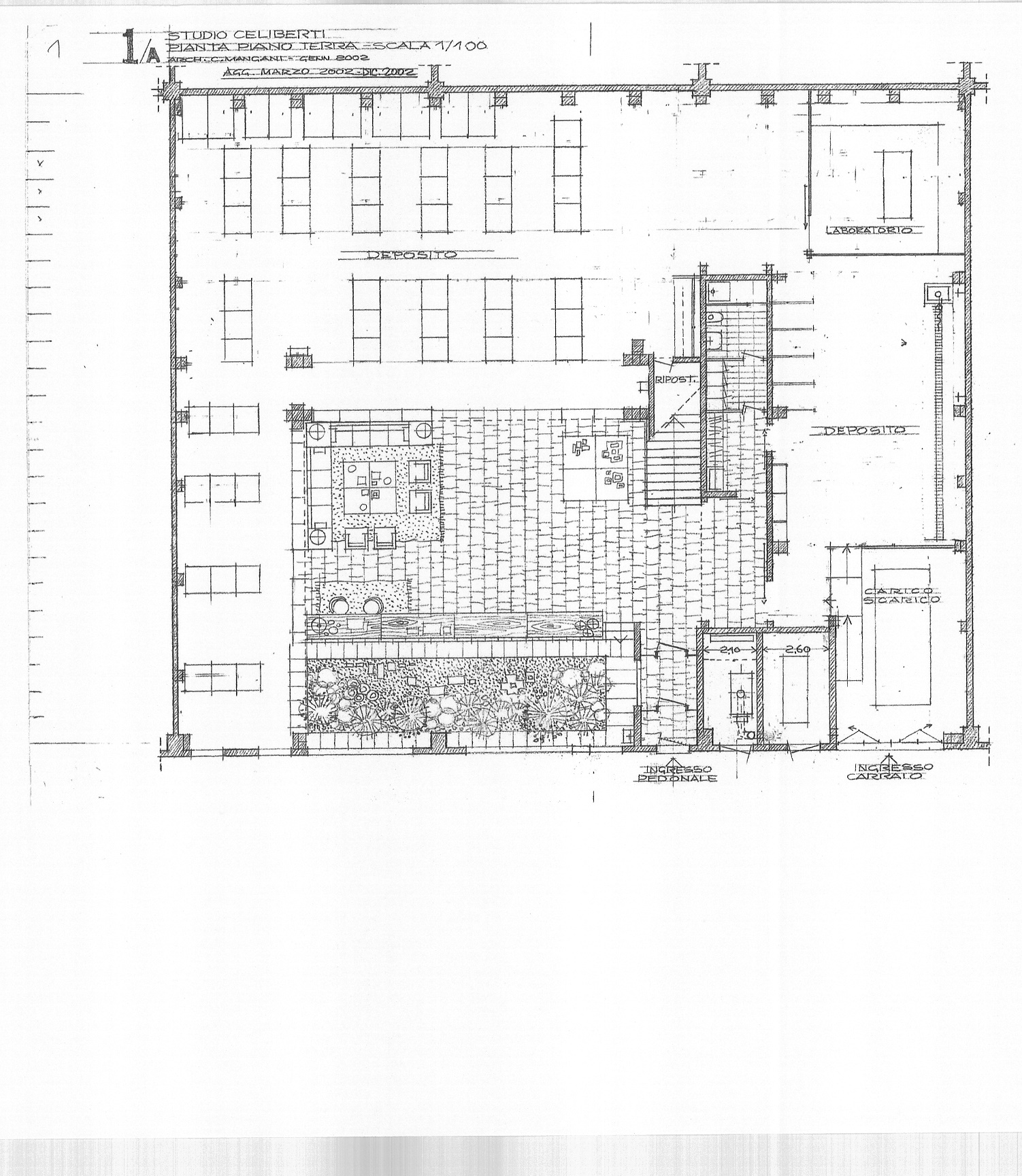
Lo studio dell’artista Giorgio Celiberti occupa un intero settore di un capannone prefabbricato nella prima periferia sud della città: uno spazio libero e indiviso a doppia altezza, illuminato da luce zenitale. L’involucro in cemento armato viene assunto nel progetto come sfondo neutro capace di far risaltare le nuove strutture in legno del soppalco, oltre che le stesse opere dell’artista. Il soppalco abbraccia su tre lati lo spazio centrale a tutta altezza, illuminato in maniera uniforme dalle aperture finestrate in facciata e dai lucernari in copertura. La nuova struttura poggia su lesene cementizie addossate su tre lati alle pareti interne cieche del capannone, e su pilastri liberi in corrispondenza dell’affaccio centrale. Spazi riservati al deposito delle opere e spazi a vocazione espositiva si alternano tra piano principale e soppalco, in un ambiente in gran parte continuo, dove i soli volumi chiusi contengono i bagni, il guardaroba, un laboratorio, la centrale termica e un’autorimessa. Di fronte alle vetrate in facciata, e rialzata di alcuni gradini, una grande vasca interna per le piante crea un filtro visivo con l’esterno. Un interesse a sé riveste la complessa struttura orizzontale in legno lamellare a sostegno del soppalco, con travi principali composte a due o tre correnti collegati da distanziatori in acciaio.
Info
- Progetto: 2001 -
- Esecuzione: - 2002
- Committente: Giorgio Celiberti
- Proprietà: Proprietà privata
- Destinazione originaria: Studio d'artista
- Destinazione attuale: Studio d'artista
Autori
| Nome | Cognome | Ruolo | Fase Progetto | Archivio Architetti | Url Profilo | Autore Principale |
|---|---|---|---|---|---|---|
| Carlo | Mangani | Progetto architettonico | Progetto | Visualizza Profilo | https://siusa-archivi.cultura.gov.it/cgi-bin/siusa/pagina.pl?TipoPag=prodpersona&Chiave=52839 | SI |
- Strutture: Cemento armato e legno lamellare
- Materiale di facciata: Cemento
- Coperture: Piane in copponi prefabbricati
- Serramenti: Metallici
- Stato Strutture: Ottimo
- Stato Materiale di facciata: Ottimo
- Stato Coperture: Ottimo
- Stato Serramenti: Ottimo
- Vincolo: Non Vincolata
- Provvedimenti di tutela:
- Data Provvedimento:
- Riferimento Normativo:
- Altri Provvedimenti:
- Foglio Catastale: -
- Particella: -
| Codice ICCd | Ubicazione | Tipologia | Soggetto | Autore | Materia Tecnica | Stato di Conservazione | Restauri |
|---|---|---|---|---|---|---|---|
| Studio e archivio dell'artista | Dipinto | Pittura astratta | Giorgio Celiberti | Ottimo |
Note
-
Fonti Archivistiche
| Titolo | Autore | Ente | Descrizione | Conservazione |
|---|---|---|---|---|
| Archivio Carlo Mangani | Carlo Mangani | Studio Mangani, Udine |
Allegati
Criteri
| 4. L’edificio o l’opera di architettura riveste un ruolo significativo nell’ambito dell’evoluzione del tipo edilizio di pertinenza, ne offre un’interpretazione progressiva o sperimenta innovazioni di carattere distributivo e funzionale. | |
| 5. L’edificio o l’opera di architettura introduce e sperimenta significative innovazioni nell’uso dei materiali o nell’applicazione delle tecnologie costruttive. |
Sitografia ed altri contenuti online
| Titolo | Url |
|---|---|
| Profilo Carlo Mangani - SIUSA | Visualizza |
Crediti Scheda
Enti di riferimento: Direzione generale Creatività ContemporaneaTitolare della ricerca: Dipartimento di Studi Umanistici e del Patrimonio Culturale. Università degli Studi di Udine
Responsabile scientifico: Orietta Lanzarini, Vittorio Foramitti, Matteo Iannello
Scheda redatta da Marco Stefani
creata il 22/04/2024
ultima modifica il 22/01/2025







