CASA PER VACANZE FCN
Scheda Opera
- Comune: Noto
- Località: Contrada Portelle
- Denominazione: CASA PER VACANZE FCN
- Indirizzo:
- Data: 2009 - 2011
- Tipologia: Abitazioni unifamiliari
- Autori principali: Maria Giuseppina Grasso Cannizzo
Descrizione
Situata tra i mandorli, i carrubbi e gli olivi della campagna netina, in provincia di Siracusa, la Casa per vacanze FCN si integra armoniosamente nel paesaggio; il terreno argilloso, caratterizzato da una forte pendenza, diventa una tela sulla quale l’architetto Maria Giuseppina Grasso Cannizzo realizza un'opera di equilibrio tra architettura e natura, enfatizzando la relazione profonda con il contesto e privilegiando la relazione tra gli interni e la veduta panoramica verso il mare.
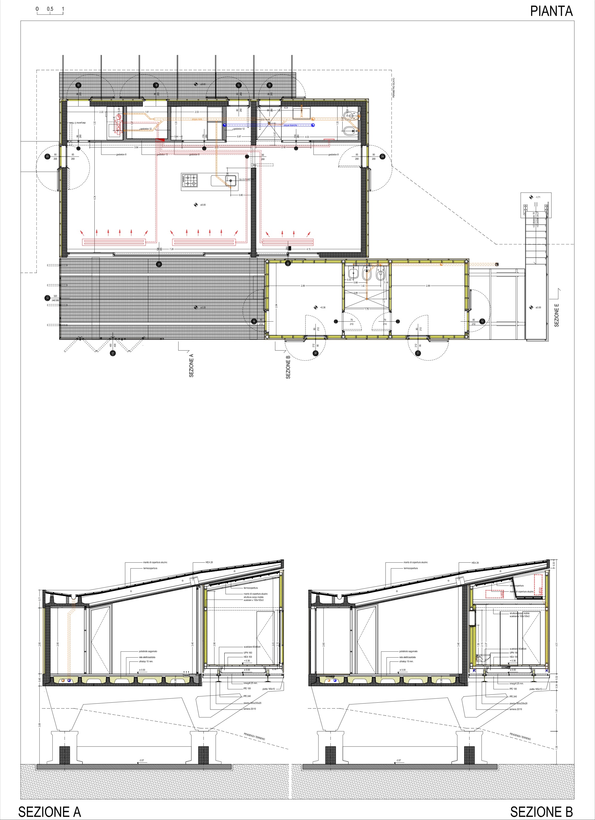
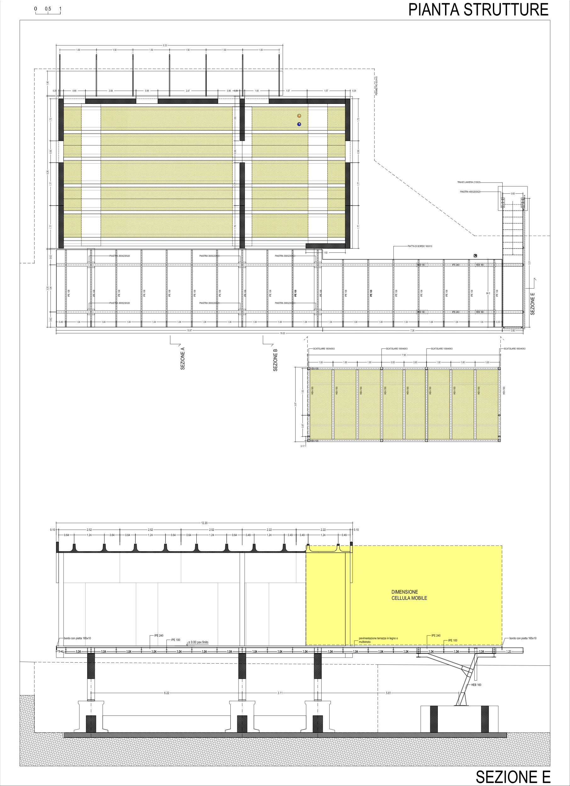
La struttura si distingue dal punto di vista compositivo e concettuale per la scelta di due corpi funzionalmente distinti; un solido volume fisso, realizzato con elementi prefabbricati in calcestruzzo armato che ospita la casa padronale, al quale si affianca un volume destinato alla residenza per gli ospiti, con struttura in ferro, reso dinamico e mobile grazie all’installazione di binari metallici che ne permettono lo spostamento.
Tale soluzione innovativa permette di trasformare lo spazio abitativo secondo configurazioni molteplici e mutevoli che contraggono o espandono la superficie calpestabile e, al contempo, consentono la transizione da una condizione di intimità e protezione, a una di apertura e accoglienza. Se la residenza per gli ospiti, realizzata in acciaio e mobile, incarna un'espressione mutevole e temporanea, il corpo di fabbrica fisso rappresenta la permanenza e si radica nel paesaggio, mediante una soluzione di attacco al suolo con mensole di calcestruzzo che librano il volume al di sopra del pendio, nel contempo ancorandolo saldamente al terreno.
L'impiego di elementi prefabbricati in calcestruzzo armato risponde all'esigenza di risolvere le difficoltà di accesso al sito, riducendo anche i tempi e i costi di costruzione. Le scelte materiche sembrano raccontare, con l'alternarsi di elementi più resistenti e altri più fragili e soggetti allo scorrere del tempo, le possibilità innescate dalle mutazioni. La casa FCN è una testimonianza della ricerca di Grasso Cannizzo su un'architettura capace di mutare la propria configurazione e di includere il tema del movimento come elemento costitutivo della pratica progettuale.
Info
- Progetto: 2009 - 2009
- Esecuzione: 2009 - 2011
- Tipologia Specifica: Casa per vacanze
- Committente: Privato
- Proprietà: Proprietà privata
- Destinazione originaria: Casa per vacanze
- Destinazione attuale: Casa per vacanze
Autori
- Strutture: elementi prefabbricati in calcestruzzo armato per il volume fisso; struttura in ferro per il volume mobile
- Materiale di facciata: parete ventilata rivestita in multistrato di legno (okumè)
- Coperture: tetto inclinato, con struttura metallica, rivestito in aluzinc
- Serramenti: in ferro zincato con vetrocamera; portelloni esterni con oscuranti in multistrato (okumé)
- Stato Strutture: Ottimo
- Stato Materiale di facciata: Ottimo
- Stato Coperture: Ottimo
- Stato Serramenti: Ottimo
- Vincolo: Non Vincolata
- Provvedimenti di tutela: Nessuna opzione
- Data Provvedimento:
- Riferimento Normativo:
- Altri Provvedimenti:
- Foglio Catastale: 309
- Particella: 132
Note
Il progetto ha ottenuto i seguenti riconoscimenti: 2012: Progetto vincitore RIBA Awards/EU ed inserito nella shortlist per lo Stirling Prize. 2013: Progetto segnalato per il Mies van der Rohe Award.
Bibliografia
| Autore | Anno | Titolo | Edizione | Luogo Edizione | Pagina | Specifica |
|---|---|---|---|---|---|---|
| Zancan Roberto | 2011 | Volumi mobili | in "Domus", n. 950 | 52-59 | Si | |
| Marini Sara (a cura di) | 2014 | Loose Ends. Maria Giuseppina Grasso Cannizzo | Lars Müller Publishers | Zürich | No | |
| Pireddu Alberto | 2015 | Maria Giuseppina Grasso Cannizzo. La casa sognata | in "Firenze Architettura", n. 19, (1) | Firenze | 44-51 | Si |
| Nicolin Pierluigi | 2016 | Grasso Cannizzo | in "Lotus", n. 160 | 28-35 | No |
Fonti Archivistiche
| Titolo | Autore | Ente | Descrizione | Conservazione |
|---|---|---|---|---|
| FCN 2009 | Maria Giuseppina Grasso Cannizzo | Archivio privato Maria Giuseppina Grasso Cannizzo | Elaborati grafici e fotografie |
Allegati
Criteri
| 2. L’edificio o l’opera di architettura è illustrata in almeno due riviste di architettura di livello nazionale e/o internazionale. | |
| 3. L’edificio o l’opera di architettura ha una riconosciuta importanza nel panorama dell’architettura nazionale, degli anni nei quali è stata costruita, anche in relazione ai contemporanei sviluppi sia del dibattito, sia della ricerca architettonica nazionale e internazionale, | |
| 4. L’edificio o l’opera di architettura riveste un ruolo significativo nell’ambito dell’evoluzione del tipo edilizio di pertinenza, ne offre un’interpretazione progressiva o sperimenta innovazioni di carattere distributivo e funzionale. | |
| 6. L’edificio o l’opera di architettura è stata progettata da una figura di rilievo nel panorama dell’architettura nazionale e/o internazionale. | |
| 7. L’edificio o l’opera di architettura si segnala per il particolare valore qualitativo all’interno del contesto urbano in cui è realizzata. |
Sitografia ed altri contenuti online
| Titolo | Url |
|---|---|
| Accademia Nazionale di San Luca - Maria Giuseppina Grasso Cannizzo | Visualizza |
| Domus | Visualizza |
| Divisare | Visualizza |
| ArchDaily | Visualizza |
Crediti Scheda
Enti di riferimento: Direzione generale creatività contemporaneaTitolare della ricerca: Università degli studi di Catania
Responsabile scientifico: Paola Barbera
Scheda redatta da Danilo Randazzo (Università degli studi di Catania)
creata il 03/06/2024
ultima modifica il 22/01/2025




















