VILLA MOMO
Scheda Opera
- Comune: Courmayeur
- Località: Villair
- Denominazione: VILLA MOMO
- Indirizzo: Via della Scuola
- Data: 1969 - 1973
- Tipologia: Abitazioni unifamiliari
- Autori principali: Giuseppe Varaldo
Descrizione
Il progetto per la piccola villa al Villair di Courmayeur è stato elaborato dall’architetto Varaldo con la collaborazione dell’architetto Momo, proprietario dell’immobile.
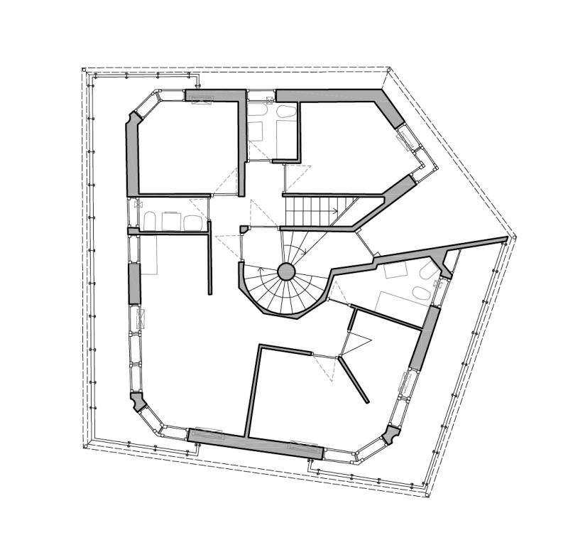
Interessante l’articolazione planimetrica a pentagono irregolare che mette in tensione lo spazio esterno e interno con al centro il blocco scale elicoidale ed il camino principale. Anche la conformazione del tetto accentua questa composizione facendone convergere al centro le falde.
Il taglio in corrispondenza dell’ingresso crea una sorta di caverna artificiale che attira verso l’interno.
Dal punto di vista costruttivo, il progetto interpreta in modo originale i classici temi dell’architettura tradizionale alpina, prima fra tutti il rapporto tra la massività della pietra a vista, qui ricreata attraverso delle murature in cemento armato, e la leggerezza delle strutture lignee di tamponamento e dei loggiati della parte superiore.
L’architetto Momo ha curato nel 2003 il progetto per la trasformazione delle autorimesse del piano terra in appartamenti.
Info
- Progetto: 1969 -
- Esecuzione: - 1973
- Tipologia Specifica: Villa
- Committente: privato
- Proprietà: Proprietà privata
- Destinazione originaria: Residenza
- Destinazione attuale: Residenza
Autori
- Strutture: Cemento armato
- Materiale di facciata: Cemento armato e legno
- Coperture: Lose
- Serramenti: Legno
- Stato Strutture: Buono
- Stato Materiale di facciata: Buono
- Stato Coperture: Buono
- Stato Serramenti: Buono
- Vincolo: Non Vincolata
- Provvedimenti di tutela: Nessuna opzione
- Data Provvedimento:
- Riferimento Normativo: D.Lgs. 42/2004
- Altri Provvedimenti:
- Foglio Catastale: 42
- Particella: 398
Note
Area sottoposta a vincolo paesaggistico ai sensi del D.Lgs. 42/2004
Bibliografia
| Autore | Anno | Titolo | Edizione | Luogo Edizione | Pagina | Specifica |
|---|---|---|---|---|---|---|
| Varaldo Giuseppe | 1992 | Progetto e Cronache n. 6 | No | |||
| Bolzoni Luciano | 2001 | Architettura moderna nelle Alpi italiane dagli anni Sessanta alla fine del XX secolo | Priuli & Verlucca | Scarmagno (TO) | 130-137 | No |
| Nebbia Giuseppe | 2002 | Architettura Moderna in Valle d’Aosta. Il secondo Novecento | Musumeci Editore | Quart (AO) | 162 | No |
Allegati
Criteri
| 4. L’edificio o l’opera di architettura riveste un ruolo significativo nell’ambito dell’evoluzione del tipo edilizio di pertinenza, ne offre un’interpretazione progressiva o sperimenta innovazioni di carattere distributivo e funzionale. | |
| 6. L’edificio o l’opera di architettura è stata progettata da una figura di rilievo nel panorama dell’architettura nazionale e/o internazionale. | |
| 7. L’edificio o l’opera di architettura si segnala per il particolare valore qualitativo all’interno del contesto urbano in cui è realizzata. |
Crediti Scheda
Enti di riferimento: DGAAP - Regione Autonoma Valle D'AostaTitolare della ricerca: Fondazione Courmayeur Mont Blanc
Responsabile scientifico: Roberto Dini, Giuseppe Nebbia
Scheda redatta da Roberto Dini
creata il 31/12/2014
ultima modifica il 21/01/2025
Revisori:
Mezzino Davide 2022









