RESIDENZA PLURIFAMILIARE “DIGA ROSSA”
Scheda Opera
- Comune: Genova
- Località: Begato
- Denominazione: RESIDENZA PLURIFAMILIARE “DIGA ROSSA”
- Indirizzo: Via Maritano N. 80-90-92-95
- Data: 1984 - 1990
- Tipologia: Complessi residenziali
- Autori principali: Piero Gambacciani
Descrizione
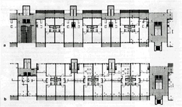
La Diga è un complesso edilizio di grandi dimensioni: due alti corpi edilizi separati tra loro da una stretta fessura e penetrati dalla viabilità principale. La distribuzione interna è garantita da percorsi verticali e da corridoi orizzontali che conducono agli spazi e a dierse tipologie di alloggi (simplex con distribuzione a ballatoio, simplex a doppio affaccio serviti da corpi scala e connessi al ballatoio dei piani, duplex con distribuzione su corridoio centrale). Il progetto originario prevedeva 2 percorsi pedonali interni dove dovevano trovare spazio servizi commerciali e varie attività collettive (demoliti nel 2001 per problemi di sicurezza e gestione e per la mancata realizzazione di attività commerciali). Dal punto di vista costruttivo le dighe rappresentano forse l'unico episodio di industrializzazione edilizia avviato a Genova, con l’applicazione del metodo a “banches et table” che consiste nella realizzazione in opera e con casseforme reimpiegabili di pannelli in calcestruzzo verticali (setti/banches) e orizzontali (solai/tables). Il sistema è completato con il getto dei parapetti e delle velette, l’inserimento degli impianti, il montaggio dei serramenti, il montaggio dei divisori interni e la posa in opera delle finiture.
Info
- Progetto: 1984 -
- Esecuzione: - 1990
- Committente: Amministrazione Comunale di Genova (regime finanziario PEEP); Istituto I.A.C.P della provincia di Genova
- Proprietà: Nessuna opzione
- Destinazione originaria: residenza plurifamiliare
- Destinazione attuale: residenza plurifamiliare
Autori
- Vincolo: Non Vincolata
- Provvedimenti di tutela: Nessuna opzione
- Data Provvedimento:
- Riferimento Normativo:
- Altri Provvedimenti:
- Foglio Catastale: -
- Particella: -
Note
Rilevanza storica; rilevanza in rapporto al tipo edilizio; rilevanza in rapporto a materiali e tecniche costruttive; rilevanza in rapporto al dibattito disciplinare e culturale/ Il grande intervento del Piano di Zona di Begato si inserisce in un’area collinare della Valpolcevera caratterizzata dalla presenza di insediamenti residenziali di piccole dimensioni e aree destinate a coltivazione e vigneti. Marcano le linee di cresta le fortificazioni dell'antica cinta difensiva della città. Le Dighe vengono posizionate come uno sbarramento fisico all’interno della piccola valle: gli edifici la attraversano dall’uno all’altro versante ostruendola completamente. I grandi volumi degli edifici, visibili anche a notevole distanza, ridisegnano il paesaggio esistente con un forte impatto ambientale. Il grande intervento ha riguardato anche le infrastrutture: la viabilità principale (via Maritano) è concepita trapassante gli edifici più alti tramite varchi a portale ed è stata realizzata contestualmente all'edificazione dei singoli lotti; essa collega la preesistente rete viaria della Val Polcevera con la strada che, all’altezza del nucleo storico dell'abitato di Begato, collega il Settore 9 con gli altri settori (1, 2 e 3) del Piano di Zona/ Costituisce elemento di un panorama - NON costituisce punto da cui si gode un panorama/ Le “dighe” risentono di vari problemi costruttivi comuni a molte costruzioni edificate nella seconda metà del Novecento tra cui: il degrado delle strutture in calcestruzzo di cemento armato lasciate a vista; la corrosione degli elementi metallici; l’inefficienza degli impianti (soprattutto gli ascensori sono sottodimensionati rispetto al numero di alloggi da servire e per questo sono spesso fuori servizio). Problemi incrementati dal generale degrado fisico causato da guasti e rotture provocati dagli inquilini.
Bibliografia
| Autore | Anno | Titolo | Edizione | Luogo Edizione | Pagina | Specifica |
|---|---|---|---|---|---|---|
| AA.VV. | 1978 | Genova | Urbanistica n.68-69 | 5-48 | No | |
| AA.VV. | 1980 | Genova-Begato: l'edilizia industrializzata per la grande dimensione insediativa | Casabella n.459, anno XLIV | No | ||
| S.A. | 1984 | La 25 A Genova, 1665 alloggi in p.d.z. 167. Voltri 2, Palmaro 2, Pegli 3, Begato 9, Catalogo Comune di Genova | Genova | No | ||
| Mauro Moricone, Francesco Rosadini | 2004 | Genova 900. L'architettura del Movimento Moderno | Testo&Immagine | Torino | 30 | Si |
| Cristoforetti Gianluca, Ghiara Hilda , Torre Stefano | 2004 | Genova: guida di architettura moderna | Alinea | Firenze | 185 | No |
| Lagomarsino Luigi | 2004 | Cento anni di architetture a Genova: 1890-2004 | De Ferrari & Devega | Genova | 170-171 | No |
| S.A. | 2010 | Progetto Riqualificazione. Le Dighe di Begato sett.9, in Roberto Bobbio (A cura di), Il caso DIGA. Strategie di riqualificazione dell’edilizia sociale a Genova, Collana Digitale, n. 4 | INU edizilia | Roma | No | |
| Bobbio Roberto | 2012 | Il caso “Diga”. Strategie di riqualificazione dell’edilizia sociale a Genova, Collana Digitale, n. 4 | INU Edizioni | Genova | No | |
| Giovanna Franco, Stefano Francesco Musso | 2016 | Architetture in Liguria dopo il 1945 | De Ferrari editore | Genova | 208 | Si |
Allegati
Criteri
| 1. L’edificio o l’opera di architettura è citata in almeno tre studi storico-sistematici sull’architettura contemporanea di livello nazionale e/o internazionale. | |
| 2. L’edificio o l’opera di architettura è illustrata in almeno due riviste di architettura di livello nazionale e/o internazionale. | |
| 6. L’edificio o l’opera di architettura è stata progettata da una figura di rilievo nel panorama dell’architettura nazionale e/o internazionale. | |
| 7. L’edificio o l’opera di architettura si segnala per il particolare valore qualitativo all’interno del contesto urbano in cui è realizzata. |
Crediti Scheda
Enti di riferimento: PaBAAC - Direzione Regionale per la LiguriaTitolare della ricerca: Università degli studi di Genova – Dipartimento di Scienze per l’Architettura
Responsabile scientifico: Stefano Musso, Giovanna Franco
Scheda redatta da Lorenza Comino, Simona Lanzu
creata il 31/12/2009
ultima modifica il 26/01/2023
Revisori:
Mezzino Davide 2022















