Censimento delle architetture italiane dal 1945 ad oggi
CINEMA BUCANEVE
Scheda Opera
- Comune: Primiero San Martino di Castrozza
- Località: San Martino di Castrozza
- Denominazione: CINEMA BUCANEVE
- Indirizzo: Via del Priore
- Data: 1954 - 1954
- Tipologia: Edifici per lo spettacolo
- Autori principali: Angelo Balzan, Roberto Toffol
Descrizione
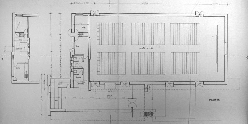
Il Cinema Bucaneve, progettato dall'Arch. Balzan nel 1954 a San Martino di Castrozza, presenta strutture in calcestruzzo armato. I prospetti sono caratterizzati da pietra porfirica e travi in legno a blockbau, mentre le coperture sono ad unica falda in lamiera. In pianta presenta una sala che ospita 352 sedute.
Info
- Progetto: 1954 - 1954
- Esecuzione: 1954 - 1954
- Tipologia Specifica: Cinema
- Committente: privata, Cinzio Strinzioli
- Proprietà: Nessuna opzione
- Destinazione originaria: Cinema
Autori
- Strutture: Setti in calcestruzzo armato
- Materiale di facciata: Pietra porfirica e travi in legno a blockbau
- Coperture: Unica falda in lamiera
- Serramenti: Legno
- Stato Strutture: Buono
- Stato Materiale di facciata: Buono
- Stato Coperture: Mediocre
- Stato Serramenti: Mediocre
- Vincolo: Non Vincolata
- Provvedimenti di tutela: Nessuna opzione
- Data Provvedimento:
- Riferimento Normativo:
- Altri Provvedimenti:
- Foglio Catastale: -
- Particella: -
Note
Chiuso per crollo del tetto in seguito ad un'eccezionale nevicata nel febbraio 2014.
Bibliografia
| Autore | Anno | Titolo | Edizione | Luogo Edizione | Pagina | Specifica |
|---|---|---|---|---|---|---|
| Chiavarelli Nicola, Trentini Matteo | 2019 | Il cinema Bucaneve e altre architetture bene-stanti di Rolando Toffol a San Martino di Castrozza | Moderno n. 3 _Trimestrale di informazione dell'ordine degli architetti della Provincia di Trento | Trento | 71-74 | Si |
Criteri
| 3. L’edificio o l’opera di architettura ha una riconosciuta importanza nel panorama dell’architettura nazionale, degli anni nei quali è stata costruita, anche in relazione ai contemporanei sviluppi sia del dibattito, sia della ricerca architettonica nazionale e internazionale, | |
| 4. L’edificio o l’opera di architettura riveste un ruolo significativo nell’ambito dell’evoluzione del tipo edilizio di pertinenza, ne offre un’interpretazione progressiva o sperimenta innovazioni di carattere distributivo e funzionale. | |
| 5. L’edificio o l’opera di architettura introduce e sperimenta significative innovazioni nell’uso dei materiali o nell’applicazione delle tecnologie costruttive. |
Crediti Scheda
Enti di riferimento: DARCTitolare della ricerca: Università degli studi di Trento Dipartimento di Ingegneria Civile
Responsabile scientifico: Marco Mulazzani
Scheda redatta da
creata il 31/12/2006
ultima modifica il 21/01/2025
Revisori:
Menzietti Giulia 2022






