QUARTIERE INA-CASA RIONE COMMENDA OVEST
Scheda Opera
- Comune: Brindisi
- Denominazione: QUARTIERE INA-CASA RIONE COMMENDA OVEST
- Indirizzo: Viale Palmiro Togliatti; Via Carnia, Via Sabinia, Via Irpinia
- Data: 1958 - 1961
- Tipologia: Edilizia residenziale pubblica
- Autori principali: Carlo Aymonino
Descrizione
Il rione Commenda Ovest è situato all’interno di un più ampio quartiere INA-Casa, che occupa un’area di 66.500 metri quadri.
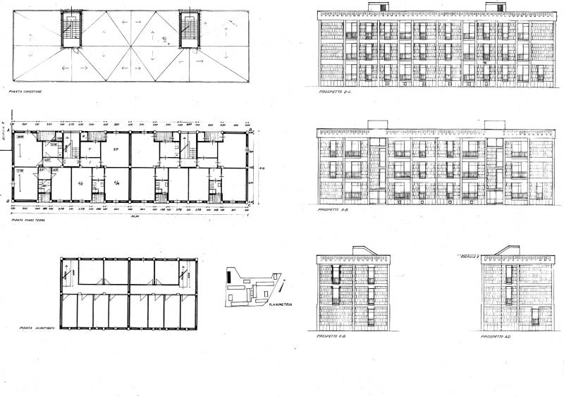
L’impianto si basa sull’idea di mettere in comunicazione i due ampi spazi racchiusi dalle unità abitative attraverso un edificio basso a due piani, che presenta il piano terreno per metà porticato e che costituisce il centro di tutto il complesso. Esso comprende dodici alloggi di cui quelli a piano terra sono di poco rialzati sul terreno e quelli al primo piano sono accessibili da due scale che conducono ad un ballatoio. Tale edificio si congiunge ortogonalmente ai quattro corpi lunghi a quattro piani, che si sviluppano intorno alle due corti, in cui sono presenti attrezzature per la sosta all’aperto e il gioco dei bambini e spazi verdi.
Per evitare la frequente problematica legata all’abbandono e alla scarsa manutenzione di tali spazi, tutti gli elementi soggetti ad un uso diretto sono stati realizzati in muratura, in modo tale da avere attrezzature solide in grado di resistere al tempo e all’uso, e il verde è stato limitato ad una superficie molto ridotta. La pavimentazione è in basolato, i muri e le copertine in pietra e i cigli delle scarpate in massello. Il tutto è regolato da un attenta organizzazione funzionale e figurativa delle diverse aree, con l’obiettivo di incentivare lo sviluppo della vita collettiva e migliorare la qualità architettonica e ambientale.
Lo stesso accade per le piazze del quartiere che costituiscono spazi singolarmente individuati, ma collegati tra loro e protetti rispetto alla strada, delimitati da un muro di cinta in carparo che assume dalla parte interna la funzione di parapetto o di schienale per le sedute in pietra o in cemento. La pavimentazione all’interno del recinto è in conglomerato di cemento e ghiaia.
Particolare attenzione è rivolta ai materiali degli edifici: la struttura portante è realizzata in cemento armato faccia vista, con le travi perimetrali che hanno anche funzione di veletta; i tamponamenti sono in carparo, molto più compatto e meno igroscopico rispetto al tufo; mentre sugli spigoli è utilizzata la pietra calcarea, perché più dura.
Infine il piano delle coperture è realizzato a terrazza in modo tale da risultare coerente alla tradizione locale, ma anche per poter realizzare gli stenditoi.
Info
- Progetto: 1958 -
- Esecuzione: 1960 - 1961
- Committente: INA-Casa
- Proprietà: Proprietà privata
- Destinazione originaria: Edifici residenziali INA-Casa
- Destinazione attuale: Edifici residenziali INA-Casa
Autori
| Nome | Cognome | Ruolo | Fase Progetto | Archivio Architetti | Url Profilo | Autore Principale |
|---|---|---|---|---|---|---|
| Carlo | Aymonino | Progetto architettonico | Progetto | Visualizza Profilo | https://www.iuav.it/ARCHIVIO-P/ARCHIVIO/collezioni/Aymonino--/index.htm | SI |
| Carlo | Chiarini | Progetto architettonico | Progetto | Visualizza Profilo | https://siusa.archivi.beniculturali.it/cgi-bin/pagina.pl?TipoPag=prodpersona&Chiave=31453&RicDimF=2&RicProgetto=architetti | NO |
| Baldo | De Rossi | Progetto architettonico | Progetto | NO | ||
| Marcello | Girelli | Progetto architettonico | Progetto | NO | ||
| Leonardo | Potì | Collaboratore | Progetto | NO |
- Strutture: telaio in c.a.
- Materiale di facciata: cortina muraria in tufo carparo
- Coperture: piana in latero-cemento
- Stato Strutture: Buono
- Stato Materiale di facciata: Cattivo
- Stato Coperture: Buono
- Vincolo: Non Vincolata
- Provvedimenti di tutela: Nessuna opzione
- Data Provvedimento:
- Riferimento Normativo:
- Altri Provvedimenti:
- Foglio Catastale: -
- Particella: -
Note
-
Bibliografia
| Autore | Anno | Titolo | Edizione | Luogo Edizione | Pagina | Specifica |
|---|---|---|---|---|---|---|
| Aymonino Carlo, Lenci Sergio. | 1958 | Inchieste edilizie sulle città italiane: Brindisi | Casabella Continuità n. 222 | Milano | 21-28 | No |
| Bonelli Renato | 1960 | Complesso residenziale Commenda Ovest a Brindisi | L’Architettura cronache e storia n. 53 | Venezia | Si | |
| 1961 | Due nuovi quartieri INA-Casa in Puglia: Unità residenziale nel rione Commenda Ovest a Brindisi (1958-60) | Casabella Continuità n. 249 | Milano | 24-37 | Si | |
| 1961 | Due nuovi quartieri INA-Casa in Puglia. Unità residenziali nel rione Commenda Ovest a Brindisi | Casabella n. 249 | Milano | 24-30 | Si | |
| Priori Giancarlo (a cura di) | 1990 | Carlo Aymonino. Serie di Architettura 27 | Zanichelli | Bologna | 34-35 | Si |
| Priori Giancarlo | 1991 | Carlo Aymonino. Architetture | Nuova Alfa | Bologna | Si | |
| Priori Giancarlo | 1995 | Carlo Chiarini, Architetture (1950-1986) | Kappa | Roma | Si | |
| Colonna Angela | 2002 | Architettura pugliese del primo '900 | d'Architettura n. 17 | Milano | 167-177 | Si |
Criteri
| 1. L’edificio o l’opera di architettura è citata in almeno tre studi storico-sistematici sull’architettura contemporanea di livello nazionale e/o internazionale. | |
| 2. L’edificio o l’opera di architettura è illustrata in almeno due riviste di architettura di livello nazionale e/o internazionale. | |
| 4. L’edificio o l’opera di architettura riveste un ruolo significativo nell’ambito dell’evoluzione del tipo edilizio di pertinenza, ne offre un’interpretazione progressiva o sperimenta innovazioni di carattere distributivo e funzionale. | |
| 6. L’edificio o l’opera di architettura è stata progettata da una figura di rilievo nel panorama dell’architettura nazionale e/o internazionale. |
Sitografia ed altri contenuti online
| Titolo | Url |
|---|---|
| Enciclopedia Treccani - Carlo Aymonino | Visualizza |
Crediti Scheda
Enti di riferimento: PaBAAC - Direzione Regionale per la PugliaTitolare della ricerca: Politecnico di Bari - DICATECh
Responsabile scientifico: Francesco Moschini
Scheda redatta da
creata il 31/12/2011
ultima modifica il 29/03/2024
Revisori:
Battaglia Laura 2022



