VILLA GINESTRI
Scheda Opera
- Comune: Rocca San Casciano
- Denominazione: VILLA GINESTRI
- Indirizzo: Viale Roma
- Data: 1969 - 1971
- Tipologia: Abitazioni unifamiliari
- Autori principali: Franco Albini, Franca Helg
Descrizione
La villa è situata in un’area posta alle spalle del centro abitato, su un terreno caratterizzato dall’accentuata pendenza e dalla presenza di una fitta piantumazione verso nord e da una sostanziale libertà di visuale e un minore dislivello verso sud.
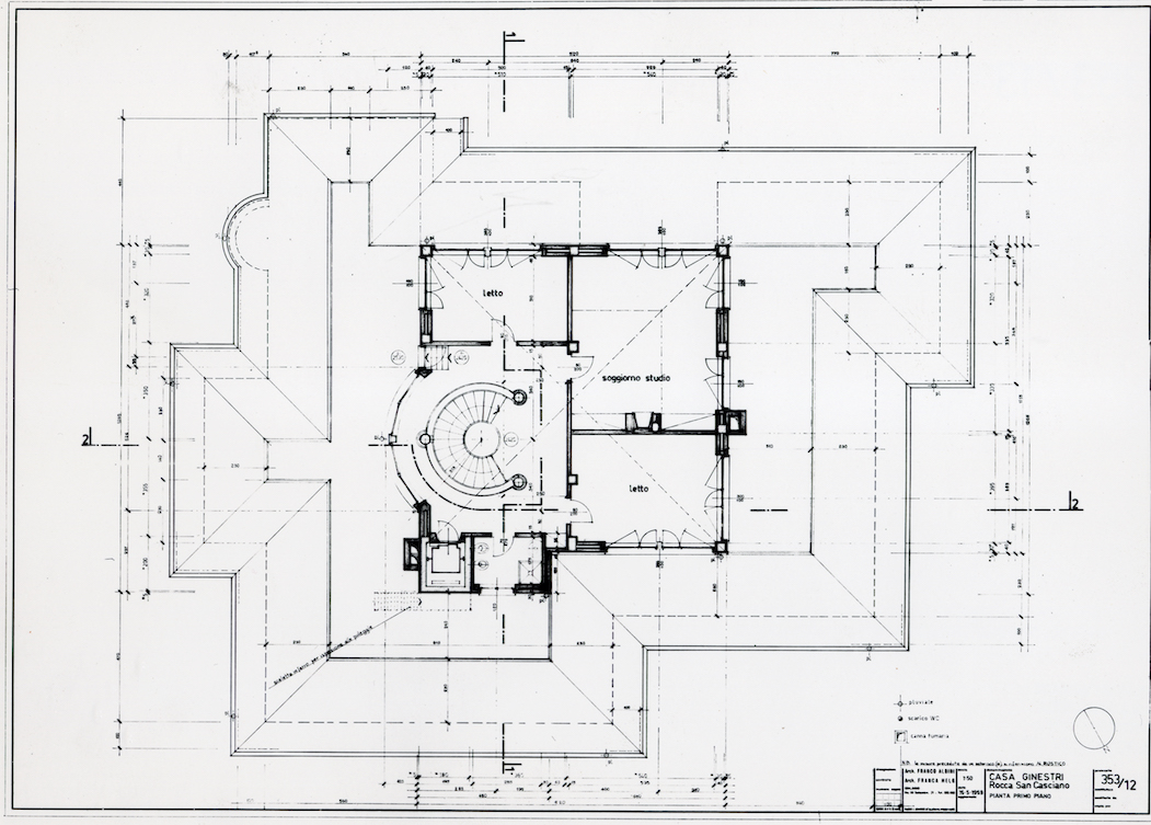
La casa si adatta a questa conformazione inserendosi senza necessità di eccessivi sbancamenti e con un andamento principalmente orizzontale, tipico dell’edilizia locale rurale e di una certa maniera consolidata dall’autore che imposta la pianta, come in altri esempi, su un vano occupato da una grande scala elicoidale su cui s’innestano i vari ambienti tutti ortogonali ma con giaciture sfalsate.
La differenza di quota è occupata al piano verso nord dal garage, mentre il piano superiore si trova allo stesso livello del piano di campagna sul lato opposto. Qui si sviluppa l’abitazione principale, pensata per ospitare una famiglia numerosa mentre all’ultimo piano si trova un appartamento indipendente con un ampio studio.
I muri esterni sono trattati con mattoni sabbiati a mano e lasciati a vista, mentre la fascia marcapiano e quella di gronda sono in calcestruzzo a vista; il tetto a padiglioni aggentanti è ricoperto da normali tegole e canali di cotto.
Le sistemazioni esterne sono progettate per integrare il costruito con le caratteristiche del terreno disegnando percorsi che si avvalgono di gradini, terrazze e una scala elicoidale in cemento armato che ripropone il motivo curvilineo all’esterno, così come fa la scala di servizio internamente chiusa in un volume cilindrico parzialmente visibile all’esterno, unico elemento che rompe l’ortogonalità volumetrica del complesso.
(Matteo Sintini, Ilaria Cattabriga)
Info
- Progetto: 1969 - 1969
- Esecuzione: 1970 - 1971
- Tipologia Specifica: villa
- Proprietà: Proprietà privata
- Destinazione originaria: villa
- Destinazione attuale: villa
Autori
| Nome | Cognome | Ruolo | Fase Progetto | Archivio Architetti | Url Profilo | Autore Principale |
|---|---|---|---|---|---|---|
| Franco | Albini | Progetto architettonico | Progetto | Visualizza Profilo | https://siusa.archivi.beniculturali.it/cgi-bin/siusa/pagina.pl?TipoPag=prodpersona&Chiave=19452 | SI |
| ing. | Collina | Progetto strutturale | Progetto | NO | ||
| Franca | Helg | Progetto architettonico | Progetto | Visualizza Profilo | https://siusa.archivi.beniculturali.it/cgi-bin/siusa/pagina.pl?TipoPag=prodpersona&Chiave=21153 | SI |
- Strutture: cemento armato
- Materiale di facciata: mattoni faccia a vista sabbiati a mano
- Coperture: a falde, coppi, tegole di laterizio
- Serramenti: pitch-pine
- Stato Strutture: Buono
- Stato Materiale di facciata: Buono
- Stato Coperture: Buono
- Stato Serramenti: Buono
- Vincolo: Non Vincolata
- Provvedimenti di tutela: Nessuna opzione
- Data Provvedimento:
- Riferimento Normativo:
- Altri Provvedimenti:
- Foglio Catastale: 33
- Particella: 3
Note
Franco Albini (Robbiate, 1905 - Milano, 1977) Trascorre nella casa paterna l’infanzia e parte della giovinezza, assorbendo la sensibilità per le opere dell’uomo e della natura della sua terra. Trasferitosi con la famiglia a Milano, frequenta il Politecnico, dove si laurea nel 1929 e inizia l’attività professionale nello studio di Gio Ponti ed Emilio Lancia. Nello stesso anno visita Barcellona, in occasione dell’Esposizione internazionale, raggiungendo Parigi, dove sembra essersi recato nello studio di Le Corbusier. Dopo le prime realizzazioni d’impronta novecentesca nel campo dell’arredamento, una conversazione con Edoardo Persico determina la sua “conversione” al razionalismo e l’avvicinamento al gruppo dei redattori di "Casabella". Nel 1931 apre il primo studio professionale in via Panizza a Milano con Renato Camus e Giancarlo Parlanti; inizia a occuparsi di edilizia popolare partecipando al concorso per il quartiere Baracca a Milano (1932). L’adesione al metodo progettuale di ispirazione gropiusiana si evidenzia nella chiarezza dell’impianto aperto, con i corpi di fabbrica equidistanti e allineati secondo l’asse eliotermico che fa irrompere nel quartiere aria, luce e verde. Nel campo degli allestimenti Albini, chiamato da Pagano, esordisce nel 1933 alla V Triennale di Milano. Nel corso degli anni Trenta gli allestimenti e i padiglioni temporanei nelle manifestazioni fieristiche sono le palestre che gli permettono di sperimentare nuove soluzioni, sondando in alcuni casi articolate volumetrie curve e, più spesso, spazi cartesiani ordinati da griglie geometriche, telai metallici e pannelli traslucidi in vetro o tessuto. Nel corso del 1946 dirige insieme a Parlanti la rivista “Casabella Costruzioni”. Nel dopoguerra la gamma degli interessi professionali si amplia anche in relazione alle opportunità offerte dalla Ricostruzione. Nell’insegnamento trasmette gli stessi principi che fondano il suo lavoro di architetto: la necessità di un’analisi approfondita dei problemi e di un continuo controllo e giustificazione delle proprie scelte. Franca Helg (Milano, 1920-1989) Nei primi anni Quaranta, mentre frequenta la Facoltà di Architettura, lavora presso lo studio BBPR. Consegue la laurea nel 1945 e nel medesimo anno inizia l’attività professionale autonoma. Nel 1945-46 partecipa alla fondazione e redazione dei “Quaderni degli studenti della Facoltà di Architettura di Milano”, poi intitolati “Studi d’Architettura”. Nel 1946-47 è membro della Commissione Consultiva per il Nuovo P.R.G. di Milano. Dal 1947 è membro del M.S.A. (Movimento Studi Architettura) a Milano. La sua attività didattica inizia nel 1955 come assistente straordinaria di L. Belgiojoso al corso di “caratteri distributivi degli edifici” presso lo IUAV. Dal 1963 al 1967 è assistente ordinario al corso di “composizione architettonica” al Politecnico di Milano (sempre per L. Belgiojoso). Nel 1967 consegue la libera docenza in Composizione Architettonica. Presso la Facoltà di Architettura del Politecnico di Milano ottiene il premio di operosità scientifica ed artistica per gli anni accademici 1963-64, 1964-65, 1967-68. Nel 1951 inizia l’associazione in studio con Franco Albini.
Bibliografia
| Autore | Anno | Titolo | Edizione | Luogo Edizione | Pagina | Specifica |
|---|---|---|---|---|---|---|
| 1981 | Orientamenti moderni nell'edilizia. Case unifamiliari | Over edizioni | Milano | Si | ||
| Tramonti Ulisse | 1997 | Itinerari di Architettura Moderna. Forlì, Cesena, Predappio | Alinea | Firenze | 177; 325-326 | Si |
| Casciato Maristella, Orlandi Piero (a cura di) | 2005 | Quale e Quanta. Architettura in Emilia Romagna nel secondo Novecento | Clueb | Bologna | No |
Fonti Archivistiche
| Titolo | Autore | Ente | Descrizione | Conservazione |
|---|---|---|---|---|
| Archivio Franco Albini | Franco Albini, Franca Helg | Fondazione Franco Albini, Milano |
Allegati
Criteri
| 6. L’edificio o l’opera di architettura è stata progettata da una figura di rilievo nel panorama dell’architettura nazionale e/o internazionale. | |
| 7. L’edificio o l’opera di architettura si segnala per il particolare valore qualitativo all’interno del contesto urbano in cui è realizzata. |
Sitografia ed altri contenuti online
| Titolo | Url |
|---|---|
| Enciclopedia Treccani - Franca Helg | Visualizza |
| Fondazione Franco Albini | Visualizza |
| Dizionario biografico degli Italiani - Franco Albini | Visualizza |
| Enciclopedia Treccani - Franco Albini | Visualizza |
Crediti Scheda
Enti di riferimento: PaBAAC - Segretariato Regionale per l'Emilia RomagnaTitolare della ricerca: Università degli studi di Bologna Dipartimento di Architettura
Responsabile scientifico: Marco Pretelli
Scheda redatta da Matteo Sintini, Ilaria Cattabriga
creata il 31/12/2013
ultima modifica il 17/01/2025
Revisori:
Setti Stefano 2022







