CASA RURURBANA
Scheda Opera
- Comune: Nereto
- Denominazione: CASA RURURBANA
- Indirizzo: Via Capodivalle Medio
- Data: 1999 - 2007
- Tipologia: Abitazioni unifamiliari
- Autori principali: Marco d'Annuntiis
Descrizione
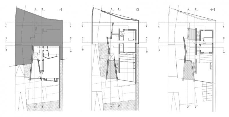
Casa Alesi sorge nella campagna vicino Nereto, all'interno del sistema di colline-valli che strutturano la costa adriatica. La distribuzione pulviscolare delle abitazioni sullo sfondo rurale non sempre rispecchia un reale legame con l’attività agricola, ma maschera una forte interdipendenza con i centri abitati.
La possibilità di realizzazione di superfici abitative molto più ampie rispetto alle zone urbane favorisce questo tipo di realtà insediativa. Casa Alesi interpreta in maniera molto significativa la complessa sovrapposizione di valori urbani e rurali.
L’impianto si discosta dalle tipologie tradizionali grazie alla sottolineatura delle direttrici longitudinali, costituite da setti non sempre regolari, che seguono il pendio generando spazi passanti e orientando la vista verso scorci di paesaggio.
Info
- Progetto: 1999 - 2000
- Esecuzione: 2001 - 2007
- Committente: Lanfranco Alesi
- Proprietà: Proprietà privata
- Destinazione originaria: Abitazione
Autori
- Strutture: cemento armato
- Materiale di facciata: intonaco
- Coperture: a falde inclinate; latero-cemento
- Serramenti: alluminio; vetro
- Stato Strutture: Ottimo
- Stato Materiale di facciata: Ottimo
- Stato Coperture: Ottimo
- Stato Serramenti: Ottimo
- Vincolo: Non Vincolata
- Provvedimenti di tutela: Nessuna opzione
- Data Provvedimento:
- Riferimento Normativo:
- Altri Provvedimenti:
- Foglio Catastale: 1
- Particella: 1114
Note
-
Bibliografia
| Autore | Anno | Titolo | Edizione | Luogo Edizione | Pagina | Specifica |
|---|---|---|---|---|---|---|
| Petranzan Margherita, Copat Pier Luigi, Mastrigli Gabriele | 2001 | Opere prime | Anfione e Zeto, n. 14 | Padova | Si | |
| Ciranna Simonetta (a cura di) | 2009 | Dall'Adriatico al Gran Sasso. Architetture e progetti del nuovo millennio | Gangemi | Roma | 122-124 | Si |
| Buonamano Oscar, Potenza Domenico (a cura di) | 2012 | Ad'A premio architettura d'abruzzo | CARSA edizioni | Pescara | 92-95 | Si |
| Palestini Caterina, Pozzi Carlo (a cura di) | 2013 | L'Architettura in Abruzzo e Molise dal 1945 ad oggi. Selezione delle opere di rilevante interesse storico-artistico | Gangemi | Roma | 214-215 | Si |
Allegati
Criteri
| 4. L’edificio o l’opera di architettura riveste un ruolo significativo nell’ambito dell’evoluzione del tipo edilizio di pertinenza, ne offre un’interpretazione progressiva o sperimenta innovazioni di carattere distributivo e funzionale. |
Crediti Scheda
Enti di riferimento: PaBAAC - Direzione Regionale per l'AbruzzoTitolare della ricerca: Università degli Studi "G. d'Annunzio" Chieti – Pescara - Dipartimento di Architettura
Responsabile scientifico: Caterina Palestini
Scheda redatta da
creata il 31/12/2013
ultima modifica il 01/02/2023
Revisori:
Battaglia Laura 2022












