SCUOLA MEDIA A CASAL MONASTERO
Scheda Opera
- Comune: Roma
- Località: Settecamini
- Denominazione: SCUOLA MEDIA A CASAL MONASTERO
- Indirizzo: Viale Ratto delle Sabine N. 3
- Data: 2005 - 2011
- Tipologia: Scuole
- Autori principali: Francesco Cellini
Descrizione
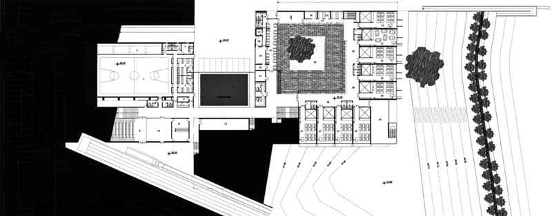
L’edificio è concepito in tre complessi funzionali, il primo con servizi da aprire al quartiere collocati su una piazza, il secondo formato dalle attività di servizio, il terzo destinato agli spazi didattici. Le strutture sono collegate da un percorso che scende dalla piazza. Durante la costruzione, l’enorme scavo realizzato per le indagini archeologiche ha modificato radicalmente l’orografia dell’area su cui s’impostavano le quote di progetto e ha portato il Comune alla decisione di ampliare in modo consistente l’opera. Oggi ospita 15 aule (dalle originali 9) più 6 aule speciali (3 in origine), per un totale di 375 alunni, anche in ragione dell’effettivo fabbisogno di un quartiere molto popoloso. Le modifiche non hanno comunque stravolto l’impostazione tipologica del progetto, con i due grandi volumi a quote diverse separati dai campi sportivi.
L'edificio realizzato è uno dei progetti vincitori del concorso internazionale ”3 nuove scuole per Roma”, bandito dal Comune nel 2004, in tre differenti aree della città: Casal Monastero (gruppo Cellini), Romanina (gruppo Hertzberger) e Muratella (gruppo Albori Associati).
Info
- Progetto: 2005 -
- Esecuzione: - 2011
- Tipologia Specifica: scuola media
- Committente: Comune di Roma - Concorso internazionale “3 nuove scuole per Roma“
- Proprietà: Proprietà pubblica
Autori
| Nome | Cognome | Ruolo | Fase Progetto | Archivio Architetti | Url Profilo | Autore Principale |
|---|---|---|---|---|---|---|
| Francesco | Cellini | Progetto architettonico | Progetto | Visualizza Profilo | https://accademiasanluca.it/accademici/archivio/francesco-cellini | SI |
| Jana | Kuhnle | Progetto architettonico | Progetto | NO | ||
| Caterina | Rogai | Progetto architettonico | Progetto | NO | ||
| Andrea | Salvioni | Progetto architettonico | Progetto | Visualizza Profilo | http://www.salvioni.org/index.htm | NO |
- Strutture: cemento armato
- Materiale di facciata: intonaco, curtain wall (vetro)
- Coperture: piane
- Serramenti: alluminio
- Stato Strutture: Ottimo
- Stato Materiale di facciata: Ottimo
- Stato Coperture: Ottimo
- Stato Serramenti: Ottimo
- Vincolo: Non Vincolata
- Provvedimenti di tutela: Nessuna opzione
- Data Provvedimento:
- Riferimento Normativo:
- Altri Provvedimenti:
- Foglio Catastale: -
- Particella: -
| Codice ICCd | Ubicazione | Tipologia | Soggetto | Autore | Materia Tecnica | Stato di Conservazione | Restauri |
|---|---|---|---|---|---|---|---|
Note
-
Bibliografia
| Autore | Anno | Titolo | Edizione | Luogo Edizione | Pagina | Specifica |
|---|---|---|---|---|---|---|
| Capanna Alessandra | 2005 | Tre nuove scuole a Roma | L'Industria delle Costruzioni n. 385 | 72-85 | No | |
| Brandolini Sebastiano | 2008 | Roma. Nuova architettura | Skira | Milano | 166-169 | No |
| Rossi Piero Ostilio | 2012 | Roma. Guida all'architettura moderna 1909-2011 (IV ed.) | Laterza | Roma-Bari | Scheda n. 258 | No |
| Maietti Federica | 2014 | La scuola è sostenibile e inclusiva | Paesaggio urbano n. 5-6 | 16-29 | No |
Criteri
| 2. L’edificio o l’opera di architettura è illustrata in almeno due riviste di architettura di livello nazionale e/o internazionale. | |
| 3. L’edificio o l’opera di architettura ha una riconosciuta importanza nel panorama dell’architettura nazionale, degli anni nei quali è stata costruita, anche in relazione ai contemporanei sviluppi sia del dibattito, sia della ricerca architettonica nazionale e internazionale, | |
| 6. L’edificio o l’opera di architettura è stata progettata da una figura di rilievo nel panorama dell’architettura nazionale e/o internazionale. | |
| 7. L’edificio o l’opera di architettura si segnala per il particolare valore qualitativo all’interno del contesto urbano in cui è realizzata. |
Sitografia ed altri contenuti online
| Titolo | Url |
|---|---|
| Scuola media 15 sezioni | Visualizza |
Crediti Scheda
Enti di riferimento: PaBAAC - Direzione Regionale per il LazioTitolare della ricerca: Università degli studi di Roma "Sapienza"
Responsabile scientifico: Piero Ostilio Rossi
Scheda redatta da
creata il 31/12/2012
ultima modifica il 27/02/2025
Revisori:
Alberto Coppo 2021



