UFFICI DI ROMA CAPITALE NELL’EX MANIFATTURA TABACCHI
Scheda Opera
- Comune: Roma
- Località: Ostiense
- Denominazione: UFFICI DI ROMA CAPITALE NELL’EX MANIFATTURA TABACCHI
- Indirizzo: Piazza Giovanni da Verrazzano N. 7
- Data: 2004 - 2009
- Tipologia: Interventi di recupero e trasformazione
- Autori principali: Studio Seste
Descrizione
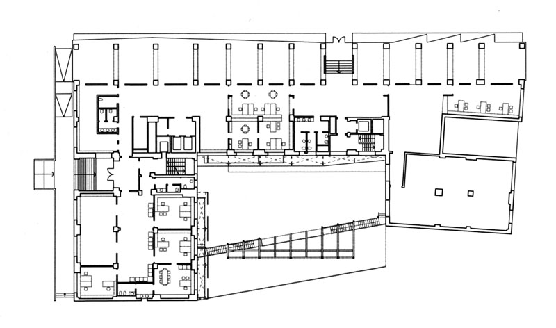
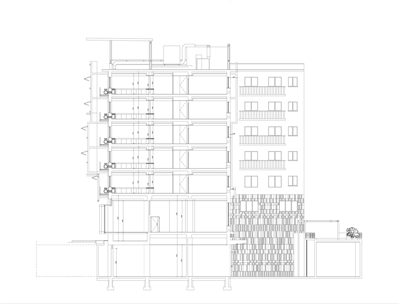
L’intervento riguarda la riqualificazione di uno degli edifici dell’ex Manifattura Tabacchi a partire da una nuova configurazione delle facciate, determinata da ragioni di adeguamento degli impianti: l’altezza dell’interpiano non sarebbe stata sufficiente per permetterne il passaggio all'interno dei controsoffitti ed è stato quindi necessario collocarli all’esterno sul filo delle vecchie facciate e sovrapporre ad esse un involucro formato da pannelli di rete metallica in acciaio inox. Nello spessore, una serie di passerelle a sbalzo permette la manutenzione degli impianti senza interferire con le attività che si svolgono all'interno. Davanti alle finestre, i pannelli sono mobili e si aprono in verticale “a libro“, grazie a motorizzazioni comandate dall'interno. L’involucro tecnologico disegna un prospetto “di trame e di trasparenze“ in continuo movimento al quale fanno da contrappunto un basamento ora trasparente ora a pixel bianchi e neri (pietra di Apricena e peperino) e pensiline colorate in copertura.
Info
- Progetto: 2004 -
- Esecuzione: - 2009
- Tipologia Specifica: Edificio per uffici
- Committente: Comune di Roma
- Proprietà: proprietà Ente pubblico territoriale
Autori
| Nome | Cognome | Ruolo | Fase Progetto | Archivio Architetti | Url Profilo | Autore Principale |
|---|---|---|---|---|---|---|
| Vittorio | Cassani | Progetto strutturale | Progetto | NO | ||
| Silvio | D'Amore | Progetto architettonico | Progetto | NO | ||
| Alessandro | De Laurentiis | Progetto architettonico | Progetto | NO | ||
| Marco | Musmeci | Progetto strutturale | Progetto | NO | ||
| Alberto | Ricci | Progetto strutturale | Progetto | NO | ||
| Studio | Seste | Progetto architettonico | Progetto | Visualizza Profilo | http://www.studioseste.it/?fbclid=IwAR1qZnYJp83cLl6UIwY3kK2J1Yju2QkglRG0CPgRUgfxFs9hTdkvi_wLuUg | SI |
- Strutture: cemento armato
- Materiale di facciata: pannelli di rete metallica in acciaio inox, pietra di Apricena chiara, peperino grigio
- Coperture: piane
- Serramenti: alluminio
- Stato Strutture: Ottimo
- Stato Materiale di facciata: Ottimo
- Stato Coperture: Ottimo
- Stato Serramenti: Ottimo
- Vincolo: Non Vincolata
- Provvedimenti di tutela: Nessuna opzione
- Data Provvedimento:
- Riferimento Normativo:
- Altri Provvedimenti:
- Foglio Catastale: -
- Particella: -
Note
-
Bibliografia
| Autore | Anno | Titolo | Edizione | Luogo Edizione | Pagina | Specifica |
|---|---|---|---|---|---|---|
| 2009 | Atlante della riqualificazione degli edifici | UTET | Torino | 314-317 | No | |
| Rossi Piero Ostilio | 2012 | Roma. Guida all'architettura moderna 1909-2011 (IV ed.) | Laterza | Roma-Bari | Scheda n. 243 | Si |
| 2013 | Italia en México 2013 | AR Magazine n. 108 | 33 | No |
Criteri
| 3. L’edificio o l’opera di architettura ha una riconosciuta importanza nel panorama dell’architettura nazionale, degli anni nei quali è stata costruita, anche in relazione ai contemporanei sviluppi sia del dibattito, sia della ricerca architettonica nazionale e internazionale, | |
| 7. L’edificio o l’opera di architettura si segnala per il particolare valore qualitativo all’interno del contesto urbano in cui è realizzata. |
Crediti Scheda
Enti di riferimento: PaBAAC - Direzione Regionale per il LazioTitolare della ricerca: Università degli studi di Roma "Sapienza"
Responsabile scientifico: Piero Ostilio Rossi
Scheda redatta da
creata il 31/12/2012
ultima modifica il 27/02/2025
Revisori:
Alberto Coppo 2021



