RESIDENZA MOBILE
Scheda Opera
- Comune: Trani
- Denominazione: RESIDENZA MOBILE
- Indirizzo: Via Pola, N. 2/F
- Data: - 2004
- Tipologia: Abitazioni plurifamiliari
- Autori principali: Studio Alvisi Kirimoto
Descrizione
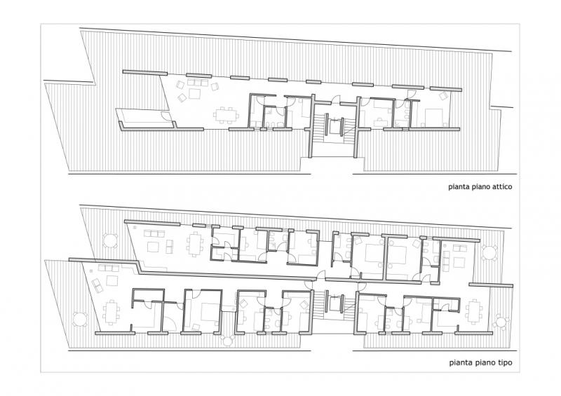
L’edificio residenziale è inserito in una delicata area urbana a poche centinaia di metri dal centro storico di Trani, considerato uno dei più rappresentativi della cultura architettonica pugliese romanica e gotica della Puglia. Posta all’interno di un quartiere fortemente e disomogeneamente costruito, l’area d’intervento è destinata ad attività commerciali al piano terra, residenziali ai piani superiori.
Il progetto disarticola l’area attraverso due volumi slittati che individuano da un lato la separazioni tra gli appartamenti nord e sud e realizzano una piccola piazza antistante l’edificio. Tutto il blocco è posto a 20 metri dall’edificio a nord per realizzare un piccolo giardino a servizio in parte della città e in parte dei residenti. Il volume puro e omogeneo è circondato da balconi lungo tutta la facciata con forti sbalzi verso il mare realizzando dei terrazzamenti ampi.
Ma la vera innovazioni architettonica del progetto è data dal rivestimento dei terrazzamenti realizzato attraverso pannelli mobili in tessuto da barca e lamiera fessurata. Questi schermi oltre a proteggere i balconi dal vento e dal sole permettono di creare una certa privacy e soprattutto non definiscono una facciata generando un modello abitativo innovativo per il sud ed efficace per le caratteristiche del luogo. I colori sono quelli della cultura classica della Puglia il bianco e il grigio, e la pietra di Trani.
Info
- Progetto: -
- Esecuzione: 1999 - 2004
- Committente: Degam Costruzioni
- Proprietà: Proprietà privata
- Destinazione originaria: Edificio residenziale
- Destinazione attuale: Edificio residenziale
Autori
| Nome | Cognome | Ruolo | Fase Progetto | Archivio Architetti | Url Profilo | Autore Principale |
|---|---|---|---|---|---|---|
| Massimo | Alvisi | Progetto architettonico | Progetto | NO | ||
| Studio | Alvisi Kirimoto | Progetto architettonico | Progetto | Visualizza Profilo | https://www.alvisikirimoto.it/it/studio | SI |
| Junko | Kirimoto | Progetto architettonico | Progetto | NO |
- Strutture: telaio in c.a.
- Materiale di facciata: intonaco; rivestimento in pannelli mobili in tessuto da barca e lamiera fessurata
- Coperture: piana in laterocemento
- Stato Strutture: Ottimo
- Stato Materiale di facciata: Ottimo
- Stato Coperture: Ottimo
- Vincolo: Non Vincolata
- Provvedimenti di tutela: Nessuna opzione
- Data Provvedimento:
- Riferimento Normativo:
- Altri Provvedimenti:
- Foglio Catastale: 25A
- Particella: 2155
Note
-
Bibliografia
| Autore | Anno | Titolo | Edizione | Luogo Edizione | Pagina | Specifica |
|---|---|---|---|---|---|---|
| Puglisi Prestinenza Luigi | 2007 | Complexity and contradiction': the Italian architectural landscape | Architectural Design n. 3 | Londra (UK) | 6-15 | No |
| Prestinenza Puglisi Luigi | 2007 | Alvisi Kirimoto + Patners | The plan: architecture & technologies in detail n. 19 | Bologna | 109-112 | No |
Criteri
| 4. L’edificio o l’opera di architettura riveste un ruolo significativo nell’ambito dell’evoluzione del tipo edilizio di pertinenza, ne offre un’interpretazione progressiva o sperimenta innovazioni di carattere distributivo e funzionale. | |
| 5. L’edificio o l’opera di architettura introduce e sperimenta significative innovazioni nell’uso dei materiali o nell’applicazione delle tecnologie costruttive. | |
| 7. L’edificio o l’opera di architettura si segnala per il particolare valore qualitativo all’interno del contesto urbano in cui è realizzata. |
Sitografia ed altri contenuti online
| Titolo | Url |
|---|---|
| Alvisi Kirimoto | Visualizza |
Crediti Scheda
Enti di riferimento: PaBAAC - Direzione Regionale per la PugliaTitolare della ricerca: Politecnico di Bari - DICATECh
Responsabile scientifico: Francesco Moschini
Scheda redatta da
creata il 31/12/2011
ultima modifica il 29/04/2024
Revisori:
Battaglia Laura 2022




