EDIFICI PER ABITAZIONI IN VIA FIORI CHIARI
Scheda Opera
- Comune: Milano
- Denominazione: EDIFICI PER ABITAZIONI IN VIA FIORI CHIARI
- Indirizzo: Via Fiori Chiari N. 9, N. 24
- Data: 1988 - 1996
- Tipologia: Abitazioni plurifamiliari
- Autori principali: Architects Mario Bellini
Descrizione
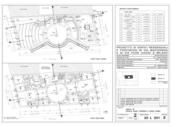
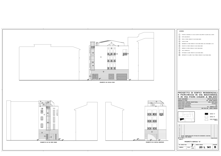
L'intervento si compone di due edifici indipendenti, inseriti nel contesto di un isolato storico del quartiere di Brera - rimasto parzialmente inedificato dopo i bombardamenti del 1943 - che Bellini cerca di ricucire, sia attraverso un attento disegno del piano terra e dei percorsi che lo legano all'intorno, sia mediante il riferimento costante a figure tipologiche come il la corte e il ballatoio. Il corpo di fabbrica su via Madonnina, per esempio, è attestato intorno a un cortile a pianta circolare la cui sagoma è ribadita tanto verso l'interno - con una serrata sequenza di ballatoi in ferro, che si sovrappongono a distribuire le abitazioni ai piani superiori - tanto verso la piccola piazza antistante il complesso, su cui si riflette mediante un improvviso vuoto della facciata, in corrispondenza del secondo e del terzo livello, e gli aggetti di un volume trasparente al piano terra e di un balcone in copertura.
Il blocco minore ripropone l'elemento cilindrico, in questo caso trasformato in un'alta colonna in vetro e acciaio verniciato che si attesta in un angolo a segnare l'inizio della prospettiva urbana disegnata dal complesso e sotto cui si colloca l'accesso principale a questo volume.
Entrambi i fabbricati usano il medesimo linguaggio materico, giocato sulla bicromia: al rivestimento in lastre di granito per il piano terra, viene contrapposto un intonaco color panna.
Info
- Progetto: 1988 - 1988
- Esecuzione: 1991 - 1996
- Committente: Ceid Italia - Fondiaria S.p.A., Associazione temporanea di imprese Else S.p.A. - Ranza S.p.A., Milano - Procogen
- Proprietà: Proprietà privata
Autori
| Nome | Cognome | Ruolo | Fase Progetto | Archivio Architetti | Url Profilo | Autore Principale |
|---|---|---|---|---|---|---|
| Philip | Allen | Collaboratore | Progetto | NO | ||
| Mario | Bellini | Progetto architettonico | Progetto | Visualizza Profilo | https://siusa.archivi.beniculturali.it/cgi-bin/siusa/pagina.pl?TipoPag=prodpersona&Chiave=19459 | NO |
| Studio | Bozino Resmini | Progetto architettonico | Progetto | NO | ||
| Italprogetti e Sorgato | Progetto strutturale | Progetto | NO | |||
| Carlo | Malnati | Progetto architettonico | Progetto | NO | ||
| Architects | Mario Bellini | Progetto architettonico | Progetto | https://bellini.it/ | SI | |
| Vittorio | Samarati | Progetto architettonico | Progetto | NO | ||
| Alessio | Zanichelli | Direzione lavori | Esecuzione | NO |
- Strutture: travi e pilastri in acciaio e in cemento armato
- Materiale di facciata: lastre di granito (piano terra); intonaco color panna (piani superiori)
- Coperture: a falde inclinate; piana a terrazza
- Serramenti: in legno verniciato
- Stato Strutture: Buono
- Stato Materiale di facciata: Buono
- Stato Coperture: Buono
- Stato Serramenti: Buono
- Vincolo: Non Vincolata
- Provvedimenti di tutela: Nessuna opzione
- Data Provvedimento:
- Riferimento Normativo: Decreto Legislativo 22 gennaio 2004, n. 42 (art. 136)
- Altri Provvedimenti: Dichiarazione di notevole interesse (30/11/2009)
- Foglio Catastale: 349
- Particella: 459
Note
Il complesso di via dei Fiori Chiari viene presentato, sulle pagine del volume di Ranzani dedicato alle architetture di Bellini (1996), come interessante esempio dell'attenzione del progettista al contesto storico e urbano, accompagnandone la descrizione tecnica con un significativo rimando a un testo dello stesso Bellini pubblicato nel 1991 sulla rivista internazionale “Town and Design“. Nel saggio così accostato al progetto, l'architetto milanese racconta Milano come “una città che tenta di salvare con orgoglio le tracce e il senso della propria storia, che considera i propri monumenti come un patrimonio intangibile e che pure aspira a trasformarsi e a restare viva“.
Bibliografia
| Autore | Anno | Titolo | Edizione | Luogo Edizione | Pagina | Specifica |
|---|---|---|---|---|---|---|
| Muirhead Thomas | 1988 | Milan. A guide to a recent architecture | Ellipsis | London | 36-37 | No |
| Ranzani Ermanno (a cura di) | 1988 | Mario Bellini. Architetture | Electa | Milano | 94-101 | Si |
| Basso Peressut Luca, Valente Ilaria (a cura di) | 1989 | Milano. Architetture per la città 1980-1990 | Editoriale Domus | Milano | 62 | No |
| Comune di Milano (a cura di) | 1989 | Milano progetti ottantanove | Milano | 48-49 | No | |
| Servadio Leonardo | 1995 | La poetica del luogo, il confronto con la storia | Casa oggi n. 248 | 24-31 | Si | |
| Ranzani Ermanno (a cura di) | 1996 | Mario Bellini. Architetture 1984-1995 | Skira | Milano | 132-13 | Si |
| Frampton Kenneth, Ranzani Ermanno | 2016 | Mario Bellini Architetto / Architect | Silvana editoriale | Cinisello Balsamo | Si | |
| Andreola Florencia, Biraghi Marco, Lo Ricco Gabriella (a cura di) | 2018 | Milano. L'architettura dal 1945 a oggi | Hoepli | Milano | 104 | No |
Fonti Archivistiche
| Titolo | Autore | Ente | Descrizione | Conservazione |
|---|---|---|---|---|
| Archivio Mario Bellini | Mario Bellini | Fondo privato | Edifici in via Fiori Chiari, Milano |
Allegati
Criteri
| 1. L’edificio o l’opera di architettura è citata in almeno tre studi storico-sistematici sull’architettura contemporanea di livello nazionale e/o internazionale. | |
| 6. L’edificio o l’opera di architettura è stata progettata da una figura di rilievo nel panorama dell’architettura nazionale e/o internazionale. |
Sitografia ed altri contenuti online
| Titolo | Url |
|---|---|
| Two Residential Buildings In The Brera District | Visualizza |
Crediti Scheda
Enti di riferimento: DARCTitolare della ricerca: Politecnico di Milano - Dipartimento di Industrial Design, Arti, Comunicazione e Moda
Responsabile scientifico: Fulvo Irace, Graziella Leyla Ciagà
Scheda redatta da
creata il 31/12/2012
ultima modifica il 05/02/2025
Revisori:
Alberto Coppo 2022






























