IACP VILLA CECCOLINI
Scheda Opera
- Comune: Pesaro
- Località: Villa Ceccolini
- Denominazione: IACP VILLA CECCOLINI
- Indirizzo: Via Lago Misurina, Via Lago d’Orta, Via Lago di Carezza
- Data: 1983 - 1989
- Tipologia: Edilizia residenziale pubblica
- Autori principali: Carlo Melograni, Architetti Associati P+R, Marta Calzolaretti, Piero Ostilio Rossi, Ranieri Valli, Andrea Vidotto
Descrizione
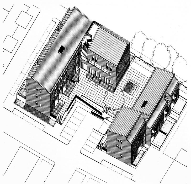
Proseguendo quanto già avvenuto con i quartieri dell’INA-Casa pianificati e realizzati come nuclei decentrati autonomi staccati dalla città di Pesaro trent’anni prima, l’IACP “Villa Ceccolini” si insedia lontano dal centro, sulla valle del Foglia in adiacenza ad una importante via di traffico che conduce nell’entroterra. I progettisti scelgono di realizzare corpi di fabbrica a misura d’uomo, alti non più di tre piani, in modo da avere tessuti edilizi compatti molto simili a quelli delle frazioni o dei piccoli centri limitrofi alle nuove costruzioni.
In totale l’insediamento di Villa Ceccolini prevede 120 alloggi organizzati in corpi di fabbrica differenziati per composizione architettonica e finiture in modo da riproporre quella differenziazione che caratterizza da sempre gli abitati storici. Dal punto di vista planimetrico una notevole superficie viene destinata alla realizzazione di piccole corti e spazi verdi protetti dalle due diverse tipologie di edifici costruiti. La prima consiste in palazzine con rivestimento esterno in mattoni gialli e ricorsi in mattoni rossi; i blocchi residenziali sono caratterizzati da una cornice sommitale di sapore post-moderno che occulta le falde di coperture in coppi.
Gli edifici sono innalzati rispetto al livello del terreno da un basamento in calcestruzzo che ha consentito di inserire piccole cantine seminterrate. La seconda tipologia, limitata all’ultima serie di abitazioni nella zona est, è costituita da case a schiera, caratterizzate dalla medesima immagine esterna ma di tratta di fatto di proprietà a schiera con ingresso indipendente e retrostante box auto con piccolo spazio verde intercluso. (GB)
Info
- Progetto: 1983 - 1984
- Esecuzione: 1985 - 1989
- Tipologia Specifica: Palazzine IACP
- Committente: Istituto Autonomo Case Popolari
- Proprietà: Proprietà pubblico-privata
- Destinazione originaria: Quartiere IACP
- Destinazione attuale: Quartiere IACP
Autori
- Strutture: Calcestruzzo armato
- Materiale di facciata: Rivestimento in mattoncini faccia vista
- Coperture: A falde in calcestruzzo armato
- Serramenti: Metallo e legno
- Stato Strutture: Buono
- Stato Materiale di facciata: Ottimo
- Stato Coperture: Buono
- Stato Serramenti: Buono
- Vincolo: Non Vincolata
- Provvedimenti di tutela: Nessuna opzione
- Data Provvedimento:
- Riferimento Normativo:
- Altri Provvedimenti:
- Foglio Catastale: -
- Particella: -
Note
I lavori sono stati eseguiti dall’impresa Giacomini e Monti di Pesaro; la direzione lavori è stata svolta dall’ing. Alberto Pisani dello IACP di Pesaro. I lavori hanno avuto un costo di 1.333.280 di vecchie lire. Il progetto architettonico è stato eseguito da P+R architetti associati formato da: Marta Calzolaretti, Carlo Melograni, Piero O. Rossi, Ranieri Valli e Andrea Vidotto. Il progetto urbanistico è stato messo a punto da: Carlo Melograni (capogruppo), Alvaro Angelini, Stefano Bocconcelli, Marta Calzolaretti, Francesco Leoni e Andrea Vidotto.
Bibliografia
| Autore | Anno | Titolo | Edizione | Luogo Edizione | Pagina | Specifica |
|---|---|---|---|---|---|---|
| Muratore Giorgio, Capuano Alessandra, Galofaro Francesco, Pellegrini Ettore | 1988 | Guida all’architettura moderna. Italia, gli ultimi trent’anni | Zanichelli | Bologna | 302 | Si |
| 1989 | Intervento dello IACP di Pesaro a Villa Ceccolini | Edilizia popolare n. 208 | Roma | 54-61 | Si | |
| 1989 | Complesso IACP Villa Ceccolini | Parametro n. 175 | Faenza | 34-35 | Si | |
| AA.VV. | 1990 | Progetti di architettura, Rassegna della 1^ mostra dei progetti dei Docenti del Dipartimento di Progettazione architettonica e urbana dell'Università di Roma "La Sapienza" | Officina | Roma | 128 | No |
Criteri
| 6. L’edificio o l’opera di architettura è stata progettata da una figura di rilievo nel panorama dell’architettura nazionale e/o internazionale. |
Sitografia ed altri contenuti online
| Titolo | Url |
|---|---|
| Artribune - Carlo Melograni | Visualizza |
Crediti Scheda
Enti di riferimento: DGAAP - Segretariato Regionale per le MarcheTitolare della ricerca: Università Politecnica delle Marche - Dipartimento di Ingegneria Civile Edile e di Architettura
Responsabile scientifico: Antonello Alici
Scheda redatta da
creata il 31/12/2016
ultima modifica il 24/01/2025
Revisori:
Menzietti Giulia 2021




