CENTRO DEGUSTAZIONE AZIENDA AGRICOLA CAVALIERI
Scheda Opera
- Comune: Genzano di Roma
- Denominazione: CENTRO DEGUSTAZIONE AZIENDA AGRICOLA CAVALIERI
- Indirizzo: Via Montecagnolo N. 16
- Data: 2004 - 2009
- Tipologia: Edifici per attività agricole
- Autori principali: Studio AT
Descrizione
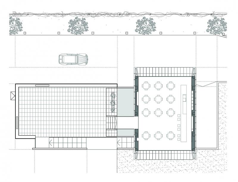
L’intervento riguarda la realizzazione di una sala di degustazione a servizio dell’azienda vinicola Cavalieri situata nella vicina casa colonica. La volontà del committente di conciliare tradizione e innovazione trova riscontro nel progetto di un edificio che si integra nel paesaggio della campagna a vigneto e nel contesto delle preesistenze.
La sala è un volume puro sospeso al di sopra di una struttura esistente che svolge la funzione di contenimento del terreno a monte. Al suo interno sono posti tutti i servizi (cucina, depositi, locali tecnici) mentre la copertura diventa la terrazza di ingresso al nuovo volume, limitata da parapetti in vetro e collegata all'ingresso principale con un camminamento sospeso su uno specchio d’acqua. L’ambiente, pavimentato in basalto, è attrezzato con arredi che consentono configurazioni flessibili dello spazio.
La sala ha i lati longitudinali rivestiti in lastre di ardesia mentre quelli trasversali sono lasciati completamente vetrati: il nuovo edificio si smaterializza a favore della natura, diventando cannocchiale visivo che inquadra da una parte la vallata e il mare e dall’altra i Castelli Romani. Il progetto è stato premiato nel 2012 alla Triennale mondiale dell’Architettura di Sofia, e nel 2008 all’edizione di RomArchitettura, IN/ARCH Lazio, nella sezione ‘Premio per un intervento realizzato, progettato da un giovane progettista’.
Info
- Progetto: 2004 - 2005
- Esecuzione: 2007 - 2009
- Committente: Azienda Agricola Cavalieri
- Proprietà: Proprietà privata
Autori
| Nome | Cognome | Ruolo | Fase Progetto | Archivio Architetti | Url Profilo | Autore Principale |
|---|---|---|---|---|---|---|
| Studio | AT | Progetto architettonico | Progetto | Visualizza Profilo | https://www.at-s.it/ | SI |
| Srl | Bogade | Impresa esecutrice | Esecuzione | NO | ||
| Lamberto | Danese | Progetto architettonico | Progetto | NO | ||
| Bruno | De Bernardis - progetto strutturale e impianti | Progetto architettonico | Progetto | NO | ||
| Paolo | Di Giacomantonio | Progetto architettonico | Progetto | NO | ||
| Roberto | Mazzer | Progetto architettonico | Progetto | NO | ||
| Roberto | Mazzer | Direzione lavori | Esecuzione | NO | ||
| Mauro | Merlo | Progetto architettonico | Progetto | NO | ||
| Mauro | Merlo - sicurezza | Coordinatore | Esecuzione | NO | ||
| Mauro | Middei | Progetto architettonico | Progetto | NO |
- Strutture: acciaio
- Materiale di facciata: facciata ventilata con rivestimento in lastre di ardesia e vetrata strutturale; intonaco
- Coperture: piana non praticabile
- Serramenti: metallici
- Stato Strutture: Buono
- Stato Materiale di facciata: Buono
- Stato Coperture: Buono
- Stato Serramenti: Buono
- Vincolo: Non Vincolata
- Provvedimenti di tutela: Nessuna opzione
- Data Provvedimento:
- Riferimento Normativo: Legge 29 giugno 1939, n. 1497
- Altri Provvedimenti: Dichiarazione di notevole interesse pubblico delle bellezze naturali (22/05/1985)
- Foglio Catastale: 13
- Particella: 558
Note
Vincolato: Vincolo paesaggistico (comune di Genzano e comune di Lanuvio – Castelli Romani) – fonte: http://www.sitap.beniculturali.it/ Provvedimenti di tutela D.M. 22 maggio 1985 a modifica del D.M. 21 settembre 1984 – Dichiarazione di notevole interesse pubblico delle bellezze naturali.
Bibliografia
| Autore | Anno | Titolo | Edizione | Luogo Edizione | Pagina | Specifica |
|---|---|---|---|---|---|---|
| Mulazzani Marco, Polin Giacomo, Melluso Vincenzo (a cura di) | 2009 | Almanacco Di Casabella Architetti Italiani 2009 | Hoepli | Milano | No | |
| Piccolo Barbara | 2009 | In vigna | Progetti n. 1 | 208-215 | Si | |
| Mairo Nicoletta (a cura di) | 2010 | Ventisettetrentasette | Tre P | Roma | 82-83 | No |
| Locci Massimo | 2012 | Progetti italiani alla Triennale di Sofia | AR Magazine n. 103 | 26-29 | No | |
| Piscitelli Valentina (a cura di) | 2012 | Giro d'Italia dell'architettura. 16, Lazio | Ottagono n. 255 | 142-143 | No |
Criteri
| 4. L’edificio o l’opera di architettura riveste un ruolo significativo nell’ambito dell’evoluzione del tipo edilizio di pertinenza, ne offre un’interpretazione progressiva o sperimenta innovazioni di carattere distributivo e funzionale. | |
| 7. L’edificio o l’opera di architettura si segnala per il particolare valore qualitativo all’interno del contesto urbano in cui è realizzata. |
Sitografia ed altri contenuti online
| Titolo | Url |
|---|---|
| Sala Degustazione – Cavalieri | Visualizza |
Crediti Scheda
Enti di riferimento: DGAAP - Segretariato Regionale per il LazioTitolare della ricerca: Università degli studi di Tor Vergata
Responsabile scientifico: Rosalia Vittorini
Scheda redatta da Barbara Paroli
creata il 31/12/2012
ultima modifica il 01/02/2023
Revisori:
Alberto Coppo 2022




