MUNICIPIO DI FIUMICINO
Scheda Opera
- Comune: Fiumicino
- Denominazione: MUNICIPIO DI FIUMICINO
- Indirizzo: Piazza Generale Carlo Alberto dalla Chiesa N. 78
- Data: 1996 - 2003
- Tipologia: Municipi
- Autori principali: Alessandro Anselmi, Maurizio Castelli, Pia Pascalino, Natale Russo
Descrizione
Prima opera di Anselmi in area romana, il nuovo Municipio di Fiumicino rappresenta anche una sintesi della lunga carriera accademica e professionale dell’autore. È un’opera complessa che si offre a diverse chiavi di lettura e presenta un certo grado di ambiguità nel riferirsi ai tema della ‘maschera’ cui l’autore dedica le sue riflessioni.
Il lotto, nell’area dell’ex stazione, è affacciato sul tracciato storico della via Portuense che costeggia il porto canale e prossimo all'antico borgo disegnato da Valadier. All'edificio è affidato il compito di rappresentare il nuovo centro che ha ottenuto l’autonomia amministrativa da Roma (1992) e, contemporaneamente, di configurare una nuova immagine urbana anche con l’obiettivo di riqualificare un’area cresciuta spontaneamente e spesso illegalmente e di restituire ordine e misura a un tessuto informe fatto di edilizia sparsa, incompleta, abusiva.
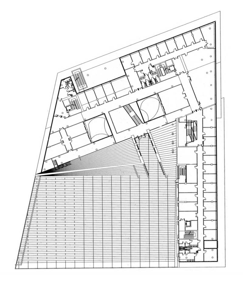
Più che un edificio Anselmi progetta un ‘paesaggio’: un ampio piano si stacca dalla quota di campagna per configurare una piazza, si impenna a trasformarsi in una gradinata a ventaglio prima e in una facciata poi, per piegarsi a formare un’aerea pensilina. L’idea di piazza è rafforzata dalla presenza sul lato di un secondo piano che si piega a configurare una seconda facciata laterale con la relativa pensilina. Il nuovo terreno artificiale permette d percepire, salendo, scorci sempre più ampi di paesaggio: si scopre man mano il canale, il mare, fino alle anse del Tevere. Al di sotto del piano, sui due lati della piazza sono collocati, in parte ipogei, gli ambienti destinati ad accogliere le funzioni politiche, con la Sala consiliare, gli uffici dei gruppi politici, sale riunioni e tutti gli uffici amministrativi comunali, il comando dei vigili urbani, il bar e un’ampia autorimessa.
Il piano che da spazio pubblico, la piazza, diventa pensilina di copertura è concettualmente un elemento astratto, un foglio piegato che sembra sospeso nell'aria che nella costruzione si concretizza e assume materialità in una soletta cementizia sostenuta da pilastri e rivestita, sia nei piani di calpestio che nelle facciate, da mattoni murati di piatto, secondo un tipico procedimento artigianale, con ricorsi in listelli di granito che disegnano una precisa trama rettangolare (dieci mattoni per quattro).
Il rivestimento radica il piano al suolo e richiama la pavimentazione delle storiche piazze italiane. Nelle porzioni di facciata sul piano sono ritagliate asole regolari che denunciano lo spessore del muro. Al di sotto del piano, in un inatteso cambio di registro, l’edificio a L autonomo dal piano della pensilina, che nasconde e protegge gli impianti, è definito da un sistema industriale di facciate strutturali in pannelli di alluminio e vetro. Qui la facciata, ombreggiata dalla pensilina fortemente sporgente, è scandita dalle fasce orizzontali dei pannelli e segnata dall'arretramento dell’ingresso che prelude a un luminoso atrio a doppia altezza.
L’edificio ha subito nel tempo interventi inappropriati, il più rilevante dei quali è la costruzione di un corpo di collegamento tra le due ali della piazza a soli quattro anni dall'inaugurazione, senza consultare i progettisti e nonostante l’appello lanciato dall’Ordine degli architetti e sottoscritto da noti esponenti del mondo accademico e professionale; il complesso versa in condizione di degrado per la mancata manutenzione.
Info
- Progetto: 1996 - 1997
- Esecuzione: 1998 - 2003
- Committente: Comune di Fiumicino
- Proprietà: proprietà Ente pubblico territoriale
Autori
| Nome | Cognome | Ruolo | Fase Progetto | Archivio Architetti | Url Profilo | Autore Principale |
|---|---|---|---|---|---|---|
| Impresa | ALAN - facciate strutturali | Impresa esecutrice | Esecuzione | NO | ||
| Alessandro | Anselmi | Progetto architettonico | Progetto | Visualizza Profilo | https://siusa.archivi.beniculturali.it/cgi-bin/siusa/pagina.pl?TipoPag=prodpersona&Chiave=29322 | SI |
| Maurizio | Castelli | Progetto architettonico | Progetto | SI | ||
| Antonio Maria | Michetti | Progetto strutturale | Progetto | Visualizza Profilo | https://siusa.archivi.beniculturali.it/cgi-bin/siusa/pagina.pl?TipoPag=prodpersona&Chiave=58145 | NO |
| Stefano | Paolini | Collaboratore | Progetto | NO | ||
| Pia | Pascalino | Progetto architettonico | Progetto | Visualizza Profilo | http://www.illaboratoriosrl.com/italiano/pia.htm | SI |
| Natale | Russo | Progetto architettonico | Progetto | SI | ||
| CO.GE.L. | S.p.A. | Impresa esecutrice | Esecuzione | NO | ||
| FARAM | S.p.A. - arredi | Impresa esecutrice | Esecuzione | NO | ||
| Maurizio | Storchi | Collaboratore | Progetto | NO | ||
| Renato | Tito | Progetto Impianti | Progetto | NO |
- Strutture: calcestruzzo armato
- Materiale di facciata: mattoni, curtain wall
- Coperture: piane
- Serramenti: metallici
- Stato Strutture: Buono
- Stato Materiale di facciata: Mediocre
- Stato Coperture: Mediocre
- Stato Serramenti: Buono
- Vincolo: Riconosciuta
- Provvedimenti di tutela: Nessuna opzione
- Data Provvedimento:
- Riferimento Normativo: Legge 22 aprile 1941, n. 633 art. 20, DDR 2 agosto 2005
- Altri Provvedimenti: Vincolo “ope legis” relativo alle aree di rispetto coste e corpi idrici
- Foglio Catastale: -
- Particella: -
Note
Vincolo “ope legis” relativo alle aree di rispetto coste e corpi idrici (D. Lgs. 42/2004 – art. 142) - fonte: http://www.sitap.beniculturali.it/
Bibliografia
| Autore | Anno | Titolo | Edizione | Luogo Edizione | Pagina | Specifica |
|---|---|---|---|---|---|---|
| Portoghesi Paolo | 1985 | I nuovi architetti italiani | Laterza | Bari | 35-36; 326 | No |
| Conforti Claudia, Lucan Jacques | 1997 | Alessandro Anselmi architetto | Electa | Milano | 186-191 | Si |
| 1998 | Comune di Fiumicino, Progetto Isolato Stazione e Nuova Casa Comunale | Controspazio n. 3 | 66 -69 | Si | ||
| Anselmi Alessandro | 1998 | Progetto per il Municipio, Comune di Fiumicino | Casabella n. 660 | 42-49 | Si | |
| 1998 | Progetto Roma. La città del 2000 | Gangemi | Roma | 192-195 | No | |
| Argenti Maria | 2000 | Progetti romani | Area n. 48 | 91-94 | No | |
| Remiddi Gaia, Greco Antonella, Bonavita Antonella, Ferri Paola | 2000 | Il moderno attraverso Roma. 200 architetture scelte | Palombi | Roma | Scheda n. E58 | Si |
| De Guttry Irene | 2001 | Guida di Roma moderna dal 1870 ad oggi | De Luca | Roma | No | |
| Anselmi Alessandro | 2003 | Il nuovo municipio di Fiumicino | Casabella n. 709 | 8-19 | Si | |
| Ferlenga Alberto | 2003 | Anselmi Castelli Pascalino Russo, Municipio Fiumicino, Roma 2002 | Casabella n. 709 | 6-7 | Si | |
| 2003 | Parametro n. 246-247 | 122-123 | No | |||
| Guccione Margherita, Palmieri Valerio (a cura di) | 2004 | Alessandro Anselm. Piano Superficie Progetto. Disegni 1964-2003 | Motta | Milano | 266-289 | Si |
| Bilò Federico | 2004 | Il Municipio di Fiumicino, Roma | L'Industria delle Costruzioni n. 375 | Roma | 54-63 | Si |
| Locci Massimo | 2004 | Nuovo Municipio di Fiumicino | AR Magazine n. 53 | 4-9 | Si | |
| 2004 | Itinerario contemporaneo. Roma | Area n. 76 | 188-197; Scheda n. 64 | No | ||
| 2004 | Costruire in laterizio n. 101 | 4-9 | Si | |||
| 2004 | Metamorfosi n. 50 | 25 | No | |||
| Anselmi Maria | 2004 | Municipio Fiumicino. Alessandro Anselmi | Area n. 76 | 10-21 | Si | |
| Ciucci Giorgio, Ghio Francesco, Rossi Piero Ostilio | 2006 | Roma. La nuova architettura | Electa | Milano | 252-257 | No |
| Censi Maria Rita, Frontero Dante, Germani Angelo | 2006 | Roma. Architettura contemporanea RM '06' | Kappa | Roma | 35-1/8 | No |
| La Rocca Agostino | 2008 | Le architetture di Alessandro Anselmi | OF ARCH n. 100 | 86-99 | No | |
| Argenti Maria | 2010 | Alessandro Anselmi | Edilstampa | Roma | 68-79 | Si |
| Rossi Piero Ostilio | 2012 | Roma. Guida all'architettura moderna 1909-2011 (IV ed.) | Laterza | Roma-Bari | Scheda n. 223 | Si |
| Bliek Françoise, Del Gallo Paola, De Simoni Pietro (a cura di) | 2012 | Roma III millennio. 32 progetti di architettura | Hoepli | Milano | 188-193 | No |
| Locci Massimo | 2013 | Architettura come affermazione di libertà | AR Magazine n. 105 | 21-25 | Si | |
| Farina Milena | 2018 | Ri_visitati. Il Municipio di Fiumicino, manomesso e desolato | Il Giornale dell'Architettura | Si |
Allegati
Criteri
| 1. L’edificio o l’opera di architettura è citata in almeno tre studi storico-sistematici sull’architettura contemporanea di livello nazionale e/o internazionale. | |
| 2. L’edificio o l’opera di architettura è illustrata in almeno due riviste di architettura di livello nazionale e/o internazionale. | |
| 3. L’edificio o l’opera di architettura ha una riconosciuta importanza nel panorama dell’architettura nazionale, degli anni nei quali è stata costruita, anche in relazione ai contemporanei sviluppi sia del dibattito, sia della ricerca architettonica nazionale e internazionale, | |
| 4. L’edificio o l’opera di architettura riveste un ruolo significativo nell’ambito dell’evoluzione del tipo edilizio di pertinenza, ne offre un’interpretazione progressiva o sperimenta innovazioni di carattere distributivo e funzionale. | |
| 5. L’edificio o l’opera di architettura introduce e sperimenta significative innovazioni nell’uso dei materiali o nell’applicazione delle tecnologie costruttive. | |
| 6. L’edificio o l’opera di architettura è stata progettata da una figura di rilievo nel panorama dell’architettura nazionale e/o internazionale. | |
| 7. L’edificio o l’opera di architettura si segnala per il particolare valore qualitativo all’interno del contesto urbano in cui è realizzata. |
Sitografia ed altri contenuti online
| Titolo | Url |
|---|---|
| MAXXI Patrimonio - Alessandro Anselmi | Visualizza |
| Enciclopedia Treccani - Alessandro Anselmi | Visualizza |
| Artribune - Alessandro Anselmi | Visualizza |
Crediti Scheda
Enti di riferimento: DGAAP - Segretariato Regionale per il LazioTitolare della ricerca: Università degli studi di Tor Vergata
Responsabile scientifico: Rosalia Vittorini
Scheda redatta da Rosalia Vittorini
creata il 31/12/2012
ultima modifica il 08/04/2024
Revisori:
Alberto Coppo 2022















