MUSEO ARCHEOLOGICO DI RIETI (RECUPERO E ALLESTIMENTO)
Scheda Opera
- Comune: Rieti
- Denominazione: MUSEO ARCHEOLOGICO DI RIETI (RECUPERO E ALLESTIMENTO)
- Indirizzo: Via Sant'Anna N. 4
- Data: 1994 - 2001
- Tipologia: Musei e Aree archeologiche
- Autori principali: Giancarlo Rosa
Descrizione
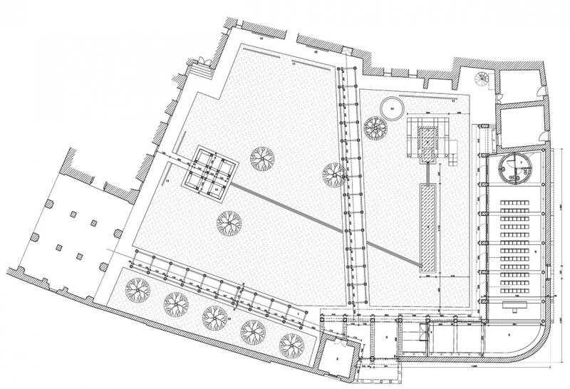
Il progetto è un interessante esempio di architettura museale per la modalità innovativa di interpretare il ruolo del museo – conservare e mostrare - in chiave contemporanea. Il Museo espone reperti che raccontano la storia cittadina ed è collocato negli ambienti del piano terra dell’ex monastero di Santa Lucia, che sorge sul tracciato della cinta muraria romana in prossimità del Duomo. I nuovi corpi di fabbrica, che comprendono la sala polifunzionale, il portico di ingresso, la torretta dei servizi, isolano il giardino dalla strada, nel lato meridionale, ricalcando la disposizione delle costruzioni antiche.
Rosa riorganizza le tredici sale e la nuova sala mostre temporanee - oltre agli ambienti di servizio, compresi la corte di ingresso, il chiostro, le corti minori e l’ampio ex giardino delle Clarisse - con l’intenzione di considerare il museo come un laboratorio con spazi flessibili e trasformabili. Riferendosi, più che agli allestimenti museali, agli allestimenti teatrali di autori come Luca Ronconi e Mario Ceroli, inserisce all’interno degli ambienti una struttura architettonico-museale mobile e trasformabile per realizzare una vera e propria messa in scena degli oggetti da esporre.
Le sale, in cui sono state riportate in vista, dove possibile, le trame parietali originarie, sono trattate come quinte e scenografie teatrali in cui trovano posto: supporti a carrello scorrevoli su binari che ospitano reperti di grandi dimensioni o sostengono vetrine modulari che possono essere spostate e assemblate in nuove configurazioni; mensole e pannelli metallici a parete per piccole sculture; gabbie a traliccio ligneo che ridefiniscono le stanze o alludono, come nello stretto corridoio, a percorsi viari.
Info
- Progetto: 1994 -
- Esecuzione: - 2001
- Proprietà: proprietà Ente pubblico territoriale
Autori
- Strutture: allestimento: metallo, legno, vetro
- Materiale di facciata: intonaco
- Coperture: a falda
- Serramenti: metallici, legno
- Stato Strutture: Buono
- Stato Materiale di facciata: Buono
- Stato Coperture: Buono
- Stato Serramenti: Buono
- Vincolo: Non Vincolata
- Provvedimenti di tutela: Nessuna opzione
- Data Provvedimento:
- Riferimento Normativo:
- Altri Provvedimenti:
- Foglio Catastale: 86
- Particella: 460
Note
-
Bibliografia
| Autore | Anno | Titolo | Edizione | Luogo Edizione | Pagina | Specifica |
|---|---|---|---|---|---|---|
| Brasiliano Tommaso | 1993 | Dell'architettura di Giancarlo Rosa | Parametro n. 199 | 52-53 | No | |
| Rosa Giancarlo | 2002 | Il moderno sull’antico. Il caso del Museo Civico di Rieti | Frames n. 97 | Si | ||
| Cornoldi Adriano, Rapposelli Marco (a cura di) | 2007 | Giancarlo Rosa. Il sistema museale di Rieti | Il Poligrafo | Padova | Si | |
| Grimaldi Andrea | 2021 | Giancarlo Rosa | LetteraVentidue | Siracusa | No |
Criteri
| 4. L’edificio o l’opera di architettura riveste un ruolo significativo nell’ambito dell’evoluzione del tipo edilizio di pertinenza, ne offre un’interpretazione progressiva o sperimenta innovazioni di carattere distributivo e funzionale. | |
| 5. L’edificio o l’opera di architettura introduce e sperimenta significative innovazioni nell’uso dei materiali o nell’applicazione delle tecnologie costruttive. | |
| 7. L’edificio o l’opera di architettura si segnala per il particolare valore qualitativo all’interno del contesto urbano in cui è realizzata. |
Crediti Scheda
Enti di riferimento: DGAAP - Segretariato Regionale per il LazioTitolare della ricerca: Università degli studi di Tor Vergata
Responsabile scientifico: Rosalia Vittorini
Scheda redatta da Rosalia Vittorini
creata il 31/12/2012
ultima modifica il 01/02/2023
Revisori:
Alberto Coppo 2022





