CENTRO CULTURALE DEL MACRO NELLA PELANDA DEI SUINI DEL MATTATOIO
Scheda Opera
- Comune: Roma
- Località: Testaccio
- Denominazione: CENTRO CULTURALE DEL MACRO NELLA PELANDA DEI SUINI DEL MATTATOIO
- Indirizzo: Piazza Orazio Giustiniani N. 4
- Data: 2000 - 2010
- Tipologia: Interventi di recupero e trasformazione
- Autori principali: Massimo Carmassi, Luciano Cupelloni, Studio Ove Arup & Partners, Antonio Maria Michetti
Descrizione
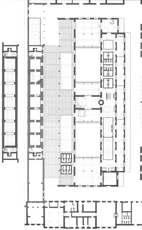
La trasformazione dei Macelli dei bovini e della Pelanda dei suini in spazi espositivi e di produzione culturale del MACRO si inserisce all’interno dei processi di recupero del Mattatoio di Testaccio, una delle testimonianze più significative dell’archeologia industriale a Roma. L’intervento riguarda un complesso di manufatti, realizzati in tempi diversi, costituito da una galleria principale, coperta da capriate Polonceau e con all’interno una centrale termica a carbone, due gallerie laterali e un edificio destinato ai serbatoi dell’acqua.
Il progetto di recupero coniuga interventi di restauro, di conservazione e di trasformazione che permettono di rileggere lo straordinario palinsesto del manufatto con le sue stratificazioni successive e le originarie destinazioni d’uso — è stata conservata la gran parte delle attrezzature metalliche originarie (rotaie sospese, ganci, griglie, vasche, serbatoi). Ad esso viene aggiunto un ulteriore strato, quello contemporaneo, che scaturisce da una strategia progettuale leggera, flessibile e reversibile.
Info
- Progetto: 2000 - 2007
- Esecuzione: 2006 - 2010
- Tipologia Specifica: Museo
- Committente: Comune di Roma
- Proprietà: proprietà Ente pubblico territoriale
Autori
| Nome | Cognome | Ruolo | Fase Progetto | Archivio Architetti | Url Profilo | Autore Principale |
|---|---|---|---|---|---|---|
| Srl | ATI SARFO | Impresa esecutrice | Esecuzione | NO | ||
| M. | Carmassi | Progetto urbano | Progetto | Visualizza Profilo | NO | |
| Massimo | Carmassi | Progetto architettonico | Progetto | Visualizza Profilo | https://www.treccani.it/enciclopedia/massimo-carmassi_(Lessico-del-XXI-Secolo)/ | SI |
| Franco | Cipriani | Progetto Impianti | Progetto | NO | ||
| Luciano | Cupelloni | Progetto architettonico | Progetto | Visualizza Profilo | https://www.lc-architettura.com/ | SI |
| L. | Cupelloni | Progetto urbano | Progetto | Visualizza Profilo | https://www.lc-architettura.com/ | NO |
| Giuseppe | Di Martino | Progetto Impianti | Progetto | NO | ||
| spa | I.A.B. | Impresa esecutrice | Esecuzione | NO | ||
| Gabriella | Ioli | Progetto architettonico | Progetto | NO | ||
| G. | Ioli | Progetto urbano | Progetto | NO | ||
| Srl | Medical Engineering | Progetto Impianti | Progetto | NO | ||
| Antonio Maria | Michetti | Progetto strutturale | Progetto | Visualizza Profilo | https://siusa.archivi.beniculturali.it/cgi-bin/siusa/pagina.pl?TipoPag=prodpersona&Chiave=58145 | SI |
| Studio | Ove Arup & Partners | Progetto Impianti | Progetto | SI | ||
| Lino | Perfetti | Progetto strutturale | Progetto | NO | ||
| Risorse per Roma | Progetto urbano | Progetto | NO | |||
| Risorse per Roma | Progetto architettonico | Progetto | NO | |||
| Giuseppe | Vergantini | Progetto Impianti | Progetto | NO |
- Strutture: acciaio, muratura, cemento armato
- Materiale di facciata: intonaco, curtain wall
- Coperture: a falde
- Serramenti: alluminio,
- Stato Strutture: Ottimo
- Stato Materiale di facciata: Ottimo
- Stato Coperture: Ottimo
- Stato Serramenti: Ottimo
- Vincolo: Non Vincolata
- Provvedimenti di tutela: Nessuna opzione
- Data Provvedimento:
- Riferimento Normativo:
- Altri Provvedimenti:
- Foglio Catastale: -
- Particella: -
Note
-
Bibliografia
| Autore | Anno | Titolo | Edizione | Luogo Edizione | Pagina | Specifica |
|---|---|---|---|---|---|---|
| Cupelloni Luciano | 2001 | Il mattatoio di Testaccio a Roma. Metodi e strumenti per la riqualificazione del patrimonio architettonico | Gangemi | Roma | No | |
| Mulazzani Marco | 2004 | Massimo e Gabriella Carmassi. Opere e progetti | Electa | Milano | 142-145 | Si |
| Brandolini Sebastiano | 2008 | Roma. Nuova architettura | Skira | Milano | 118-123 | No |
| 2010 | Padiglione nell’ex Mattatoio del Testaccio, Roma | Casabella n. 794 | 50-57 | Si | ||
| Strappa Giuseppe | 2010 | Trasformazione della Pelanda all’ex Mattatoio | AR Magazine n. 89 | 16-19 | Si | |
| Mulazzani Marco | 2010 | Massimo Carmassi. Il restauro dell'ex mattatoio del Testaccio a Roma | Electa | Milano | Si | |
| Mulazzani Marco | 2011 | Recupero Conservazione Riuso. Un centro culturale nel Mattatoio di Roma. Massimo Carmassi | Electa | Milano | Si | |
| Bliek Françoise, Del Gallo Paola, De Simoni Pietro (a cura di) | 2012 | Roma III millennio. 32 progetti di architettura | Hoepli | Milano | 68-75 | Si |
| 2014 | 10 anni di architettura a Roma | AR Magazine n. 111 | 100 | No | ||
| Gasparetto Federica | 2020 | Ex Mattatoio Testaccio, Roma (Part 1) | Arketipo n. 143 | 92-97 | Si | |
| Gasparetto Federica | 2021 | Ex Mattatoio Testaccio, Roma (Part 2) | Arketipo n. 149 | 86-97 | Si |
Criteri
| 2. L’edificio o l’opera di architettura è illustrata in almeno due riviste di architettura di livello nazionale e/o internazionale. | |
| 6. L’edificio o l’opera di architettura è stata progettata da una figura di rilievo nel panorama dell’architettura nazionale e/o internazionale. | |
| 7. L’edificio o l’opera di architettura si segnala per il particolare valore qualitativo all’interno del contesto urbano in cui è realizzata. |
Sitografia ed altri contenuti online
| Titolo | Url |
|---|---|
| M.A.C.R.O. Pelanda all'ex Mattatoio, Roma | Visualizza |
| Accademia Nazionale di San Luca - Massimo Carmassi | Visualizza |
Crediti Scheda
Enti di riferimento: PaBAAC - Direzione Regionale per il LazioTitolare della ricerca: Università degli studi di Roma "Sapienza"
Responsabile scientifico: Piero Ostilio Rossi
Scheda redatta da
creata il 31/12/2012
ultima modifica il 28/02/2025
Revisori:
Alberto Coppo 2021



