CASA DOPPIA
Scheda Opera
- Comune: San Marcellino
- Denominazione: CASA DOPPIA
- Indirizzo: via Roma, 169
- Data: 2002 - 2009
- Tipologia: Abitazioni bifamiliari
- Autori principali: Architetti Iodice
Descrizione
L’intervento si inserisce nella periferia del comune di San Marcellino, in un’area piuttosto complicata della provincia di Caserta. L'opera è una presenza quasi avulsa dal contesto circostante, caratterizzato da una conurbazione edilizia di scarsa qualità. Nelle intenzioni progettuali, la casa vuole essere un segno di riscatto, episodio propositivo, capace di testimoniare la possibilità di un modo alternativo di costruire, maggiormente sensibile nei confronti del territorio nel quale si inserisce.
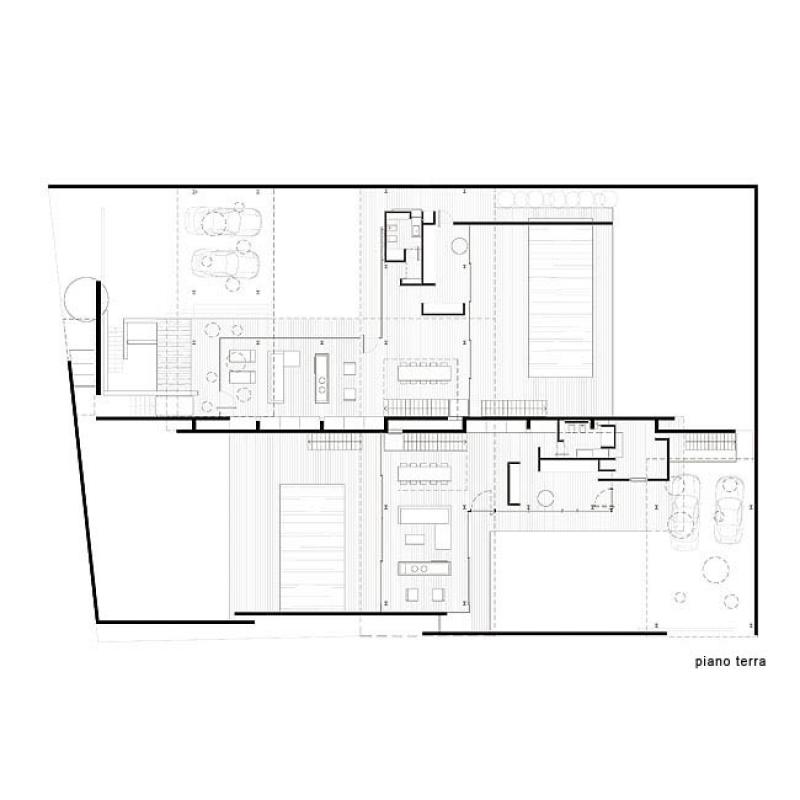
La casa doppia è una villa bifamiliare in cui le diverse parti del costruito sono organizzate intorno a più corti, ognuna con una propria identità e un proprio specifico carattere. Il muro di confine del lotto assume, insieme al verde, un definito compito di quinta. Questo segno esprime la materializzazione di un limite che rende visibile un vuoto e definisce lo spazio aperto di un patio. Le superfici vetrate al piano terra pongono la zona giorno in relazione continua con lo spazio esterno dei diversi giardini; in contrapposizione al primo piano in cui i volumi sono molto più compatti e dove vengono ospitate le camere da letto e una piccola biblioteca. I due piani sono collegati in corrispondenza di una generosa doppia altezza, caratterizzata dalla presenza di un lucernario formato da grandi travi in calcestruzzo a faccia vista. Questa casa assume una dimensione scultorea, che vive e muta nel suo rapporto con la luce che attraversa i diversi livelli. L’edificio è segnato da una netta separazione tra la libera articolazione degli spazi interni e gli elementi strutturali. Questi ultimi sono costituiti da una serie di pilastri in acciaio e una doppia parete in calcestruzzo armato a faccia vista che contemporaneamente separa e unisce le due unità abitative. I materiali utilizzati sono ridotti all'essenziale: calcestruzzo armato a faccia vista, pietra e vetro.
Info
- Progetto: 2002 -
- Esecuzione: - 2009
- Tipologia Specifica: casa bifamiliare
- Committente: Arena Costruzioni
- Proprietà: Proprietà privata
- Destinazione originaria: Villa bifamiliare
- Destinazione attuale: Villa bifamiliare
Autori
| Nome | Cognome | Ruolo | Fase Progetto | Archivio Architetti | Url Profilo | Autore Principale |
|---|---|---|---|---|---|---|
| Architetti | Iodice | Progetto architettonico | Progetto | Visualizza Profilo | https://www.iodicearchitetti.com/ | SI |
| Francesco | Iodice | Progetto architettonico | Progetto | NO | ||
| Giuseppe | Iodice | Progetto architettonico | Progetto | NO | ||
| Stefano | Labella | Progetto strutturale | Progetto | NO |
- Strutture: Cemento armato
- Materiale di facciata: Cemento faccia vista, pietra di Trani
- Coperture: Piana
- Serramenti: Alluminio
- Stato Strutture: Buono
- Stato Materiale di facciata: Buono
- Stato Coperture: Buono
- Stato Serramenti: Buono
- Vincolo: Non Vincolata
- Provvedimenti di tutela: Nessuna opzione
- Data Provvedimento:
- Riferimento Normativo:
- Altri Provvedimenti:
- Foglio Catastale: -
- Particella: -
Note
Referenze fotografiche archivio Iodicearchitetti
Bibliografia
| Autore | Anno | Titolo | Edizione | Luogo Edizione | Pagina | Specifica |
|---|---|---|---|---|---|---|
| 2004 | «D’Architettura», n. 37 | Il Sole 24 Ore | Si | |||
| 2009 | «ofARCH», n. 109 | 20-22 | Si | |||
| Joana Pimenta (a cura di) | 2009 | Casas sem fronteiras | Caleidoscopio | Portugal | 102-109 | Si |
| Luigi Prestinenza Puglisi, Anna Baldini (a cura di) | 2009 | PressT Magazine Book | Mancuso | Roma | 330-331 | Si |
| 2010 | Casa doppia, in 27/37 ventisettetrentasette. Rassegna internazionale di giovani architetti italiani | Edizioni 3p | Cesena | 48-51 | Si | |
| Mario Pisani (a cura di) | 2012 | Italy now. Architecture 2000-2010 | Edilstampa | Roma | 196-197 | Si |
| Gaetano Fusco, Franco Purini (a cura di) | 2014 | Abitare la città contemporanea | Aiòn | Roma | 50-59 | Si |
| Gaetano Fusco, Franco Purini (a cura di) | 2015 | «CaseArchitetture» | 64-65 | Si | ||
| Ali Abu Ghanimeh, Ibrahim Maarouf, Mario Pisani (a cura di) | 2017 | [8] Italian Architects Mediterranean Forum” | Il Formichiere | Foligno | 51-53 | Si |
| Ali Abu Ghanimeh, Mario Pisani (a cura di) | 2017 | [7] Italian Architects in Amman | Il Formichiere Edizioni | Foligno | 31-33 | Si |
Allegati
Criteri
| 4. L’edificio o l’opera di architettura riveste un ruolo significativo nell’ambito dell’evoluzione del tipo edilizio di pertinenza, ne offre un’interpretazione progressiva o sperimenta innovazioni di carattere distributivo e funzionale. | |
| 7. L’edificio o l’opera di architettura si segnala per il particolare valore qualitativo all’interno del contesto urbano in cui è realizzata. |
Crediti Scheda
Enti di riferimento: DGAAPTitolare della ricerca: Università degli Studi della Campania Luigi Vanvitelli DIC-DEA
Responsabile scientifico: Pasquale Belfiore
Scheda redatta da
creata il 31/12/2017
ultima modifica il 24/01/2025















