SCUOLA PIETRO METASTASIO A CAVE
Scheda Opera
- Comune: Cave
- Denominazione: SCUOLA PIETRO METASTASIO A CAVE
- Indirizzo: Viale Giulio Venzi N. 28
- Data: 1986 - 2000
- Tipologia: Scuole
- Autori principali: Marco Petreschi
Descrizione
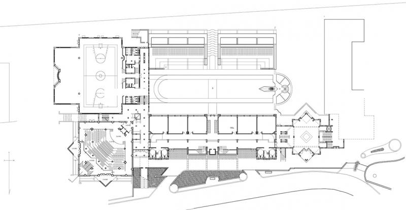
Il progetto si basa sulla creazione di un recinto urbano che si apre alla città attraverso un percorso pedonale che connette il centro storico alla periferia.
L’edificio si inserisce in un’area già occupata da due scuole: una scuola media, alla quale è direttamente collegato attraverso uno snodo che ospita l’atrio generale e la biblioteca; un istituto tecnico, con cui si ipotizza un uso condiviso della palestra e dell’aula magna.
Una serie di corpi distinti - aule didattiche e speciali, palestra, biblioteca e atrio generale, aula magna - sono disposti attorno a uno spazio verde centrale, che rappresenta il cuore dell’intero organismo. L’unitarietà del linguaggio architettonico è ricercata attraverso l’utilizzo di materiali omogenei, per la maggior parte tradizionali: tufo, mattoni fatti a mano, ferro, vetro, rame, ecc. All'interno, l’accurato studio dell’illuminazione naturale ha portato alla differenziazione delle aperture, verticali e zenitali.
Sullo schema iniziale del recinto si sovrappongono dettagli tenuti assieme da un unico filo conduttore che narra episodi della realtà locale: la meridiana, la canna fumaria a forma di torre in pietra e mattoni a faccia vista, le balaustre e le ringhiere in ferro, come molti altri particolari, concorrono a formare uno spazio urbano semidomestico familiare per gli studenti.
Info
- Progetto: 1986 - 1987
- Esecuzione: 1990 - 2000
- Proprietà: proprietà Ente pubblico territoriale
Autori
| Nome | Cognome | Ruolo | Fase Progetto | Archivio Architetti | Url Profilo | Autore Principale |
|---|---|---|---|---|---|---|
| Giulia | Amadei | Direzione lavori | Esecuzione | NO | ||
| Ivo | Cosimelli | Progetto strutturale | Progetto | NO | ||
| Attilio | De Rosi | Progetto Impianti | Progetto | NO | ||
| Sergio | De Santis | Disegnatore | Progetto | NO | ||
| Livio | De Santoli | Progetto Impianti | Progetto | NO | ||
| Tommaso | Mazzetti | Progetto strutturale | Progetto | NO | ||
| Marco | Petreschi | Progetto architettonico | Progetto | Visualizza Profilo | http://www.marcopetreschi.com/ | SI |
| Mara | Prusciano | Disegnatore | Progetto | NO | ||
| Giuliana | Sacco | Disegnatore | Progetto | NO | ||
| Gianfranco | Scarpino | Progetto Impianti | Progetto | NO | ||
| Massimo | Sciarra | Disegnatore | Progetto | NO |
- Strutture: calcestruzzo armato
- Materiale di facciata: intonaco, tufo, scatolari metallici e rame
- Coperture: a falde in lamiera, piana con pavimentazione in gres
- Serramenti: metallici
- Stato Strutture: Buono
- Stato Materiale di facciata: Buono
- Stato Coperture: Buono
- Stato Serramenti: Discreto
- Vincolo: Non Vincolata
- Provvedimenti di tutela: Nessuna opzione
- Data Provvedimento:
- Riferimento Normativo:
- Altri Provvedimenti:
- Foglio Catastale: 4
- Particella: 1591
Note
-
Bibliografia
| Autore | Anno | Titolo | Edizione | Luogo Edizione | Pagina | Specifica |
|---|---|---|---|---|---|---|
| Purini Franco | 1996 | L’architettura storica senza storicismi | Metamorfosi n. 28 | Roma | 26-28 | Si |
| Gazzola Luigi, Liu Lin-an, Mandolesi Domizia | 2001 | 100 Italian architects and their works | China Architecture & Building Press, Diagonale | Beijing, Roma | 86-87 | No |
| Pergoli Campanelli Alessandro | 2006 | Progettare dialogando con la storia | AR Magazine n. 63 | 19-23 | No | |
| De Fusco Renato | 2007 | Marco Petreschi. Un architetto romano. Opere e progetti 1970-2006 | Skira | Milano | 124-131 | Si |
| Quilici Vieri | 2013 | Scuola Media Statale Pietro Metastasio in Priori Giancarlo (a cura di) 100 progettisti italiani | Dell’Anna | Milano | 338-342 | No |
Allegati
Criteri
| 4. L’edificio o l’opera di architettura riveste un ruolo significativo nell’ambito dell’evoluzione del tipo edilizio di pertinenza, ne offre un’interpretazione progressiva o sperimenta innovazioni di carattere distributivo e funzionale. | |
| 6. L’edificio o l’opera di architettura è stata progettata da una figura di rilievo nel panorama dell’architettura nazionale e/o internazionale. | |
| 7. L’edificio o l’opera di architettura si segnala per il particolare valore qualitativo all’interno del contesto urbano in cui è realizzata. |
Sitografia ed altri contenuti online
| Titolo | Url |
|---|---|
| Scuola media Pietro Metastasio | Visualizza |
| MAXXI Patrimonio - Marco Petreschi | Visualizza |
Crediti Scheda
Enti di riferimento: DGAAP - Segretariato Regionale per il LazioTitolare della ricerca: Università degli studi di Tor Vergata
Responsabile scientifico: Rosalia Vittorini
Scheda redatta da Barbara Paroli
creata il 31/12/2012
ultima modifica il 09/05/2024
Revisori:
Alberto Coppo 2022






