SALA DI LETTURA DELLA FACOLTÀ DI ARCHITETTURA
Scheda Opera
- Comune: Roma
- Località: Pinciano
- Denominazione: SALA DI LETTURA DELLA FACOLTÀ DI ARCHITETTURA
- Indirizzo: Via Antonio Gramsci N. 53
- Data: 1981 - 1982
- Tipologia: Biblioteche e Archivi
- Autori principali: Costantino Dardi
Descrizione
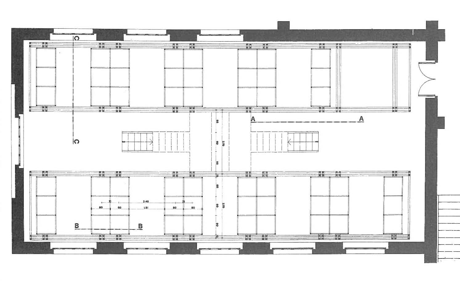
Il progetto elaborato per la Sala lettura della Facoltà di Architettura della Sapienza Università di Roma si inserisce al primo piano dell’ala sud del preesistente edificio della Regia Scuola Superiore di Architettura, progettato da Enrico Del Debbio tra il 1925 e il 1926. L’intervento di Dardi materializza un vero e proprio principio di misurazione dello spazio fisico, mediante l’introduzione di una griglia tridimensionale che diviene nuovo ordine metrico/percettivo e supporto strutturale per l’introduzione di un solaio calpestabile all’interno dell’ampio invaso a doppia altezza. Il reticolo spaziale si costruisce mediante una struttura metallica a sezione quadrata, che definisce una maglia complessa e astratta di colore bianco.
Il reticolo articola lo spazio in tre campate: le due laterali dedicate alle postazioni per la consultazione e per il lavoro; la centrale occupata da due scale metalliche e permeabili che consentono l’accesso al nuovo solaio.
Al livello più basso, Dardi propone una struttura binata, costituita da due pilastri quadripartiti e affiancati, capaci di legare il nuovo intervento architettonico alla metrica delle ampie vetrate preesistenti. Nello specifico, il singolo pilastro è articolato in quattro pilastrini a sezione quadrata che sono distanziati in modo da dare vita e forma ad un vuoto centrale. Tale vuoto, oltre ad alleggerire la struttura così da conferirle una permeabilità percettiva, ne accentua la stratificazione prospettica. Medesimo sistema viene utilizzato nel disegno delle travi mediane (quelle su cui poggia il nuovo solaio intermedio in lamiera), costruendo una struttura sostanzialmente isotropa.
Nel secondo livello, la maglia strutturale si alleggerisce, consentendo la più facile permeabilità della luce naturale. Tale maglia decide di non ancorarsi al soffitto in modo da risultare eterea e autonoma rispetto al contesto. Uguale attenzione viene posta da Dardi nel definire l’ancoraggio della nuova struttura a terra. Per accentuare il senso di autonomia e leggerezza del reticolo i singoli pilastrini di colore bianco presentano un sottilissimo battiscopa nero che si fonde percettivamente con il colore nero scelto per la superficie del pavimento in linoleum.
Il reticolo metallico diviene infine supporto per l’ancoraggio delle postazioni dedicate alla lettura, che Dardi immagina come unità spaziali individuabili e interconnesse; ciò avviene attraverso un telaio metallico tridimensionale utile sia a contenere il piano di lettura, sia a consentire l’ancoraggio dei corpi illuminanti.
- Strutture: Metalliche
- Vincolo: Non Vincolata
- Provvedimenti di tutela:
- Data Provvedimento:
- Riferimento Normativo:
- Altri Provvedimenti:
- Foglio Catastale: -
- Particella: -
Note
-
Bibliografia
| Autore | Anno | Titolo | Edizione | Luogo Edizione | Pagina | Specifica |
|---|---|---|---|---|---|---|
| 1984 | Bollettino della biblioteca della Facoltà di architettura dell'Università degli studi di Roma La Sapienza n 33 | 8-9 | Si | |||
| 1985 | L'industria delle costruzioni n. 161 | 23-27 | Si | |||
| Dardi Costantino | 1987 | Semplice lineare complesso. L'acquedotto di Spoleto | Kappa | Roma-Bari | 140;158-160 | Si |
| Costanzo Michele, Giorgi Vincenzo (a cura di) | 1992 | Costantino Dardi: architetture museali | Electa | Milano | 40-44 | Si |
Allegati
Criteri
| 6. L’edificio o l’opera di architettura è stata progettata da una figura di rilievo nel panorama dell’architettura nazionale e/o internazionale. |
Crediti Scheda
Enti di riferimento: DGCC - Segretariato Regionale per il LazioTitolare della ricerca: Sapienza Università di Roma - Dipartimento di Architettura e Progetto
Responsabile scientifico: Orazio Carpenzano
Scheda redatta da Qart - Laboratorio per lo Studio di Roma Contemporanea
creata il 07/07/2022
ultima modifica il 28/02/2025
Revisori:
Luca Porqueddu 2022











