COMPLESSO SCOLASTICO IPSIA
Scheda Opera
- Comune: Ragusa
- Denominazione: COMPLESSO SCOLASTICO IPSIA
- Indirizzo: Via Nicolò Tommaseo
- Data: 1992 - 1999
- Tipologia: Scuole
- Autori principali: Studio Architrend, Giovanni Rizza
Descrizione
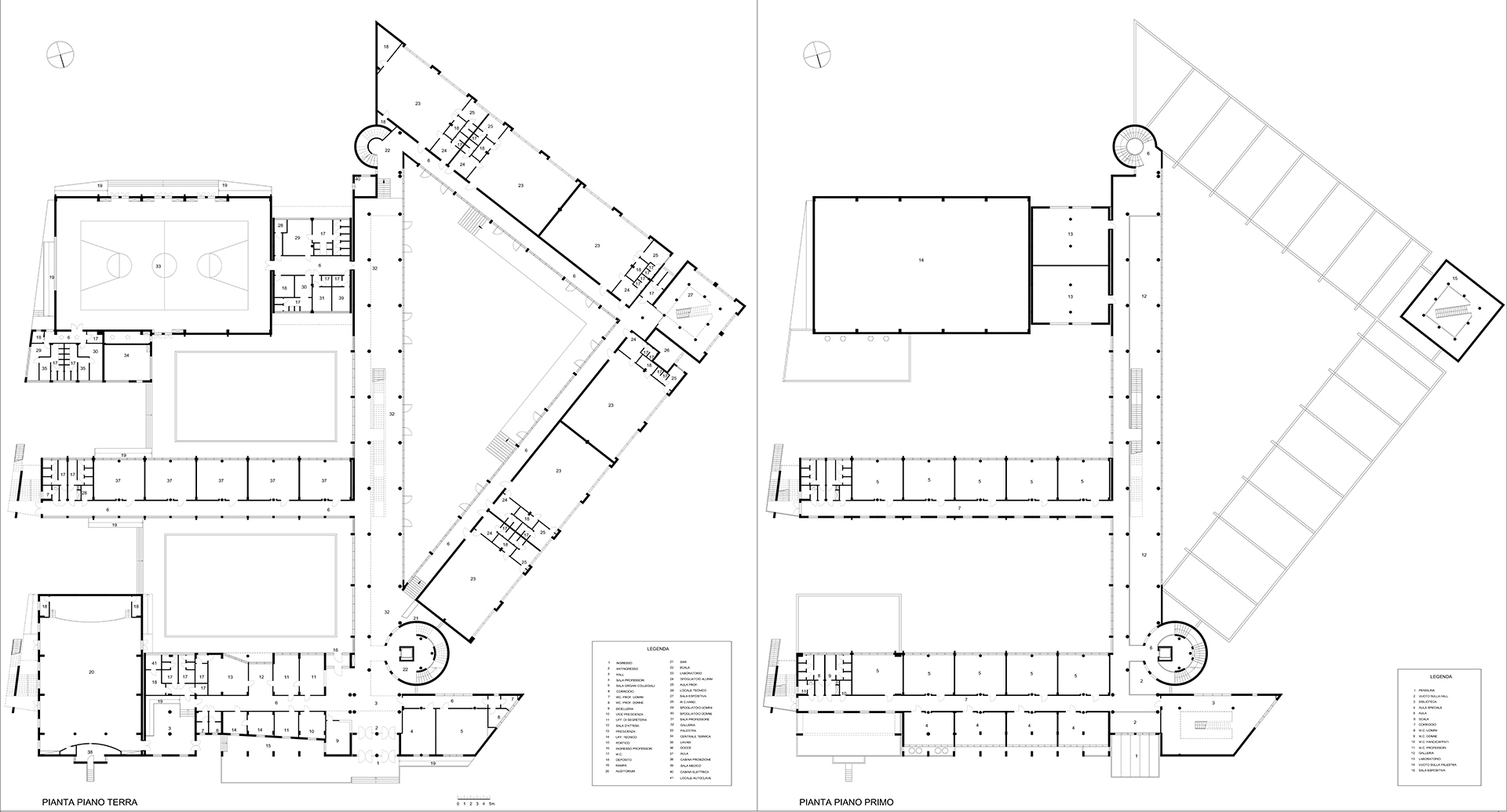
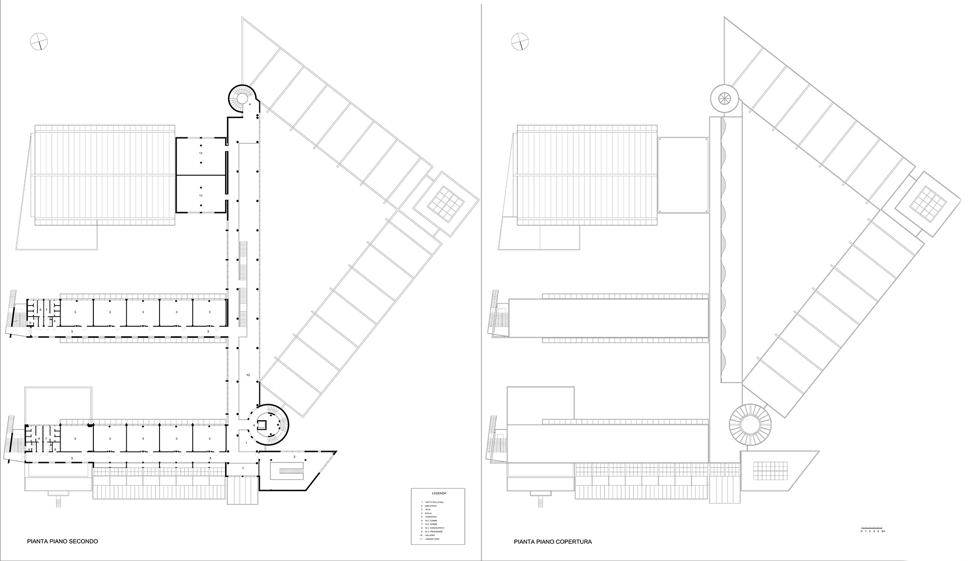
L'edificio scolastico, progettato all’inizio degli anni ’90 dagli architetti Gaetano Manganello, Carmelo Tumino (fondatori dello studio Architrend) e Giovanni Rizza, sorge nella periferia occidentale di Ragusa, poco a nord di una delle principali vie d’accesso alla città contemporanea, Viale delle Americhe. Nato per ospitare l’Istituto Professionale di Stato per l’Industria e l’Artigianato, oggi è una scuola comprensiva dedicata all’istruzione di secondo grado. Costruito in più fasi, per una durata complessiva di circa sette anni, l’edificio si presenta come una giustapposizione di corpi di fabbrica prismatici, la cui disposizione, attenta alle esigenze di orientamento ed esposizione, ha permesso di creare un sistema di corti interne dedicate allo svago degli studenti e alle attività di educazione fisica. Nel blocco nord, che funge da testata del complesso, l'accesso all'edificio è sottolineato da un gioco di aggetti: la pensilina al di sopra dell'ingresso principale è affiancata a un sistema di pilastri a sezione variabile che ne sostengono una seconda collocata più in alto, al livello del pavimento del secondo piano. Quest'ultima elevazione è illuminata da una grande facciata inclinata in pannelli di rame ossidato e vetro, che si protende fino al piano terra solo in corrispondenza dell’ingresso. Sulla terminazione est diventa protagonista il telaio strutturale che inquadra il volume dell'auditorium e risvolta sul fianco orientale, lasciandosi attraversare dalle rampe e gli aggetti delle scale di sicurezza. In funzione di snodo, a collegare il blocco d'ingresso e i due successivi destinati alla didattica, un volume cilindrico contiene la grande scala elicoidale. L’edificio è retto da una struttura portante a telaio in calcestruzzo di cemento armato, mentre i rivestimenti sono a intonaco di colore bianco.
Info
- Progetto: 1992 - 1993
- Esecuzione: 1997 - 1999
- Tipologia Specifica: Istituto professionale di stato
- Committente: Provincia regionale di Ragusa
- Proprietà: Proprietà pubblica
- Destinazione originaria: Edificio scolastico
- Destinazione attuale: Edificio scolastico
Autori
- Strutture: Scheletro indipendente in calcestruzzo di cemento armato gettato in opera
- Materiale di facciata: Intonaco
- Coperture: Tetto piano latero-cementizio
- Serramenti: Ante mobili o a ribalta in alluminio
- Stato Strutture: Buono
- Stato Materiale di facciata: Buono
- Stato Coperture: Buono
- Stato Serramenti: Buono
- Vincolo: Non Vincolata
- Provvedimenti di tutela: Nessuna opzione
- Data Provvedimento:
- Riferimento Normativo:
- Altri Provvedimenti:
- Foglio Catastale: 50
- Particella: 669
Note
-
Bibliografia
| Autore | Anno | Titolo | Edizione | Luogo Edizione | Pagina | Specifica |
|---|---|---|---|---|---|---|
| Mulazzani Marco (a cura di) | 2000 | Rizza Tumino Manganello. Complesso scolastico a Ragusa | in "Almanacco di Casabella. Giovani architetti italiani. 1999-2000" | Milano | 125-128 | No |
| Mulazzani Marco (a cura di) | 2006 | Architetti italiani. Le nuove generazioni | Electa | Milano | 125-128 | No |
| Cogliandro Domenico, Prestinenza Puglisi Luigi, Porto Franco, Rosa Ugo (a cura di) | 2006 | Siciliarchitettura_06 | Biblioteca del Cenide | Cannitello | 68-69 | No |
| Oddo Maurizio | 2007 | Architettura contemporanea in Sicilia | Corrao | Trapani | 457 | No |
Fonti Archivistiche
| Titolo | Autore | Ente | Descrizione | Conservazione |
|---|---|---|---|---|
| Istituto d'istruzione superiore | Studio Architrend, Giovanni Rizza | Archivio Ufficio Tecnico, Provincia Regionale di Ragusa | Documenti relativi al progetto | |
| Istituto d'istruzione superiore | Studio Architrend, Giovanni Rizza | Archivio studio professionale Architrend | Elaborati grafici |
Allegati
Criteri
| 1. L’edificio o l’opera di architettura è citata in almeno tre studi storico-sistematici sull’architettura contemporanea di livello nazionale e/o internazionale. | |
| 7. L’edificio o l’opera di architettura si segnala per il particolare valore qualitativo all’interno del contesto urbano in cui è realizzata. |
Sitografia ed altri contenuti online
| Titolo | Url |
|---|---|
| Sito web Architrend Associati | Visualizza |
Crediti Scheda
Enti di riferimento: Direzione generale creatività contemporaneaTitolare della ricerca: Università degli studi di Catania
Responsabile scientifico: Paola Barbera
Scheda redatta da Salvatore Damiano (Università degli studi di Catania)
creata il 20/04/2024
ultima modifica il 22/01/2025















