CHIESA DI SANTA MARIA DELLE GRAZIE
Scheda Opera
- Comune: Roma
- Località: Casal Boccone
- Denominazione: CHIESA DI SANTA MARIA DELLE GRAZIE
- Indirizzo: Via della Bufalotta N. 674
- Data: 2005 - 2010
- Tipologia: Edifici per il culto
- Autori principali: Architetti Garofalo Miura
Descrizione
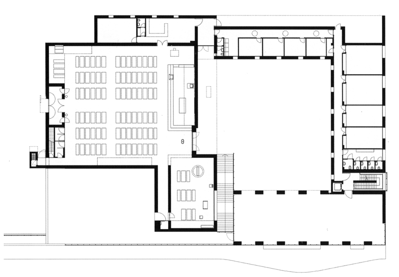
L’edificio è una massa articolata, composta da una serie di volumi disposti attorno a un cortile centrale, al cui interno sono ospitate la chiesa e la canonica. I corpi di fabbrica sono posati su un basamento, che ospita alcune aule e permette di superare il dislivello altimetrico del sito. L’ingresso alla chiesa è segnato da un campanile che si distacca dal profilo della facciata. Lo spazio di raccolta e preghiera è una grande aula a pianta rettangolare, animata da una copertura a spiovente inflessa verso l’interno. Quattro lucernari sottolineano i punti salienti dello spazio e della liturgia: una cappella dedicata a un dipinto rinascimentale della Madonna, la cappella feriale, la navata principale e la parete di fondo del presbiterio, dove è posto un crocifisso leggermente staccato dal muro. A destra dell’altare si apre l’area battesimale; a sinistra la sede, l’ambone e i seggi dei concelebranti. Il circuito di circolazione interno permette di accedere, senza uscire al di fuori, a tutte le parti del complesso, mentre un’ampia scalinata mette in connessione diretta la corte con l’esterno.
Info
- Progetto: 2005 - 2007
- Esecuzione: 2008 - 2010
- Tipologia Specifica: chiesa
- Proprietà: Proprietà Ente religioso
Autori
| Nome | Cognome | Ruolo | Fase Progetto | Archivio Architetti | Url Profilo | Autore Principale |
|---|---|---|---|---|---|---|
| Giovanna | Aversa | Artista | Progetto | NO | ||
| Paul | Blackmore | Collaboratore | Progetto | NO | ||
| spa | Branchini e Mancinelli | Impresa esecutrice | Esecuzione | NO | ||
| Architetti | Garofalo Miura | Progetto architettonico | Progetto | SI | ||
| Antonio Maria | Michetti | Progetto strutturale | Progetto | Visualizza Profilo | https://siusa.archivi.beniculturali.it/cgi-bin/siusa/pagina.pl?TipoPag=prodpersona&Chiave=58145 | NO |
| Claudia | Pennese | Collaboratore | Progetto | NO | ||
| Roberta | Scocco | Collaboratore | Progetto | NO | ||
| Floriana | Taddei | Progetto architettonico | Progetto | NO |
- Strutture: cemento armato, acciaio
- Materiale di facciata: rivestimento in pietra, intonaco
- Coperture: piane, inclinate
- Serramenti: alluminio
- Stato Strutture: Ottimo
- Stato Materiale di facciata: Ottimo
- Stato Coperture: Ottimo
- Stato Serramenti: Ottimo
- Vincolo: Non Vincolata
- Provvedimenti di tutela: Nessuna opzione
- Data Provvedimento:
- Riferimento Normativo:
- Altri Provvedimenti:
- Foglio Catastale: -
- Particella: -
Note
-
Bibliografia
| Autore | Anno | Titolo | Edizione | Luogo Edizione | Pagina | Specifica |
|---|---|---|---|---|---|---|
| Galanti Claudia | Piccola acropoli sul paesaggio urbano | Progetti n. 9 | 16-21 | Si | ||
| Garofalo Miura Architetti | 2011 | Un’acropoli contemporanea. Complesso parrocchiale di Santa Maria delle Grazie a Casal Boccone, Roma | Chiesa Oggi n. 95 | 20-27 | Si | |
| Petreschi Marco, Valentin Nilda | 2013 | Chiese della periferia romana 2000-2013. Dal Grande Giubileo all'anno costantiniano | Electa | Milano | 122-125 | Si |
| 2013 | Italia en México 2013 | AR Magazine n. 108 | 28 | No |
Criteri
| 3. L’edificio o l’opera di architettura ha una riconosciuta importanza nel panorama dell’architettura nazionale, degli anni nei quali è stata costruita, anche in relazione ai contemporanei sviluppi sia del dibattito, sia della ricerca architettonica nazionale e internazionale, | |
| 7. L’edificio o l’opera di architettura si segnala per il particolare valore qualitativo all’interno del contesto urbano in cui è realizzata. |
Crediti Scheda
Enti di riferimento: PaBAAC - Direzione Regionale per il LazioTitolare della ricerca: Università degli studi di Roma "Sapienza"
Responsabile scientifico: Piero Ostilio Rossi
Scheda redatta da
creata il 31/12/2012
ultima modifica il 27/02/2025
Revisori:
Alberto Coppo 2021



